

作品包括:
Word版说明书一份,共33页,约16000字
外文翻译一份
CAD版本图纸,共7张
摘要
本课题主要研究了用于清理铝水抬包中残渣专用铣床的运动机构、总体方案、刀具参数以及工作参数、技术性能参数、零部件、标准件的确定与选择问题。
运用金属切削加工的原理,提出适于专用铝水抬包清洗机床的行星运动问题、切削速度问题及本设计中车铣运动等问题。并且从抬包铝渣的残留形状入手,广泛收集机械相关资料,提出几种针对性解决该实际问题的方案,并且通过比较,确定最佳方案进行更深一步的机构设计和参数具体化。
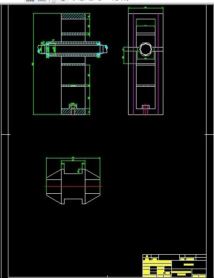
本设计的专用铣床采用有个大刀盘绕一个类似滚筒的结构体的回转中心作行星运动,既有自转,又有公转,以达到对抬包侧壁和包底的铝渣进行彻底的切削。
在刀具的设计过程中,通过在铣削过程中,铝渣给刀具的作用力以及功率和加工效率和工作时长等问题,确定了刀具的齿数和螺旋角等参数。
在机床结构设计中,通过Solid Edge软件,对回转体和刀具主轴支持结构进行三维建模,运用虚拟装配技术进行装配,验证了机构的可行性。
关键词:抬包,铣削,铣刀,行星运动
目 录
第一章 绪论 1
1.1铝 1
1.2抬包 2
1.3抬包清理状况 2
1.3.1国外的状况 2
1.3.2国内的现状 3
1.4相关研究 4
第二章 抬包清理机床总体设计 4
2.1清理工作的原理的选用 4
2.2机床传动方案的拟定 4
2.3抬包定位与固定的方案选择 6
第三章 刀具的设计 7
3.1 铣刀形状的设计 8
3.2 铣削用量的选择 9
第四章 清理工作时功率的计算与分析 10
4.1铣削运动的功率计算 10
4.2 滚筒转动的功率计算 12
4.3进给运动的功率计算 13
第五章 机构运动参数以及零部件具体参数的确定 13
5.1铣刀主轴的设计 13
5.1.1 主轴最小尺寸的计算 13
5.1.2 主轴结构的设计以及轴上零件的布置 14
5.1.3 主轴强度的校核 14
5.2 主轴支撑件的设计 14
5.2.1 滚动轴承的选择 15
5.2.2 支撑件的形状和尺寸的确定 16
5.3 滚筒的设计 17
5.3.1 滚筒外形设计及紧固件的选择 17
5.3.2 滚筒的支撑 19
5.4 滚筒驱动零件的设计 20
5.4.1 齿轮传动的设计 20
5.4.2 轴上零件的布局和轴的结构设计 21
5.5 离合器的设计 21
5.6 减速器的设计 23
5.6.1减速器圆柱齿轮传动的设计 24
5.6.2减速器蜗轮蜗杆传动的设计 25
5.7 联轴器的选用 27
5.8 夹具及进给小车的设计 27
5.9 进给装置驱动轴的设计 28
5.10 电动机的选用 28
第六章 机床各零部件的布局以及装配 29
结论 30
参考文献 31
附录A 清洗机床回转体机构设计图 32
致谢 33
温馨提示:
1、题目前面的备注【字母数字编号】为本站整理分类的编号,与课题内容无关,请选题时忽视;
2、若题目上备注三维,则表示文件里包含三维源文件,由于三维组成零件数量较多,为保证预览截图的简洁性,本站将三维文件夹进行了打包。三维及CAD预览截图,均为本站电脑打开软件进行截图的,保证能够打开,下载原件超高清,下载后解压即可;
3、本站所有资源如无特殊说明,都需要本地电脑安装Office2007。图纸软件为AutoCAD,PROE,UG,SolidWorks,CATIA等;
4、本站所有图文资料仅供用户学习参考,不作为任何商用或其他用途;
5、本站不保证下载资源的准确性、安全性和完整性, 不包修改,不支持退换,同时也不承担用户因使用这些下载资源对自己和他人造成任何形式的伤害或损失;
6、 下载文件中如有侵权或不适当内容,请与我们联系,我们立即纠正。