

作品包括:
Word版说明书一份,共22页,约8600字
任务书一份
开题报告一份
外文翻译一份
CAD版本图纸,共13张
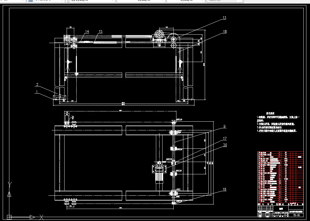
法兰钻孔钻机
摘要:在 Z5140立式钻床上加工船用搭焊钢法兰的多个螺栓孔时,利用通用钻孔模板,由工人逐孔进行加工。工人劳动强度大,生产率低。随着生产规模的不断扩大,产品质量要求不断提高,迫切要求改变这种生产现状。设计一台FLZJ90/305型法兰钻孔专机,以取代现役的Z5140立式钻床。在该法兰钻孔专机上钻孔时,由操作员在钻夹具上人工上料——定位——夹紧,启动专机对四孔同时进行钻削加工——加工完由操作员退出钻头,将夹具松开并旋转工件至另一工位再进行钻削另外四个孔——人工松开夹具并将工件取下。
该FLZJ90/305机床型由电机驱动带动主轴旋转,主轴通过主轴箱带动四个钻头同时同向旋转进行加工。当变换不同规格的法兰时,松开并旋转主轴箱下部的模板,可同时调整四个钻头的中心距,以满足各种规格零件的加工需要。
FLZJ90/305型船用搭焊钢法兰钻孔专机改变了以往传统的多孔钻结构形式,可以同时加工法兰的四个螺栓孔,且钻头中心距的调整范围较大(90~305mm)。本课题新颖实用,在技术上有较大改进,具有较强的竞争力。本专机将具有很大的市场前景。
关键词:法兰; 四孔同时钻削; 同时调整四个钻头中心距
目录
1前言 1
1.1国外机床发展动向 1
1.2国内机床发展动向 1
1.3课题来源 2
1.4 课题研究的主要内容 2
1.5导师指导 3
2总体方案论证 4
2.1工艺方案的拟订 4
2.2 被加工零件分析 4
2.3 结构方案的确定 6
2.3.1 传统多轴钻的结构分析 6
2.3.2本专机的结构特点 7
3 金属切削用量的选择与计算 8
3.1 刀具的选择 8
3. 2 选择切削用量 8
4 机械传动装置的总体设计 10
4.1 分析和拟定传动装置的运动简图 10
4.2 齿轮计算 10
4.3 轴的计算 13
4.4分析和拟定传动装置的运动简图 14
4.3 选择电动机 15
5活动盘设计 16
5.1计算摩擦角 16
5.2 活动盘尺寸确定 16
6 轴承的选择和润滑 17
6.1轴承的选择 17
6.2轴承的润滑 17
7结论 19
文 献 资 料 20
致谢 21
温馨提示:
1、题目前面的备注【字母数字编号】为本站整理分类的编号,与课题内容无关,请选题时忽视;
2、若题目上备注三维,则表示文件里包含三维源文件,由于三维组成零件数量较多,为保证预览截图的简洁性,本站将三维文件夹进行了打包。三维及CAD预览截图,均为本站电脑打开软件进行截图的,保证能够打开,下载原件超高清,下载后解压即可;
3、本站所有资源如无特殊说明,都需要本地电脑安装Office2007。图纸软件为AutoCAD,PROE,UG,SolidWorks,CATIA等;
4、本站所有图文资料仅供用户学习参考,不作为任何商用或其他用途;
5、本站不保证下载资源的准确性、安全性和完整性, 不包修改,不支持退换,同时也不承担用户因使用这些下载资源对自己和他人造成任何形式的伤害或损失;
6、 下载文件中如有侵权或不适当内容,请与我们联系,我们立即纠正。