

作品包括:
说明书1份,共51页,约16000字左右
CAD版本图纸,共8张
圆弧剪刃滚切式钢板剪切机设计
摘要
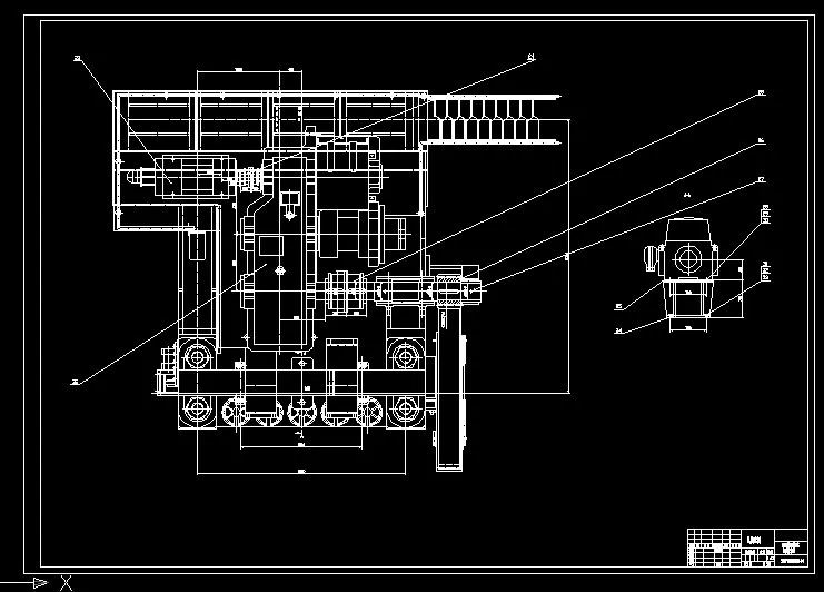
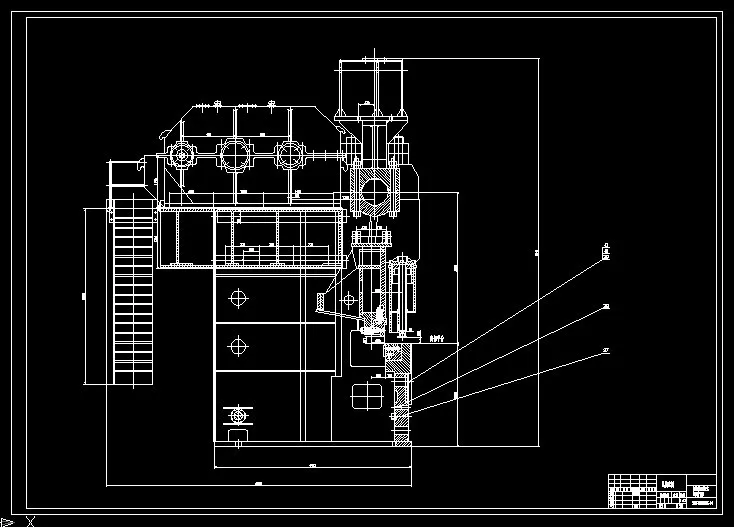
圆弧剪刃滚切式钢板剪切机是一种新式钢板剪切设备,它是中厚钢板精整工序中的重要设备,保证剪切机正常工作队提高板材生产线的产量有重要意义。随着我国中厚钢板年产量的不断增加,现在中厚板轧钢厂对钢板质量、品种、产量的要求也随之提高。圆弧剪刃滚切式钢板剪切机在整个剪切范围内刀片重叠量不变,剪切变形区小,被剪切板材不易弯曲变形,毛刺少,剪切质量高,并且,滚切式剪切机运动的上刀片与被剪板材之间只产生很小的相对运动,刀片磨损较小,特别适合于中厚板的切边、切定尺和纵向部分。本次设计的圆弧剪刃滚切式钢板剪切机用于定尺剪切最大厚度为40mm的钢板,要求剪切机结构合理、工作可靠、剪切质量高。此次设计内容主要是圆弧剪刃滚切式钢板剪切机的设计,设计内容主要包括剪切机总体方案设计、工作原理与基本机构等的确定、滚切剪主要参数的计算、电动机容量选择和减速器的设计、主要零件的设计与校核、润滑方式的选择以及图纸的绘制等。计算得其最大剪切力为8.5MN,剪切次数18次/分,上刀架最大行程162mm,电动机功率355kW,额定转速987r/min。机架采用闭式机架。
关键词:滚切剪;圆弧剪刃;剪切力
目录
1.绪论 1
1.1 选题背景及目的 1
1.2 滚切剪的发展趋势 3
2 设计方案的选择和分析 4
3 滚切剪的设计 6
3.1 滚切剪的工作原理 6
3.2滚切剪的基本机构 7
3.3 剪切理论 11
3.3.1 轧件剪切过程分析 11
3.3.2 金属机械性能对剪切抗力的影响 12
3.4 滚切剪主要参数的计算 12
3.4.1 设计基本要求 12
3.4.2 最大剪切力 13
3.4.3额定剪切力 13
3.4.4 剪切功 14
3.4.5 上剪刃圆弧半径 14
3.4.6 上刀架最大行程 15
3.5 电动机容量的选择 16
3.6 减速器的设计 18
3.7 主要零件的设计与校核 18
3.7.1齿轮的设计与校核 19
3.7.2 齿轮轴的校核 24
3.7.3 轴承的选择与校核 29
3.7.4 曲轴的设计与校核 30
3.7.5 联轴器的选择与校核 35
3.7.6 键的校核 36
4 影响剪切效率和质量的因素分析 38
4.1 影响剪切效率的因素 38
4.2 影响剪切质量的因素 38
5 润滑方法的选择 39
5.1 润滑的作用 39
5.2 润滑方法 39
5.3 润滑脂的特点和注意事项 40
5.4 添加剂 41
6 设备的环保、可靠性和经济可行性分析 42
6.1 设备的环保性分析 42
6.2 设备的可靠性 42
6.3 设备的经济性分析 44
结论 46
致谢 47
参考文献 48
温馨提示:
1、题目前面的备注【字母数字编号】为本站整理分类的编号,与课题内容无关,请选题时忽视;
2、若题目上备注三维,则表示文件里包含三维源文件,由于三维组成零件数量较多,为保证预览截图的简洁性,本站将三维文件夹进行了打包。三维及CAD预览截图,均为本站电脑打开软件进行截图的,保证能够打开,下载原件超高清,下载后解压即可;
3、本站所有资源如无特殊说明,都需要本地电脑安装Office2007。图纸软件为AutoCAD,PROE,UG,SolidWorks,CATIA等;
4、本站所有图文资料仅供用户学习参考,不作为任何商用或其他用途;
5、本站不保证下载资源的准确性、安全性和完整性, 不包修改,不支持退换,同时也不承担用户因使用这些下载资源对自己和他人造成任何形式的伤害或损失;
6、 下载文件中如有侵权或不适当内容,请与我们联系,我们立即纠正。