

作品包括:
Word版设计说明书1份,共33页,约13000字
CAD版本图纸,共4张
拖拉机拐轴自动焊设备设计
摘 要
在科学技术飞速发展的当今时代,焊接已经从一种传统的热加工技艺发展到了集材料、冶金、结构、力学、电子等多门类科学为一体的工程工艺学科。而且,随着相关学科技术的发展和进步,不断有新的知识融合在焊接之中。
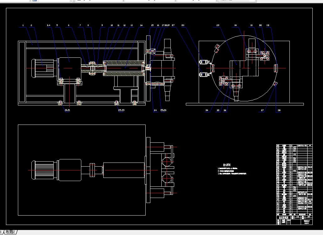
拖拉机拐轴体之间的焊缝是两条平面圆弧平焊缝,它们在两个不同的平面内。原先采用的是手工电弧焊,在平焊位置先焊接一条焊缝,翻转焊接另一条焊缝。在此过程中,需要人工手动翻转,因此生产效率低、焊接质量差、劳动强度大。为了解决这一问题,需要研制一台拐轴自动焊机,以实现拐轴的自动焊接。
本次设计采用双坐标十字滑台实现焊枪的圆周运动,通过气缸推动实现焊枪上下运动。通过圆盘机构上安装的夹紧气缸和定位V型块实现对零件的夹紧定位。采用两维数控系统,自动实现焊枪焊接拐轴平面圆弧平焊缝,翻转机构自动翻转,实现拐轴所有焊缝的焊接,还可控制翻转电机、焊机、汽缸等工作,实现拐轴的夹紧、焊接、翻转、焊接、复位、松开等自动控制。
其设计内容主要有:焊枪上下运动机构、十字滑台机构、夹枪座等组成了焊枪上下运动机构,可实现焊枪的抬升、下降和焊枪的高低、左右、角度等空间位置的调整等。零件夹紧机构、零件翻转和回转机构,电机和减速器的驱动部分,实现了零件的翻转。绘制自动化的设备的机械结构设计图、装配图设计图,编写相应设计说明书。
关 键 词:数控系统,自动焊,十字滑台,拐轴
目 录
前 言 1
第1章 自动焊接设备发展及课题简介 3
§1.1自动焊接设备的发展,行业的技术水平及与国外的对比 3
§1.2 拐轴自动焊设备设计简介 5
第2章 拐轴自动焊接机的总体设计 7
§2.1 焊枪水平圆周运动机构设计 7
§2.1.1 方案设计 7
§2.1.2 方案选择 7
§2.2 焊枪上下运动机构设计 8
§2.2.1 方案设计 8
§2.2.2 方案选择 10
§2.3翻转回转机构设计 10
§2.3.1 方案设计 10
§2.3.2 翻转和回转机构方案选择 11
§2.3.3夹紧定位方案设计 12
§2. 4 电气原理总体方案设计 13
第3章 通用机械装置的选用 14
§3.1 电机的选用 14
§3.2 十字滑台的选用 15
§3.3 减速器的选用 16
§3.4 夹紧气缸的选用 17
第4章 驱动机构的设计 19
§4.1 焊枪的上下行走机构设计校核 19
§4.1.1 轴的设计校核 19
§4.2 圆盘翻转机构中轴的设计校核 21
§4.2.1轴的设计校核 21
§4.3 键的选用及校核 22
第5章 总体机械设计 23
§5.1 机械装置总体设计 23
§5.2 翻转回转机构机械设计 24
§5.3 焊枪运动机构设计 25
§5.4 设备的工作流程设计 25
结 论 26
参考文献 27
致 谢 28
温馨提示:
1、题目前面的备注【字母数字编号】为本站整理分类的编号,与课题内容无关,请选题时忽视;
2、若题目上备注三维,则表示文件里包含三维源文件,由于三维组成零件数量较多,为保证预览截图的简洁性,本站将三维文件夹进行了打包。三维及CAD预览截图,均为本站电脑打开软件进行截图的,保证能够打开,下载原件超高清,下载后解压即可;
3、本站所有资源如无特殊说明,都需要本地电脑安装Office2007。图纸软件为AutoCAD,PROE,UG,SolidWorks,CATIA等;
4、本站所有图文资料仅供用户学习参考,不作为任何商用或其他用途;
5、本站不保证下载资源的准确性、安全性和完整性, 不包修改,不支持退换,同时也不承担用户因使用这些下载资源对自己和他人造成任何形式的伤害或损失;
6、 下载文件中如有侵权或不适当内容,请与我们联系,我们立即纠正。