

作品包括:
Word版说明书1份,共51页,约15000字
外文翻译一份
开题报告一份
CAD版本图纸,共7张
摘 要
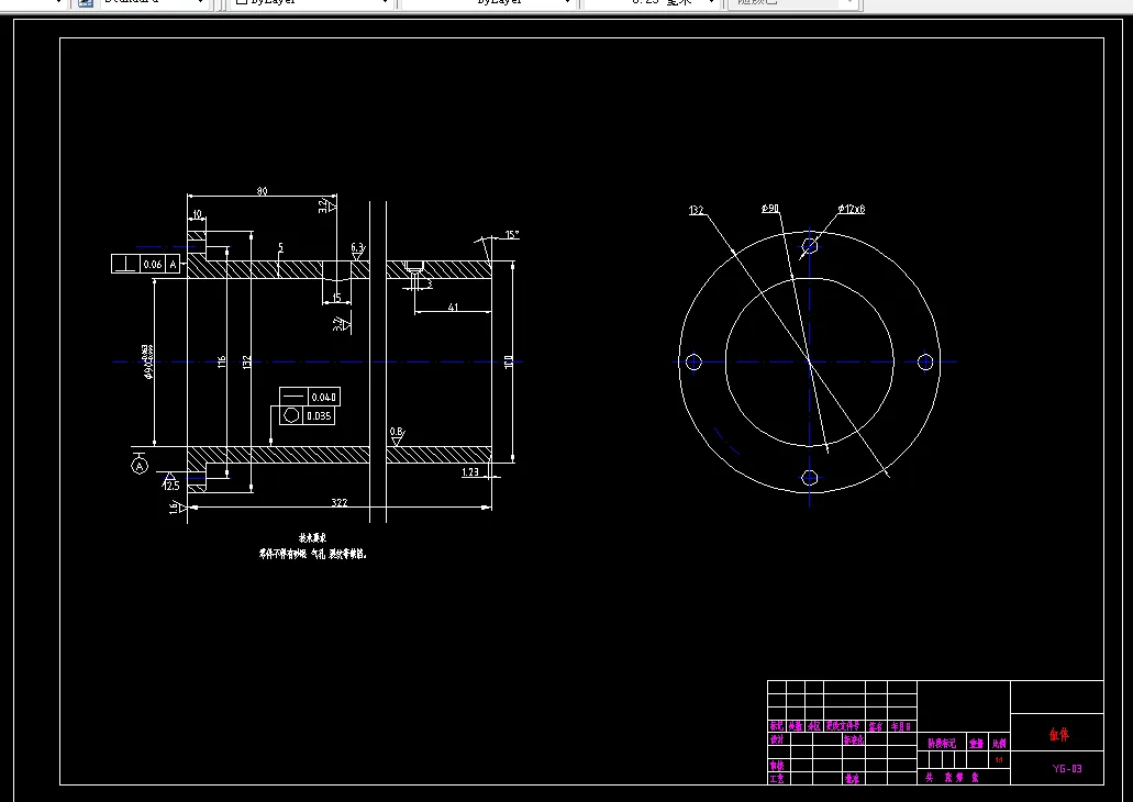
本设计对液压系统结构中的液压缸进行了详细的设计,首先确定了液压元件的执行方式和各个结构功能参数,然后针对这种液压缸的功能、机构特征,初步确定液压缸的系统原理图 ,接着对液压系统的各个元件进行详细的标准件计算、选择,最后将整个液压系统中各个元件优化组合并进行各项校核。
本设计共六章,第一章为液压传动概述,简单的介绍了液压缸的概述,应用领域、传动原理、主要组成、表达符号、现状及展望等,对其液压系统有一个简单的认识。第二章为液压缸的计算依据,对液压缸的各种液压件的主要参数及常用计算公式进行了比较详尽的计算。第三章为液压缸的典型结构,对各种液压缸的典型结构进行了比较详尽的介绍。第四章为液压缸主要零部件设计,本章为本设计的重要章节,对液压缸主要零部件进行了详细的计算,校核。第五章为液压缸典型产品的介绍,本章为介绍章节,简单的介绍了各种液压缸在实际生活中的应用。第六章为设计主要尺寸图纸,对本设计展示的图纸加以介绍。
本设计注重“少而精”的原则,突出重点;以应用为导向,重视理论与实践相结合;适当反映出国内外液压系统的科技成果和发展趋势。
关键词 液压缸; 活塞; 缓冲; 连接方式
目 录
摘 要 I
Abstract II
第1章引言 1
第2章 液压缸的概述 2
1.1液压缸的分类 2
1.2 主要参数及常用计算公式 4
1.2.1压力 4
1.2.2主要尺寸及面积比 4
1.2.3液压缸活塞的理论推理和拉力 5
1.2.4效率 7
1.2.5液压缸负载率 8
1.2.6活塞瞬间线速度 8
1.2.7活塞作用力F 10
1.2.8活塞加速度a 10
1.2.9活塞加(减)速时间 ( ) 11
1.2.10活塞加(减)速行程 ( ) 11
1.2.11液压缸流量 11
1.2.12液压缸功率P 11
第3章液压缸的典型结构 11
3.1端盖与缸筒连接方式 11
3.1.1拉杆型液压缸 11
3.1.2螺纹盖型液压缸 11
3.1.3法兰型液压缸。 11
3.2专用液压缸典型结构 11
3.2.1特殊结构液压缸 11
3.2.2电液伺服液压缸 11
3.2.3特殊工质液压缸 11
3.2.4组合液压缸 11
3.2.5多级液压缸 11
第4章 液压缸主要零部件设计 11
4.1缸筒的设计计算 11
4.1.1主要技术要求 11
4.1.2缸筒结构 11
4.1.3缸筒计算 11
4.1.4缸筒厚度计算: 11
4.1.5缸筒厚度验算 11
4.1.6缸筒底部厚度计算 11
4.1.7缸筒螺纹连接部分强度计算 11
4.1.8缸筒材料 11
4.2活塞件的设计计算 11
4.2.1活塞结构型式 11
3.2.2密封件沟槽尺寸,公差及粗糙度 11
4.2.3材料 11
4.2.4活塞尺寸及公差 11
4.3.1结构 11
4.3.2活塞杆直径计算 11
4.4导向环的设计计算 11
4.4.1导向环主要优点 11
4.4.2导向环的型式 11
4.4.3导向环的尺寸不同。 11
4.5活塞杆导向套 11
4.5.1结构式 11
4.5.2材料 11
4.5.3尺寸配置 11
4.5.4加工要求 11
4.6中隔圈的设计计算(限位圈) 11
4.6.1结构(图12) 11
4.6.2中隔圈长度 的确定方法 11
4.7缓冲机构设计计算 11
4.7.1一般技术要求 11
4.7.2结构型式 11
4.7.3缓冲计算 11
4.7.4调整缓冲机构尺寸 11
4.8液压缸辅件说明 11
4.8.1耳环 11
当耳环不带球铰时,R=1.4d 11
4.8.2耳环轴套 11
4.8.3耳环支座国际标准安装尺寸 11
4.8.4耳轴支座国际标准安装尺寸 11
4.8.5防护套 11
第5章 结论 11
参 考 文 献 11
致 谢 11
温馨提示:
1、题目前面的备注【字母数字编号】为本站整理分类的编号,与课题内容无关,请选题时忽视;
2、若题目上备注三维,则表示文件里包含三维源文件,由于三维组成零件数量较多,为保证预览截图的简洁性,本站将三维文件夹进行了打包。三维及CAD预览截图,均为本站电脑打开软件进行截图的,保证能够打开,下载原件超高清,下载后解压即可;
3、本站所有资源如无特殊说明,都需要本地电脑安装Office2007。图纸软件为AutoCAD,PROE,UG,SolidWorks,CATIA等;
4、本站所有图文资料仅供用户学习参考,不作为任何商用或其他用途;
5、本站不保证下载资源的准确性、安全性和完整性, 不包修改,不支持退换,同时也不承担用户因使用这些下载资源对自己和他人造成任何形式的伤害或损失;
6、 下载文件中如有侵权或不适当内容,请与我们联系,我们立即纠正。