

作品包括:
word说明书一份,共53页,约22000字
CAD版本图纸,共14张
摘要
液压土锚钻机是进行土层锚固的关键设备,被广泛应用于建筑施工、路桥构筑和坝基稳固等工程中。研究与开发液压土锚钻机,对于促进土层锚固技术的快速发展,实现高性能液压土锚钻机的国产化,具有重要意义。
本设计对液压土锚钻机工作原理分析的基础上,主要对其液压系统进行详细的分析与设计。在设计过程中,针对原有的YM160型液压步履土锚钻机的基础上,采用单斗液压挖掘机的部分设计思想。重点对液压缸与油箱的结构参数进行设计计算,以及液压泵、液压马达和控制阀等元件的选用。最后,还应该对液压系统的安装,使用和维护进行分析。
经过对以上部件的计算和选型,锚杆钻机的液压系统已经初步完成。此次设计说明锚杆钻机液压系统的每个参数都是关联的,因此要充分考虑相关机构的参数,使得性能符合要求,并具有一定的经济性。最终完成锚杆转机的工作要求。根据各项计算的结果,表明各液压系统的结构参数满足土锚钻机的使用要求。
关键词:液压土锚钻机液压系统 液压缸 油箱 安装维护
目录
绪论 1
1.1引言 1
1.2锚杆钻机发展阶段 1
1.3国内外锚杆钻机发展概况 1
1.3.1国外锚杆钻机发展概况 1
1.3.2国内锚杆钻机的研制状况 2
1.4 本次设计的主要内容 3
1.5 本次设计的意义和目的 3
1.6 本次设计的技术难点及分析 4
1.7 完成课题所采用的主要方法、手段。 4
2 液压系统设计 4
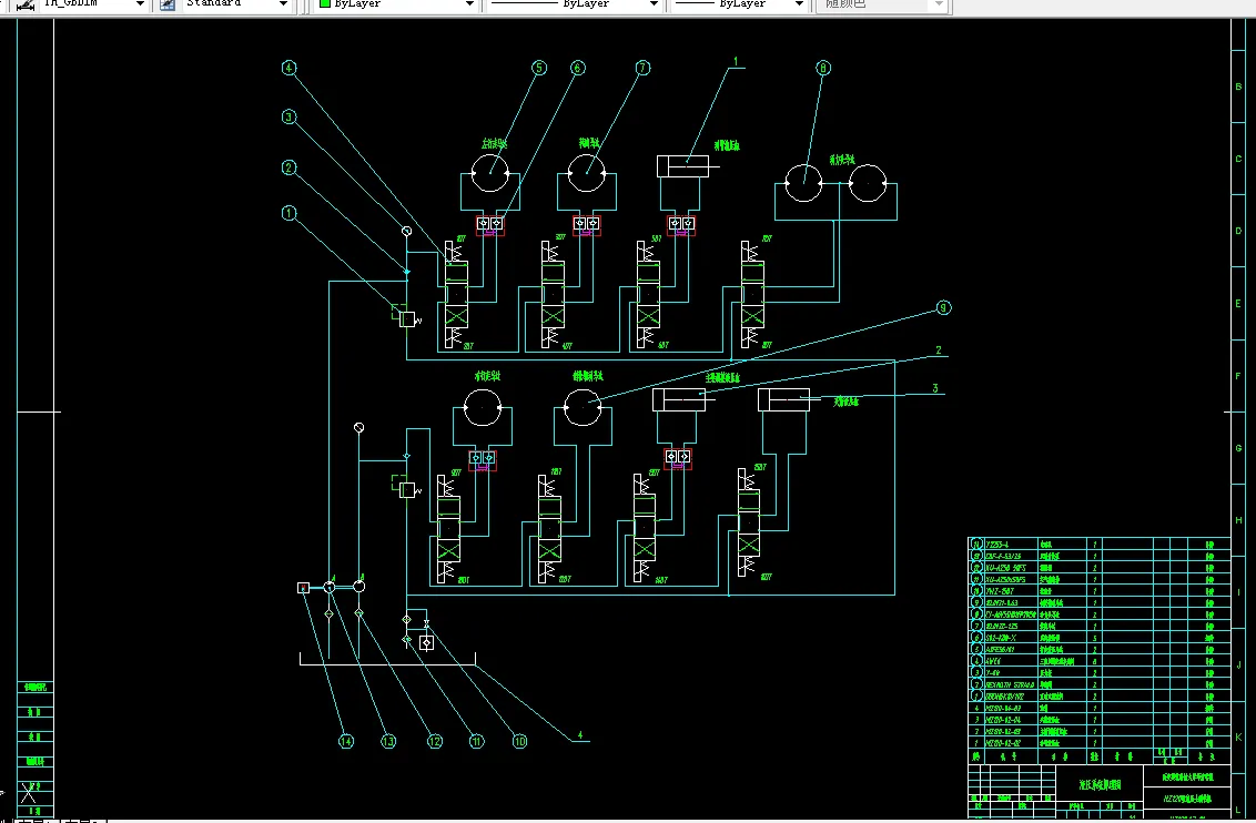
2.1 液压系统工作原理图 4
2.2 液压系统工作原理 5
3 液压缸的设计 7
3.1 液压缸的分类及其特点 7
3.2 液压缸的工况分析及负载的确定 8
3.2.1 液压结构工作原理简图 8
3.2.2 最大负载的确定 8
3.3 液压缸工作压力的初选 10
3.4 液压缸内径D的计算 11
3.5 液压缸的壁厚和外径的确定 11
3.6 液压缸工作行程S的确定 13
3.7 液压缸、活塞杆、活塞主要参数和结构形式的确定 14
3.7.1 活塞杆直径的计算 14
3.7.2活塞和缸体的密封形式及活塞外径的计算 14
3.7.3 活塞中心孔的计算 15
3.7.4活塞的密封、材料、尺寸和加工公差的确定 15
3.7.5液压缸纵向弯曲极限应力的计算和稳定校核 16
3.7.6活塞杆的结构 17
3.7.7 活塞杆的材料和技术要求 17
3.7.8 缸头主要尺寸的确定 18
3.7.9 缸盖厚度的确定 19
3.7.10 缸筒长度的确定 20
3.7.11 活塞杆长度的确定 20
3.7.12 液压缸筒和缸头的连接计算 21
3.7.13缸筒和缸盖的连接计算 22
3.7.14 活塞杆的导向套 22
3.7.15 液压管件的设计 23
4 液压马达的选择 24
4.1 动力头液压马达选择 24
4.2 行走装置液压马达的选择 25
4.3 链轮液压马达的选择 26
4.4 转向机构液压马达的选择 26
5 液压泵的选择 27
5.1 液压泵概述 27
5.2 确定泵的流量 27
5.3 选择液压泵 28
6 油箱的设计计算 29
6.1油箱的容量及计算 30
6.1.1油箱容量的初步计算 30
6.1.2按发热和散热关系确定油箱容量 30
6.2油箱的构造与设计要点 34
7 液压辅助元件的选用 35
7.1过滤器的选用 35
7.2管件的选择 36
7.2.1油管的选用及计算 36
7.2.2管接头的选择 39
7.3密封装置 40
7.3.1对密封装置的要求 40
7.3.2密封件的材料及密封件的类型 40
7.4压力表及压力表辅件 40
7.5液压油的选择 40
8 液压传动系统的安装、使用和维护 41
8.1液压元件的安装 41
8.1.1液压泵的安装要求 41
8.1.2液压马达的安装要求 41
8.1.3液压阀的安装要求 41
8.1.4液压缸的安装要求 42
8.1.5油箱装置安装要求 42
8.1.6其他辅助元件的安装要求 42
8.2 液压元件的使用和维护 43
8.2.1 液压系统的日常检查和定期检查 43
8.2.2 液压系统的一些注意事项 45
致 谢 45
参考文献 46
温馨提示:
1、题目前面的备注【字母数字编号】为本站整理分类的编号,与课题内容无关,请选题时忽视;
2、若题目上备注三维,则表示文件里包含三维源文件,由于三维组成零件数量较多,为保证预览截图的简洁性,本站将三维文件夹进行了打包。三维及CAD预览截图,均为本站电脑打开软件进行截图的,保证能够打开,下载原件超高清,下载后解压即可;
3、本站所有资源如无特殊说明,都需要本地电脑安装Office2007。图纸软件为AutoCAD,PROE,UG,SolidWorks,CATIA等;
4、本站所有图文资料仅供用户学习参考,不作为任何商用或其他用途;
5、本站不保证下载资源的准确性、安全性和完整性, 不包修改,不支持退换,同时也不承担用户因使用这些下载资源对自己和他人造成任何形式的伤害或损失;
6、 下载文件中如有侵权或不适当内容,请与我们联系,我们立即纠正。