

作品包括:
Word版设计说明书1份,共35页,约12000字
任务书一份
CAD版本图纸,共12张
摘 要
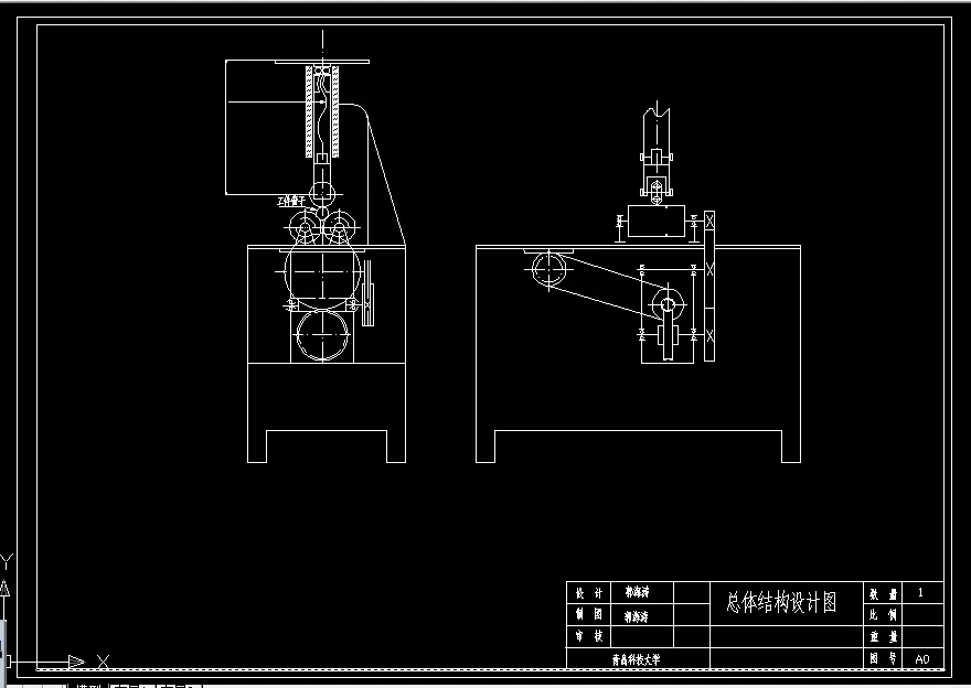
碾压式切管机的设计是一项技术革新项目。切管机主要用于车辆,工业或建材生产中的批量下料工作,用于切割 的金属管。它的特点是工作平稳、连续、效率高、劳动强度低、能保证尺寸精确度的要求,适应于在各种环境下的连续工作。
碾压式切管机的工用原理是:由电动机经V带传动,蜗轮减速箱、开式齿轮传动到一对滚子,从而带动(金属管)的旋转,实现切割时的主运动。与此同时,操纵手轮,通过螺旋传动,将圆盘刀片向下移动进给,并在不断增加刀片对管子的压力过程中,实现管子的切割工作。
原始数据:滚子的转速为 =70转/分,驱动电动机的型号选择JO2-22-4,其额定功率为 =1.5千瓦,满载转速 =1410转/分 ,切管直径D为3/8〞~
4〞
本次设计,主要是针对车辆用金属管材进行加工的切割机,完成的工作主要是切管机中的滚子,机体和减速箱部分的设计.包括传动装置的设计和计算,其中有电动机的选择,传动方案的拟定,各轴的转速,功率和转矩的计算.总体结构的设计,其中有各轴尺寸的设计,各主要传动件的结构尺寸的设计.并且针对以上的设计计算进行了详细的校核.最后通过得到的数据,绘制了总体装配图,减速机和滚子部分的装配图.然后又针对各主要基本件,绘制了多张零件图。为了确定最佳方案,采取了多种方案进行了认真分析、研究和比较。
关键词: 切管机;设计计算;结构设计;批量下料;方案
目 录
1 方案的选择与论证................................................... 4
1.1 电动机的选择......................................................5
1.2 拟定传动方案......................................................6
1.3 总体结构设计.....................................................10
2 传动装置的设计与计算...................................................11
2.1 传动比分配.......................................................11
2.2 计算各轴的转速,功率和转矩.......................................11
2.2.1 各轴的转速................................................ 11
2.2.2 各轴的功率.............................................. 12
2.2.3 各轴传递的转矩...............................................12
3 进行传动机构的设计与计算................................................14
3.1 带传动设计........................................................14
3.2 齿轮传动设计......................................................15
4 结构设计.......................................................... 18
4.1 初算各轴的最小直径............................................... 18
4.2 计算各主要传动件的结构尺寸........................................19
4.3 初定轴承跨距......................................................22
5 设计总结................................................................27
参考文献..................................................................28
致 谢..................................................................29
附 录..................................................................30
实习报告..............................................................30
实习日记........................................................... ..33
温馨提示:
1、题目前面的备注【字母数字编号】为本站整理分类的编号,与课题内容无关,请选题时忽视;
2、若题目上备注三维,则表示文件里包含三维源文件,由于三维组成零件数量较多,为保证预览截图的简洁性,本站将三维文件夹进行了打包。三维及CAD预览截图,均为本站电脑打开软件进行截图的,保证能够打开,下载原件超高清,下载后解压即可;
3、本站所有资源如无特殊说明,都需要本地电脑安装Office2007。图纸软件为AutoCAD,PROE,UG,SolidWorks,CATIA等;
4、本站所有图文资料仅供用户学习参考,不作为任何商用或其他用途;
5、本站不保证下载资源的准确性、安全性和完整性, 不包修改,不支持退换,同时也不承担用户因使用这些下载资源对自己和他人造成任何形式的伤害或损失;
6、 下载文件中如有侵权或不适当内容,请与我们联系,我们立即纠正。