

作品包括:
Word版设计说明书1份,共37页,约18000字
外文翻译一份
开题报告一份
CAD版本图纸,共19张
冲床上料机械手设计
摘 要
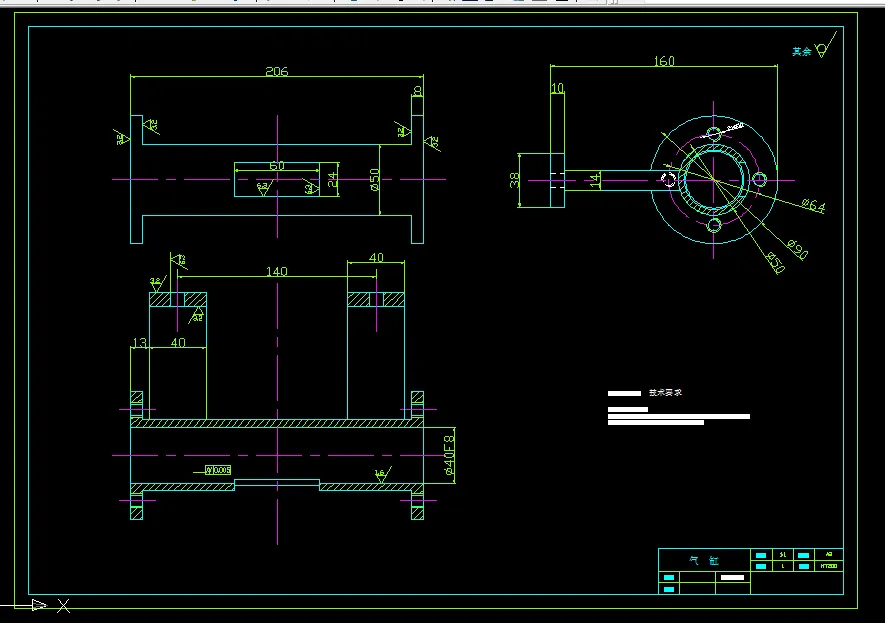
机械手是模仿着人手的部分动作,按给定程序、轨迹实现自动抓取、搬运和操作的自动机械装置。在工业生产中应用的机械手被称为“工业机械手”。本次设计的60吨冲床上料机械手根据规定的动作顺序,完成对机械手的设计,对机械手的工作原理,结构使用范围,特点参数选择等方面进行了阐述。此60吨冲床上料机械手主要是给冲床进行上料和从储料框中取料;机械手的抓重1Kg;1个自由度三个具体动作,自由度为腰座的转动,采用圆柱坐标;其余两个动作为机械手的升降和伸缩,采用螺母和螺栓调节,可根据生产的需要改变机械手手臂的高度和长度以及更换吸盘。回转角度:60度;送料频率:50-60次/分;驱动方式为气压传动;机械手的腰座回转采用气缸带动齿条齿轮驱动;本设计主要对手部进行了设计和计算,腰座回转采用回转气缸。
关键词:上料机械手;冲床上料;气压传动
目 录
1 绪论 1
1.1 机械手简介 1
1.2 机械手发展现状及应用 1
1.2.1国内外发展现状 1
1.2.2机械手的应用 4
2 机械手的总体设计 7
2.1 机械手的总体结构 7
2.1.1 机械手组成 7
2.1.2 机械手坐标形式的确定 9
2.1.3上料机械手的组成及工作原理 9
2.2 机械手腰座结构的设计 11
2.1.1 机械手的驱动系统的确定 12
2.1.2 机械手的机械传动机构的确定 15
2.3 机械手手臂的结构设计 18
2.4 机械手手部的结构设计 19
3 机械手理论分析和设计计算 21
3.1 系统设计计算 21
3.1.1 确定气压系统基本方案 21
3.1.2 气压缸的总机械载荷的计算 22
3.1.3 气缸强度的计算及校核 23
3.1.4 计算和选择气缸元件 25
3.2 吸盘的选择和计算 25
总 结 29
参考文献 30
致 谢 31
温馨提示:
1、题目前面的备注【字母数字编号】为本站整理分类的编号,与课题内容无关,请选题时忽视;
2、若题目上备注三维,则表示文件里包含三维源文件,由于三维组成零件数量较多,为保证预览截图的简洁性,本站将三维文件夹进行了打包。三维及CAD预览截图,均为本站电脑打开软件进行截图的,保证能够打开,下载原件超高清,下载后解压即可;
3、本站所有资源如无特殊说明,都需要本地电脑安装Office2007。图纸软件为AutoCAD,PROE,UG,SolidWorks,CATIA等;
4、本站所有图文资料仅供用户学习参考,不作为任何商用或其他用途;
5、本站不保证下载资源的准确性、安全性和完整性, 不包修改,不支持退换,同时也不承担用户因使用这些下载资源对自己和他人造成任何形式的伤害或损失;
6、 下载文件中如有侵权或不适当内容,请与我们联系,我们立即纠正。