

作品包括:
word说明书一份,共79页,约32000字
CAD版本图纸,共9张
摘 要
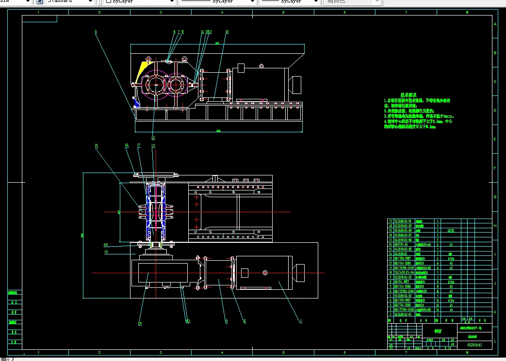
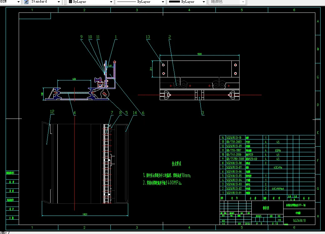
刮板输送机是综采工作面配套设备的重要组成部分, 是采煤工作面的主要运输设备。刮板输送机的可靠、稳定、高效运行将直接影响着采煤工作面的生产能力和效率。为提高生产能力刮板输送机有向重型化及超重型化发展的趋势。本文首先综合比较了各种类型输送机的特点,根据实际情况选用了中双链型刮板输送机。而后,对中双链型刮板输送机进行了总体结构设计;对机头及机尾传动系统、过渡槽、偏转槽、中部槽、刮板链、刮板、链轮、机头、机尾等主要部件进行了技术分析和结构设计,完成了中双链型刮板输送机的整体设计以及机头部、中部槽、链轮轴组等重要部件的设计。最后对减速器及链轮轴组的轴、齿轮等重要零件进行了详细的零件设计。此次设计的中双链型刮板输送机的特点是结构简单,受力均匀,运行平稳,摩擦阻力小,溜槽利用率高,弯曲性能好,不易出现堵塞,具有很强的适应性。
关键词:刮板输送机;中双链;传动系统 ;中部槽
目 录
1 概述 1
1.1 用于薄煤层开采的刮板输送机成套设备 1
1.2 刮板输送机的使用范围和主要类型、系列 1
1.3刮板输送机的发展 2
1.4刮板输送机的主要特点: 2
1.5主要技术特征 3
1.6工作原理与结构特征 4
1.7输送机的传动系统及组成 5
1.7.1输送机主要零部件的结构特点及作用: 5
2.传动部的设计及计算 7
2.1刮板输送机中部槽的验算 7
2.2运行阻力的计算 7
2.3牵引力及电机功率的验算 8
2.4电动机的选择 8
2.5总传动比及传动比的分配 9
2.5.1刮板输送机的选型计算 9
2.5.2总传动比的确定 11
2.5.3传动比的分配 11
2.6传动部传动计算 13
2.6.1各级传动转速、功率、转矩 13
2.6.2 传动部直齿圆锥齿轮设计计算 14
2.6.3传动部圆柱齿轮设计计算 24
2.6.4传动部行星机构的设计计算 29
2.6.5轴的设计及校核 41
2.7轴承的寿命校核 47
2.8行星轮轴承寿命的计算 48
2.9键的设计与强度校核 49
2.10联轴器的选用 53
2.10.1液力耦合联轴器 53
3刮板输送机的使用和维护 54
3.1润滑及注油 54
3.2重型刮板输送机的安装、运行与维护 54
3.2.1重型刮板输送机的安装与试运转 54
3.2.2刮板输送机的运行注意事项 56
3.2.3常见故障及处理方法 57
3.2.4刮板输送机的常规保养及维护 58
3.2.5刮板输送机上使用的新型传动系统 59
结 论 61
参考文献 62
翻译部分 63
英文原文 63
中文译文 70
致 谢 76
温馨提示:
1、题目前面的备注【字母数字编号】为本站整理分类的编号,与课题内容无关,请选题时忽视;
2、若题目上备注三维,则表示文件里包含三维源文件,由于三维组成零件数量较多,为保证预览截图的简洁性,本站将三维文件夹进行了打包。三维及CAD预览截图,均为本站电脑打开软件进行截图的,保证能够打开,下载原件超高清,下载后解压即可;
3、本站所有资源如无特殊说明,都需要本地电脑安装Office2007。图纸软件为AutoCAD,PROE,UG,SolidWorks,CATIA等;
4、本站所有图文资料仅供用户学习参考,不作为任何商用或其他用途;
5、本站不保证下载资源的准确性、安全性和完整性, 不包修改,不支持退换,同时也不承担用户因使用这些下载资源对自己和他人造成任何形式的伤害或损失;
6、 下载文件中如有侵权或不适当内容,请与我们联系,我们立即纠正。