

作品包括:
word说明书一份,共87页,约32000字
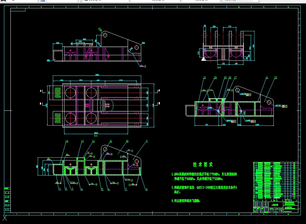
CAD版本图纸,共7张
摘 要
采煤综合机械化,是加速我国煤炭工业发展,大幅度提高劳动生产率,实现煤炭工业现代化的一项战略措施。综合机械化不仅产量大,效率高,成本低,而且能减轻笨重的体力劳动,改善作业环境,是煤炭工业技术的发展方向。而液压支架是综合机械化采煤方法中最重要的设备之一。
液压支架主要有以下几个基本部分组成:顶梁,底座,液压支柱,千斤顶,掩护梁,四连杆机构。设计要遵从支护性能好、强度高、移架速度快、安全可靠等原则。
在支撑掩护式的设计中,前梁、主顶梁、掩护梁和立柱等结构件的设计是重点。本论文介绍了液压支架的结构、类型、工作原理、目的及要求,对掩护使液压支架作了详尽的分析和介绍,讲述了这种支架的设计方案和用途。
关键词:液压支架; 支护; 四连杆机构; 顶梁; 掩护梁; 液压支柱或者支柱; 结构设计.
目 录
1 综 述………………………………………………………………………………1
1.1放顶煤支架架型的发展与演变………………………………………………1
1.2放顶煤液压支架的特点及分析………………………………………………5
1.2.1 放顶煤支架的安全性及分析………………………………………………5
1.2.2 低位放顶煤支架的特点及分析……………………………………………6
2 液压支架整体结构尺寸设计 ……………………………………………………7
2.1 支架高度、支架间距、底座长度的确定……………………………………7
2.1.1支架高度和支架伸缩比 …………………………………………………7
2.1.2支架的中心距…………………………………………………………………8
2.1.3底座长度……………………………………………………………………… 9
2.2四连杆机构的作用及几何作图的设计 ……………………………………9
2.2.1四连杆机构的作用……… ………………………………………………9
2.2.2四连杆机构的几何特征……………………………………………………9
2.2.3四连杆机构的几何作图法 ………………………………………………11
2.3 顶梁长度的确定 …………………………………………………………15
2.3.1支架工作方式的顶梁影响 ………………………………………………15
2.3.2顶梁参数的计算 …………………………………………………………15
2.4立柱位置的确定……………………………………………………………16
2.4.1立柱数 ……………………………………………………………………16
2.4.2支撑方式 …………………………………………………………………16
2.4.3 立柱间距…………………………………………………………………16
3 液压支架的结构部件设计 ……………………………………………………17
3.1 顶梁…………………………………………………………………………17
3.1.1用途 ………………………………………………………………………17
3.1.2结构形式 …………………………………………………………………17
3.2 立柱…………………………………………………………………………19
3.3 掩护梁和四连杆机构………………………………………………………21
3.3.1掩护梁 ……………………………………………………………………21
3.3.2四连杆机构 ………………………………………………………………22
3.4 底座…………………………………………………………………………23
3.4.1用途 ………………………………………………………………………23
3.4.2结构形式及特点 …………………………………………………………23
3.5 侧护板………………………………………………………………………24
3.5.1直角式单侧活动侧护板 …………………………………………………25
3.5.2直角式双侧可调活动侧护板 ……………………………………………25
3.5.3折页式活动侧护板 ………………………………………………………26
3.6 千斤顶………………………………………………………………………27
3.6.1推移千斤顶 ………………………………………………………………27
3.6.2平衡千斤顶 ………………………………………………………………27
3.6.3侧推千斤顶 ………………………………………………………………27
3.6.4前梁千斤顶 ………………………………………………………………28
3.6.5护帮千斤顶 ………………………………………………………………28
3.7 推移装置设计………………………………………………………………28
3.7.1短推移杆 …………………………………………………………………28
3.7.2长推移杆 …………………………………………………………………29
3.8 放煤机构的设计……………………………………………………………31
3.8.1中四连杆机构的放煤设计 ………………………………………………31
3.8.2后四连杆机构的放煤设计 ………………………………………………32
4 液压支架受力分析 ……………………………………………………………33
4.1 概述 ………………………………………………………………………33
4.1.1液压支架工作状态 ………………………………………………………33
4.1.2计算载荷的确定 …………………………………………………………33
4.2 液压支架基本技术参数的确定 …………………………………………34
4.2.1支护强度 …………………………………………………………………34
4.2.2 初撑力 ……………………………………………………………………35
4.2.3移架力和推溜力 …………………………………………………………35
4.2.4立柱及相关液压系统参数的确定 ………………………………………35
4.2.5立柱强度验算 ……………………………………………………………37
4.2.6立柱柱窝的确定 …………………………………………………………44
4.2.7液压支架主要技术参数 …………………………………………………45
4.3 支架受力分析………………………………………………………………48
4.3.1支架整体受力分析所需参数 ……………………………………………48
4.3.2支架整体受力分析 ………………………………………………………49
4.3.3前梁受力分析 ……………………………………………………………49
4.3.4顶梁的受力分析与计算 …………………………………………………50
4.3.5掩护梁的受力分析与计算 ………………………………………………51
4.3.6底座的受力分析与计算 …………………………………………………53
4.4 顶梁载荷分布………………………………………………………………53
4.5 底座接触比压………………………………………………………………55
5液压支架的强度计算……………………………………………………………56
5.1 强度条件……………………………………………………………………56
5.2 液压支架的强度校核………………………………………………………58
5.2.1前梁强度校核 ……………………………………………………………58
5.2.2主顶梁强度校核 …………………………………………………………60
5.2.3底座强度校核 ……………………………………………………………63
5.2.4掩护梁的强度校核 ………………………………………………………67
5.2.5 前连杆强度校核…………………………………………………………71
5.2.6 后连杆强度校核…………………………………………………………72
5.3支架连接销轴的强度校核…………………………………………………73
结论 ………………………………………………………………………………75
参考文献 …………………………………………………………………………76
翻译部分 …………………………………………………………………………77
外文译文……………………………………………………………………78
中文译文……………………………………………………………………82
致谢 ………………………………………………………………………………87
温馨提示:
1、题目前面的备注【字母数字编号】为本站整理分类的编号,与课题内容无关,请选题时忽视;
2、若题目上备注三维,则表示文件里包含三维源文件,由于三维组成零件数量较多,为保证预览截图的简洁性,本站将三维文件夹进行了打包。三维及CAD预览截图,均为本站电脑打开软件进行截图的,保证能够打开,下载原件超高清,下载后解压即可;
3、本站所有资源如无特殊说明,都需要本地电脑安装Office2007。图纸软件为AutoCAD,PROE,UG,SolidWorks,CATIA等;
4、本站所有图文资料仅供用户学习参考,不作为任何商用或其他用途;
5、本站不保证下载资源的准确性、安全性和完整性, 不包修改,不支持退换,同时也不承担用户因使用这些下载资源对自己和他人造成任何形式的伤害或损失;
6、 下载文件中如有侵权或不适当内容,请与我们联系,我们立即纠正。