

作品包括:
说明书一份,共19页,约5200字
PPT答辩一份
CAD版本图纸,共6张
摘 要
本次毕业设计的题目是履带式液压挖掘机功挖掘机。和其他类型的比较,类似于这种类型的挖掘机性能良好并且应用广泛,软土地表面或沼泽地面也可以行使使用,并且可以减少对地面的压力。
液压挖掘机的主要特点是:可无级调速,调速范围大,能得到较低的稳定转速,动作快,液压元件的运动的运动惯性,加速性能好,并能高速反转,传输是非常顺利,非常简单的结构,可吸收的影响和振动,操作省力,易实现自动控制,易于实现标准化,系列化,泛化。
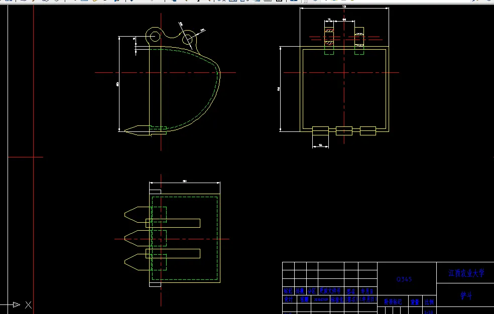
本设计斗容量是Q=0.2m3,它属于小型液压挖掘机,工作装置的传动原理,液压挖掘机,主要设计。
本次毕业设计,选择为履带式的液压挖掘机,为了满足要求。在转盘上表面是整个旋转,因此它可以在更大的范围内工作。由于采用液压传动与控制可以提高整体性能。随着现代挖掘机相比,开采量增加到2 ~ 3倍,质量大约是6吨,挖掘力约为30kN,排放的最大高度约为2.65m,最大挖掘深度4.2m,最大挖掘半径大约是5.728m,可从机器的操作能力有了很大的提高,不仅挖掘能力大,和机器的重量,传动平稳,工作效率很高,结构紧凑
目录
摘 要 1
ABSTRACT 2
第一章 液压挖掘机的工作特点和基本类型 4
1. 1 液压挖掘机的主要优点和特点 4
1. 2 液压挖掘机的基本类型及主要特点 4
1. 3 反铲装置的工作原理 5
第二章 工作装置基本尺寸计算 8
2. 1 铲斗参数的选择 8
2. 2 斗齿参数的选择 9
2. 3 动臂参数的选择 9
2. 4 斗杆参数的选择 10
2. 5 连杆、摇臂参数的选择 11
第三章 挖掘机液压系统设计 12
3. 1 设计要求 12
3. 2 动力元件的选择 12
3. 3 执行元件的选择 13
3. 4 液压控制元件选择 15
3. 5 液压系统辅助元件选择 15
第四章 注释 16
参考文献 17
温馨提示:
1、题目前面的备注【字母数字编号】为本站整理分类的编号,与课题内容无关,请选题时忽视;
2、若题目上备注三维,则表示文件里包含三维源文件,由于三维组成零件数量较多,为保证预览截图的简洁性,本站将三维文件夹进行了打包。三维及CAD预览截图,均为本站电脑打开软件进行截图的,保证能够打开,下载原件超高清,下载后解压即可;
3、本站所有资源如无特殊说明,都需要本地电脑安装Office2007。图纸软件为AutoCAD,PROE,UG,SolidWorks,CATIA等;
4、本站所有图文资料仅供用户学习参考,不作为任何商用或其他用途;
5、本站不保证下载资源的准确性、安全性和完整性, 不包修改,不支持退换,同时也不承担用户因使用这些下载资源对自己和他人造成任何形式的伤害或损失;
6、 下载文件中如有侵权或不适当内容,请与我们联系,我们立即纠正。