

作品包括:
word说明书一份,共40页,约13000字
CAD版本图纸,共20张
PROE三维图纸,一套
摘 要
机械手是在机械化,自动化生产过程中发展起来的一种新型装置。机械手虽然目前还不如人手那样灵活,但它具有能不断重复工作和劳动,不知疲劳,不怕危险,抓举重物的力量比人手力大的特点,因此,机械手已受到许多部门的重视,并越来越广泛地得到了应用。
在机械加工中,大部分零件都要进行多种工序加工。在一般数控机床的整个加工过程中,真正用于切削的时间只占整个工作时间的30%左右,其余的大部分时间都花在安装、调整刀具、装卸、搬运零件和检查加工精度等辅助工作上。自动换刀装置是数控加工中心在工件的一次装夹中实现多道工序加工不可缺少的装置。为充分发挥机床的作用,数控中心均配有自动换刀装置。
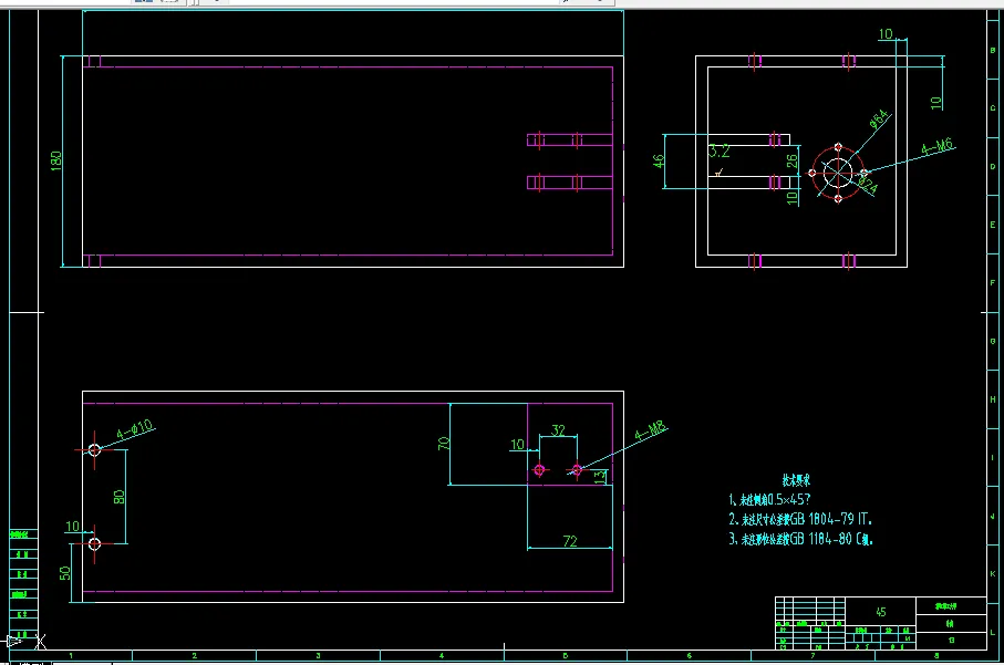
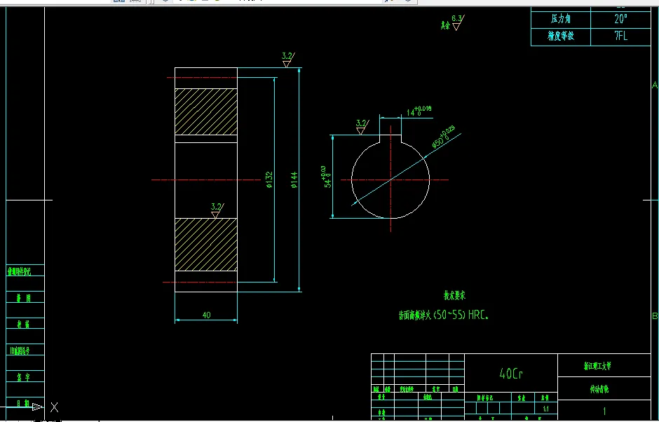
本课题重点在于镗铣加工中心换刀机械手的结构设计。目前工业机械手主要用于机床加工、铸造、热处理等方面,无论数量,品质还是性能方面都不能完全满足工业发展的需要。本课题重点解决的问题:换刀机械手部件的结构设计,对关键零件进行校核以及尺寸的优化选取。
主要设计内容有:
(1)设计镗铣加工中心换刀机械手部件的结构,传动系统以及驱动系统,使其能够满足快速,平稳,准确换刀的功能。
(2)完成重要零件的设计,主要包括齿轮的设计,轴的设计,手指的设计。使用Pro/E对所有换刀机械手零件进行三维建模,并建立总装模型。
(3)用AutoCAD画出换刀机械手重要零部件的二维图纸。
关键词:镗铣加工中心;结构设计;换刀机械手;伸缩回转式单臂双爪机械手。
目 录
摘 要
Abstract
第1章 绪论 1
1.1选题的背景和意义 1
1.2国内外研究现状和发展趋势 1
1.2.1机械手简介 1
1.2.2 机械手的分类 3
1.2.3工业机械手研究趋势 6
1.3 换刀机械手研究意义 7
1.4 设计的内容和思路 7
第2章 镗铣加工中心换刀机械手总体设计 8
2.1 换刀机械手的工作原理分析 8
2.2 机械手的平稳性 10
2.3 机械手的运动特性 11
2.4 换刀机械手方案的确定 12
第3章 换刀机械手的总体方案设计 12
3.1手爪部分设计 12
3.2 机械手手臂的设计 13
3.3 机械手传动方式的选择 14
3.3.1机械手转过180度的传动机构选择 14
3.3.2 主轴以及机械手上下伸缩的传动机构设计 16
3.4 换刀机械手驱动机构的选择 18
第4章 换刀机械手的结构设计及尺寸确定 19
4.1 手指结构设计及计算 19
4.1.1 手指夹紧力的计算 19
4.1.2 手指部分的相关校核 21
4.2手臂的弯曲变形 23
4.3 轴与机械手配合部分的直径的选取 25
4.4 机械手转过180度的驱动机构设计 26
4.5 设计参数 29
第5章 总结与展望 30
参考文献 31
致 谢 33
温馨提示:
1、题目前面的备注【字母数字编号】为本站整理分类的编号,与课题内容无关,请选题时忽视;
2、若题目上备注三维,则表示文件里包含三维源文件,由于三维组成零件数量较多,为保证预览截图的简洁性,本站将三维文件夹进行了打包。三维及CAD预览截图,均为本站电脑打开软件进行截图的,保证能够打开,下载原件超高清,下载后解压即可;
3、本站所有资源如无特殊说明,都需要本地电脑安装Office2007。图纸软件为AutoCAD,PROE,UG,SolidWorks,CATIA等;
4、本站所有图文资料仅供用户学习参考,不作为任何商用或其他用途;
5、本站不保证下载资源的准确性、安全性和完整性, 不包修改,不支持退换,同时也不承担用户因使用这些下载资源对自己和他人造成任何形式的伤害或损失;
6、 下载文件中如有侵权或不适当内容,请与我们联系,我们立即纠正。