

作品包括:
word说明书一份,共41页,约15000字
CAD版本图纸,共5张
摘要
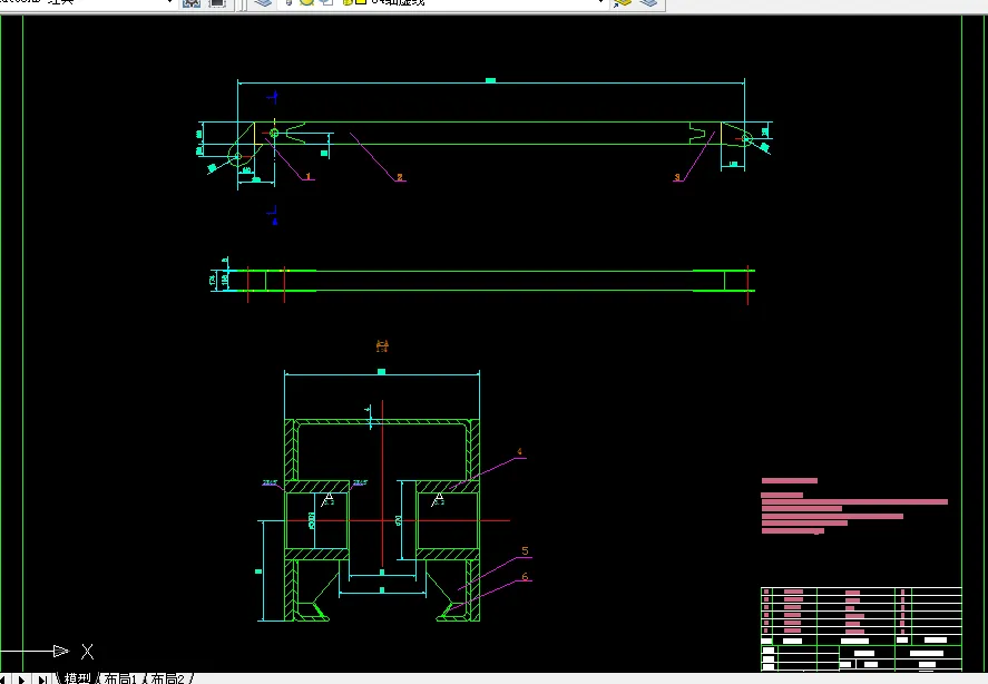
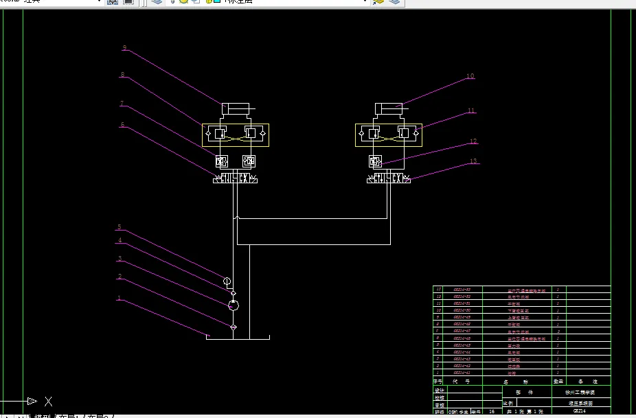
本文主要以“GKZ型高空作业车”上、下臂结构为研究对象,对上、下臂进行结构和该车上的液压系统进行设计。主要分两部分进行阐述,其一根据高空作业车的最大作业高度10米,在满足作业高度的前提下,进行高空作业臂的结构设计:首先根据使用要求选择作业臂材料的类型;其次根据最大作业高度确定上、下臂的长度;再经过受力分析利用强度来确定臂的截面尺寸及油缸的铰接位置;再进行强度、刚度、稳定性的校核,查看作业臂的尺寸是否符合要求。对施加均布载荷和约束,进行结构的强度和刚度分析,确定危险截面或危险点的应力分布及变形。最后画出作业臂总装图及上、下臂零件图。而液压控制部分主要是指控制上下臂变幅运动的液压缸。文中详细记录了高空作业机构上臂液压缸和下臂液压缸的设计过程。在确定液压系统元件参数的基础上,完成了液压传动系统的设计计算。
关键词 高空作业车;结构设计;液压传动系统设计;液压缸
目 录
1 绪论 1
1.1高空作业车的概况及其发展方向 1
1.2 高空作业车的组成 1
1.2.1 工作机构 2
1.2.2 金属结构 2
1.2.3 动力装置 2
1.2.4 控制系统 3
1.3 GKZ型高空作业车的概况 3
1.3.1整机结构简介 3
1.3.2高空作业臂 4
1.3.3 作业车作业状态主要技术参数 4
1.4 课题的提出 5
1.5 本课题所要研究的具体任务 5
1.6 本课题研究的意义 6
2 高空作业车的结构设计 7
2.1 材料的选择 7
2.2 计算上、下臂的长度 8
2.3 确定油缸铰点的位置 9
2.3.1 确定上臂油缸铰点的位置 9
2.4 上臂截面尺寸的确定 9
2.4.1 对上臂进行受力分析 9
2.4.2 计算上臂截面尺寸 10
2.4.3 对上臂进行强度校核 12
2.5 下臂截面尺寸的确定 15
2.5.1 对下臂进行受力分析 15
2.5.2计算下臂的截面尺寸 16
2.5.3对下臂进行正应力校核 17
2.6 连接处销轴尺寸的确定 20
3 液压系统设计 21
3.1 液压系统的构成 21
3.2液压系统设计概述 21
3.3 设计依据 21
3.4 主要机构简述 21
3.5 主要工作机构液压回路的设计 22
3.5.1 高空作业车变幅机构液压回路设计 22
4 高空作业部分液压系统的设计计算 24
4.1上臂油缸的设计 24
4.1.1 确定液压缸类型和安装方式 24
4.1.2 确定液压缸的主要性能参数和主要尺寸 24
4.2下臂油缸的设计计算 28
4.2.1 确定液压缸类型和安装方式 28
4.2.2确定液压缸的主要性能参数和主要尺寸 29
结论 33
致谢 34
参考文献 35
温馨提示:
1、题目前面的备注【字母数字编号】为本站整理分类的编号,与课题内容无关,请选题时忽视;
2、若题目上备注三维,则表示文件里包含三维源文件,由于三维组成零件数量较多,为保证预览截图的简洁性,本站将三维文件夹进行了打包。三维及CAD预览截图,均为本站电脑打开软件进行截图的,保证能够打开,下载原件超高清,下载后解压即可;
3、本站所有资源如无特殊说明,都需要本地电脑安装Office2007。图纸软件为AutoCAD,PROE,UG,SolidWorks,CATIA等;
4、本站所有图文资料仅供用户学习参考,不作为任何商用或其他用途;
5、本站不保证下载资源的准确性、安全性和完整性, 不包修改,不支持退换,同时也不承担用户因使用这些下载资源对自己和他人造成任何形式的伤害或损失;
6、 下载文件中如有侵权或不适当内容,请与我们联系,我们立即纠正。