

作品包括:
word说明书一份,共41页,约17000字
任务书一份
开题报告一份
外文翻译一份
CAD版本图纸,共12张
摘 要
随着科技步伐的加快,液压技术在各个领域中得到了广泛应用,液压系统已成为现代金属机械加工机床中最关键的部分之一。本文主要研究的是液压传动系统,液压传动系统的设计需要与主机的总体设计同时进行。设计时,必须从实际情况出发,有机地结合各种传动形式,充分发挥液压传动的优点,力求设计出结构简单、工作可靠、成本低、效率高、操作简单、维修方便的液压传动系统。
关键词:机械加工、液压传动、总体设计
目 录
摘 要 III
Abstract IV
1绪论 1
1.1本课题的研究内容和意义 1
1.2国内外的发展概况 1
1.3本课题应达到的要求 1
2 液压传动的基本概念和特点 2
2.1 液压传动的基本概念 2
2.2 液压传动的特点 2
2.4 液压系统的设计原则与策略 3
2.5 液压系统绿色设计原则 3
2.6 设计目的 3
2.6.1 设计内容及要求 4
2.7 设计中应注意的问题 5
3 液压系统的设计 6
3.1 液压系统的设计与计算 6
3.1.2 液压缸的负载计算[6] 9
3.1.3 确定系统的工作压力 9
3.2确定液压泵规格和电动机功率及型号 12
3.2.1 确定液压泵规格 12
3.3确定各类控制阀 14
3.4 确定油箱容积与结构 16
3.4.1油箱容积的确定 16
3.4.2油箱的结构设计 16
3.4.3油箱的防噪音问题 17
3.5 液压站结构设计 18
3.6 选择液压油 18
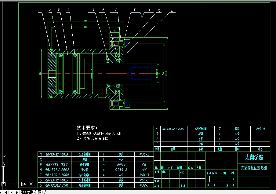
4 液压缸及液压装置的结构设计 19
4.1 确定液压缸的结构形式(类型、安装方法、密封形式、缓冲结构、排气等) 19
4.2 计算液压缸主要零件的强度和刚度 19
4.3 完成液压缸的结构设计和部分零件图 23
4.4 选择装配方案 25
4.5 绘制部件装配图 25
5 液压系统的验算 26
5.1 执行元件输出力或力矩及最低最高速度的校核 26
5.2 管路系统压力损失计算 26
5.3 压力阀调整压力的确定 27
5.4 系统热平衡计算与油箱容积的验算 27
6结论与展望 29
6.1结论 29
6.2不足之处与展望 29
致 谢 30
参考文献 31
温馨提示:
1、题目前面的备注【字母数字编号】为本站整理分类的编号,与课题内容无关,请选题时忽视;
2、若题目上备注三维,则表示文件里包含三维源文件,由于三维组成零件数量较多,为保证预览截图的简洁性,本站将三维文件夹进行了打包。三维及CAD预览截图,均为本站电脑打开软件进行截图的,保证能够打开,下载原件超高清,下载后解压即可;
3、本站所有资源如无特殊说明,都需要本地电脑安装Office2007。图纸软件为AutoCAD,PROE,UG,SolidWorks,CATIA等;
4、本站所有图文资料仅供用户学习参考,不作为任何商用或其他用途;
5、本站不保证下载资源的准确性、安全性和完整性, 不包修改,不支持退换,同时也不承担用户因使用这些下载资源对自己和他人造成任何形式的伤害或损失;
6、 下载文件中如有侵权或不适当内容,请与我们联系,我们立即纠正。