

作品包括:
word说明书一份,共43页,约20000字
任务书一份
开题报告一份
外文翻译一份
CAD版本图纸,共8张
摘 要
橡胶切割机是一种常用的机械装置,其主要功能是帮助广大用户快速完成切割橡胶,切割效率是人工的十倍以上。如此高效率的橡胶切割机就是为了橡胶生产企业专门制作的,橡胶切割机产生就节省了大量的人工费用,大大提高了切割效率。
本课题由实际生产应用中提出,并且能够达到实际要求。随着社会、经济的快速发展,橡胶制品的需求和应用越来越广泛。橡胶切割机的开发和改进渐渐被国家和许多企业提上日程。以前我国的橡胶切割机大多需要从国外进口,切割技术处于落后状态,但由于近几年来需求越来越大,考虑到经济及技术方面的情况,我们急需发展橡胶切割机的生产技术。实现在橡胶切割行业完全依靠自己的目标。因此在这个大的背景下提出了此课题,即根据已经有的资料,对现有的橡胶切割机提出改进的方法,并进行模拟验算,从而达到更加实用和有效的目的。
本文是针对国外现有的产品,对其进行改进。在此次设计中,在现有橡胶切割机材料为前提的条件下,对带轮、刀具、齿轮、轴等相关系统进行全面的设计,着重设计了带轮与减速器的配合使用,希望在实际生产中能有作用,让此产品更适合工厂和顾客的需求。
最后,希望此次设计的橡胶切割机能到达预期的设计要求,并能在实际的应用中取得良好的效果。
关键词:带轮;齿轮;刀具;轴;改进
目 录
摘 要 III
ABSTRACT IV
目 录 V
1 绪论 1
1.1 背景介绍 1
1.2 切割行业现状及发展前景 1
1.2.1 切割行业的现状 1
1.2.2 切割行业的发展趋势 3
1.2.3 切割机发展存在的问题 4
1.3 本课题的主要内容 5
2 传动方案的总体设计 6
2.1 总体方案的确定 6
2.2 电动机 6
2.2.1 电动机的选择 6
2.2.2 选择原动机时应考虑的因素 7
2.2.3 结论 7
2.3 减速器 7
2.3.1 减速器的选择 7
3 带传动的设计 9
3.1 带传动的类型 9
3.2 带的弹性滑动和打滑 9
3.3 V带轮的设计计算 9
3.3.1 确定计算功率 9
3.3.2 选择V带的带型 9
3.3.3 确定带轮的基准直径 并验算带速 9
3.3.4 确定V带的中心距 和基准长度 9
3.3.5 计算实际中心距 10
3.3.6 验算小带轮上的包角 10
3.3.7 计算带的根数 。 10
3.3.8 计算单根V带的初拉力最小值 10
3.3.9 计算压轴力 10
3.4 V带轮结构设计 11
3.5 V带传动的张紧、安装与防护 11
3.5.1 V带传动的张紧 11
3.5.2 V带传动的安装 12
3.5.3 V带传动的防护 12
4 主要零部件的设计 13
4.1刀具 13
4.1.1 外形设计 13
4.1.2 刀具材料 13
4.2 齿轮设计 13
4.2.1 整体方案 13
4.2.2 齿轮的材料,热处理及精度 14
4.2.3 初步设计齿轮传动的主要尺寸 14
4.2.4 齿轮的最终选择 16
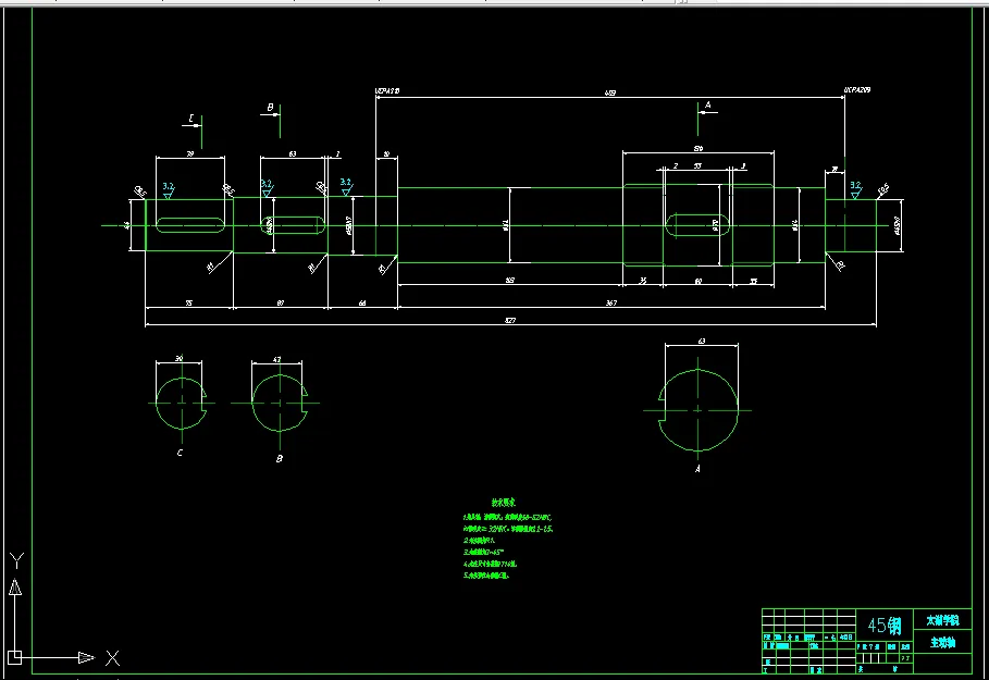
4.3 主动轴 18
4.3.1 拟定整体方案 18
4.3.2 材料、尺寸的选择设计 19
4.3.3 轴的受力分析与校核 20
4.4 从动轴 23
4.4.1 从动轴的结构 23
4.4.2材料、尺寸的选择设计 24
4.5 键 25
4.5.1 键的选择 25
4.5.2 键联接强度计算 25
4.6 联轴器 25
4.6.1 联轴器的选择 26
4.6.2 定联轴器的品种、形式、规格(型号) 26
4.6.3 联轴器的尺寸、安装与维护 26
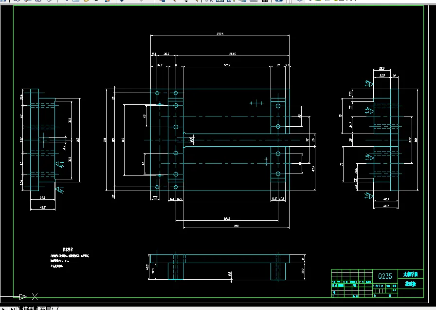
5 减速器箱体设计 28
5.1 箱体设计 28
5.2 减速器附件设计 29
6 结论与展望 31
致 谢 32
参考文献 33
温馨提示:
1、题目前面的备注【字母数字编号】为本站整理分类的编号,与课题内容无关,请选题时忽视;
2、若题目上备注三维,则表示文件里包含三维源文件,由于三维组成零件数量较多,为保证预览截图的简洁性,本站将三维文件夹进行了打包。三维及CAD预览截图,均为本站电脑打开软件进行截图的,保证能够打开,下载原件超高清,下载后解压即可;
3、本站所有资源如无特殊说明,都需要本地电脑安装Office2007。图纸软件为AutoCAD,PROE,UG,SolidWorks,CATIA等;
4、本站所有图文资料仅供用户学习参考,不作为任何商用或其他用途;
5、本站不保证下载资源的准确性、安全性和完整性, 不包修改,不支持退换,同时也不承担用户因使用这些下载资源对自己和他人造成任何形式的伤害或损失;
6、 下载文件中如有侵权或不适当内容,请与我们联系,我们立即纠正。