

作品包括:
Word版说明书1份,共46页,约7100字
S7-200 PLC程序一份
CAD版本图纸,共2张
IO分配

目 录
第一章 设计任务及认识 1
1.1 机械手臂搬运控制设计任务 1
1.2 机械手臂搬运控制设计的认识及现状 1
1.3 机械手臂搬运控制设计的主要内容阐述 3
第二章 机械手臂设计总体方案 4
2.1 机械手臂控制系统组成 4
2.2 机械手臂搬运控制设计流程 4
2.2.1 机械手臂搬运控制系统I/O分配 4
2.2.2 机械手臂搬运控制系统工装状态 5
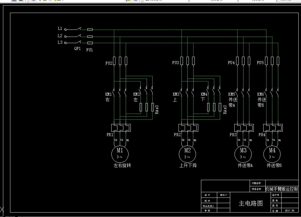
第三章 机械手臂搬运控制主电路图设计 6
第四章 机械手臂硬件及选型设计 7
4.1 机械手臂搬运控制系统系统硬件组成 7
4.2 PLC机型选择 7
4.3 PLC 容量选择 9
4.4 I/O 模块的选择 9
4.5 电源模块的选择 11
第五章 机械手臂搬运控制软件设计 13
5.1程序设计的一般方法 13
5.1.1 经验设计法 13
5.1.2 逻辑设计法 13
5.1.3 顺序设计法 13
5.2 PLC 控制的相关流程图 14
5.2.1 控制流程图 14
5.3 可编程控制器梯形图 15
5.3.1可编程控制器梯形图简介 15
5.3.2 相关程序段 15
结 论 20
参 考 文 献 21

有一个机械手臂装置对工作物进行加工,对象由输送带A送到加工位置,然后再由机械手臂将加工物送至工作台1的位置进行第一步骤加工。当第一步骤加工完成后,机械手臂将工作物夹起再送至工作台2进行第二步骤加工;当第二步骤加工完成后,机械手臂将工作物放到输送带B送走,完成这一部分的控制过程。
温馨提示:
1、题目前面的备注【字母数字编号】为本站整理分类的编号,与课题内容无关,请选题时忽视;
2、若题目上备注三维,则表示文件里包含三维源文件,由于三维组成零件数量较多,为保证预览截图的简洁性,本站将三维文件夹进行了打包。三维及CAD预览截图,均为本站电脑打开软件进行截图的,保证能够打开,下载原件超高清,下载后解压即可;
3、本站所有资源如无特殊说明,都需要本地电脑安装Office2007。图纸软件为AutoCAD,PROE,UG,SolidWorks,CATIA等;
4、本站所有图文资料仅供用户学习参考,不作为任何商用或其他用途;
5、本站不保证下载资源的准确性、安全性和完整性, 不包修改,不支持退换,同时也不承担用户因使用这些下载资源对自己和他人造成任何形式的伤害或损失;
6、 下载文件中如有侵权或不适当内容,请与我们联系,我们立即纠正。