

作品包括:
Word版说明书1份,共61页,约6700字
S7-200 PLC程序一份
组态王6.53组态画面一份
CAD版本图纸,共2张
IO分配
![1711280275692163.webp 4%JXZI6])MPQ7MS05I4S90L.webp](/static/upload/image/20240324/1711280275692163.webp)
摘要
本课题是基于PLC的自动喂料车控制系统的设计,采用西门子的小型可编程控制器S7-200,外加步进驱动器和步进电机,组态王为上位机,设计了一套基于PLC的自动喂料车控制系统。通过设定饮水时间和定时,喂料时间和速度等,通过控制步进驱动运行距离和速度调节喂料多少和次数。通过分析控制要求,进行了总体设计,进行了硬件设计,包括主电路,PLC输入和输出,进行了软件设计包括梯形图和语句表程序,进行了组态设计,设计了监控画面,进行参数设定,实时和历史曲线,实时和历史报警,实时和历史报表等。系统具有自动和手动模式,使用灵活,可以通过组态王进行各种参数设定,有多种保护措施,使用安全。
关键词:自动喂车;梯形图;可编程控制器
目 录
第1章 绪 论 3
1.1选题的背景、意义 3
1.2课题目的和主要内容 3
第2章 总体设计 4
第3章 硬件设计 6
3.1 PLC选择 6
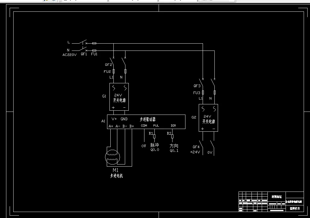
3.2 主电路和电源设计 6
3.3 输入和输出分配 7
3.4 输入和输出接线图 8
第4章 软件设计 9
4.1 PLC内部使用地址 9
4.2 梯形图程序 10
4.3 语句表程序 26
第5章 组态设计 37
5.1建立PLC通讯 37
5.2 建立数据词典 38
5.3 组态画面 40
5.4运行 44
总结 47
参考文献 48
致 谢 49
附录 50
附录1 梯形图程序汇总 50
温馨提示:
1、题目前面的备注【字母数字编号】为本站整理分类的编号,与课题内容无关,请选题时忽视;
2、若题目上备注三维,则表示文件里包含三维源文件,由于三维组成零件数量较多,为保证预览截图的简洁性,本站将三维文件夹进行了打包。三维及CAD预览截图,均为本站电脑打开软件进行截图的,保证能够打开,下载原件超高清,下载后解压即可;
3、本站所有资源如无特殊说明,都需要本地电脑安装Office2007。图纸软件为AutoCAD,PROE,UG,SolidWorks,CATIA等;
4、本站所有图文资料仅供用户学习参考,不作为任何商用或其他用途;
5、本站不保证下载资源的准确性、安全性和完整性, 不包修改,不支持退换,同时也不承担用户因使用这些下载资源对自己和他人造成任何形式的伤害或损失;
6、 下载文件中如有侵权或不适当内容,请与我们联系,我们立即纠正。