

作品包括:
Word版说明书1份,共33页,15000字
任务书一份
开题报告一份
CAD版本图纸,共10张

摘要
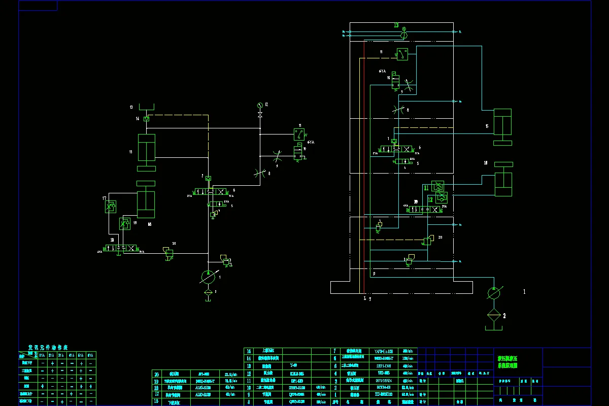
推钢机是轧钢车间上料区主要设备之一,其作用是将加热炉前辊道上的钢坯或炉前上料台架上的钢坯推入加热炉进行二次加热过程。根据连铸机推钢机的设计经验,介绍液压推钢机的主要参数、结构技术特点,指出设计中应注意的问题。
关键词:液压;推钢机;结构
目录
摘要I
Abstract II
第一章前言- 1 -
1.1推钢机的种类- 1 -
1.2推钢机的结构特点及工作原理- 2-
1.3液压传动的概述- 2-
第二章液压系统的方案的分析与拟定- 2 -
2.1液压系统的工况分析- 2 -
第三章液压系统原理图设计- 5 -
3.1自动补油的保压回路- 5 -
3.1.1常用电动机的种类- 6 -
3.1.2电动机选择时的注意事项- 6 -
3.2释压回路的设计- 6 -
3.2.1选择电动机的类型和机构型式- 6 -
3.2.2选择电动机的容量- 6 -
3.2.3确定电动机转速- 6 -
3.2.4选定电动机的型号和参数- 7 -
3.3液压机液压系统的原理图拟定- 7 -
3.31上液压缸的工作循环- 7 -
3.3.2下液压缸的工作循环- 7 -
第四章液压系统的选择和计算- 7 -
4.1确定液压缸主要参数- 7 -
4.2液压元件的选择- 9 -
4.2.1确定液压泵规格和驱动电机功率- 9 -
4.2.2阀类元件及辅助元件的设计- 10 -
4.2.3管道尺寸的规定- 12 -
4.2.4系统温升的计算- 13 -
第五章液压缸的结构设计- 13 -
5.1液压缸的主要尺寸确定- 14 -
5.1.1液压缸的壁厚和外径计算- 14 -
5.2液压缸的结构设计- 17 -
第六章.液压站的结构设计- 18 -
6.1液压站的结构形式- 18 -
6.2液压泵的安装方法- 19 -
6.3液压油箱的设计- 19 -
6.3.1液压油箱有效容积的确定- 20 -
6.3.2液压油箱外形尺寸设计- 21 -
6.4液压站的结构设计- 22 -
6.4.1电动机与液压泵的联接形式- 22 -
6.4.2液压泵结构的注意事项- 23 -
6.4.3电动机的选择- 23 -
结束语- 24 -
参考文献- 25 -
致谢- 26 -
温馨提示:
1、题目前面的备注【字母数字编号】为本站整理分类的编号,与课题内容无关,请选题时忽视;
2、若题目上备注三维,则表示文件里包含三维源文件,由于三维组成零件数量较多,为保证预览截图的简洁性,本站将三维文件夹进行了打包。三维及CAD预览截图,均为本站电脑打开软件进行截图的,保证能够打开,下载原件超高清,下载后解压即可;
3、本站所有资源如无特殊说明,都需要本地电脑安装Office2007。图纸软件为AutoCAD,PROE,UG,SolidWorks,CATIA等;
4、本站所有图文资料仅供用户学习参考,不作为任何商用或其他用途;
5、本站不保证下载资源的准确性、安全性和完整性, 不包修改,不支持退换,同时也不承担用户因使用这些下载资源对自己和他人造成任何形式的伤害或损失;
6、 下载文件中如有侵权或不适当内容,请与我们联系,我们立即纠正。