

作品包括:
Word版说明书1份,共33页,15000字
任务书一份
开题报告一份
CAD版本图纸,共9张


摘要
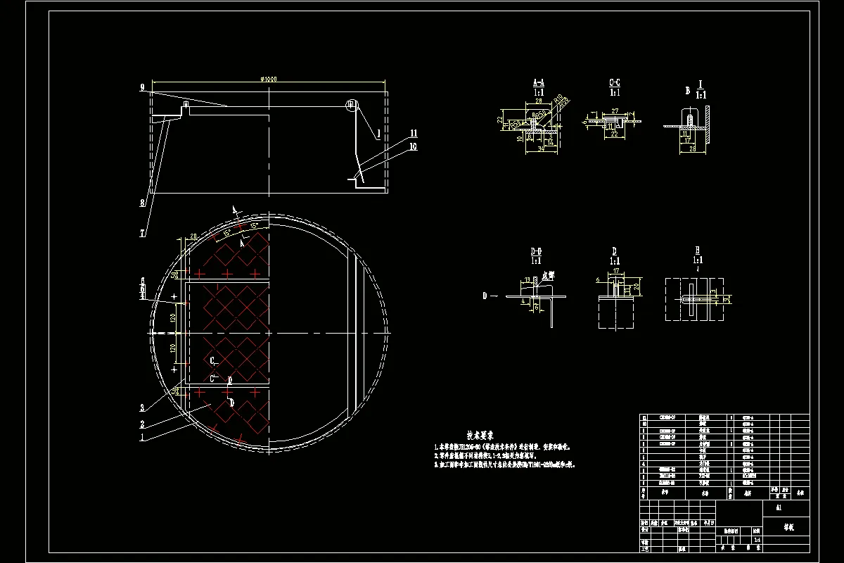
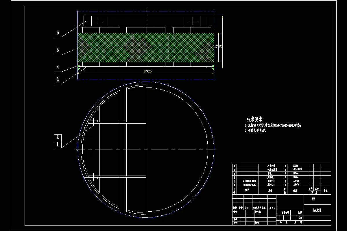
泡沫除尘器是通过气体与介质充分接触达到除尘目的,形成的泡沫能完全覆盖尘源,有很大的接触面积,随着气泡的不断的合并、破裂、再重新形成,提供了尘粒附着到液膜上的条件,从而阻止粉尘的扩散。本次设计的是板式塔中的筛板塔,因为它的效率和处理能力比较高。容器支座采用与筒体的内径和厚度相同的圆筒形裙座,它比圆锥形裙座制造更方便。根据塔内径的大小,选用单溢流分块式塔盘,方便工作人员进入塔内安装和检修。为了确保接口的密封性,采用法兰连接。在对泡沫除尘器的筒体、塔盘、容器支座及塔外部附件装置的材料选择和尺寸设计时,不仅要满足工艺设计,而且得考虑自然因素的影响,来进行塔体强度计算和截面压力的稳定校核。提出了对加工工艺的要求,装配过程的注意事项和安全防腐措施。利用绘图软件绘制出符合设计要求的泡沫除尘器图纸,并给出技术要求。在泡沫除尘器的结构设计过程中,必须以设计手册为标准进行设计,使设计符合相关标准,同时必须满足生产需求和安全生产的要求。
关键词:筛板塔;溢流堰;塔盘;法兰
目录
1绪论1
1.1引言1
1.2泡沫除尘器的介绍2
1.3泡沫除尘器的特点3
1.4设计方案3
2泡沫除尘器的主体结构设计4
2.1设计内容4
2.2板式塔4
2.3容器的选择与设计5
2.4塔高的计算6
2.5裙座的设计7
3板式塔零部件结构设计10
3.1塔盘型式及设计10
3.2筛孔塔盘13
3.3降液管13
3.4受液盘14
3.5溢流堰15
3.6除沫器15
4辅助装置及附件16
4.1工艺接管16
4.2人孔与手孔17
4.3法兰连接17
4.4吊柱18
4.5操作平台和梯子18
5设备的强度计算与校核19
5.1设计参数19
5.2设备质量载荷计算19
5.3风载荷与风弯矩计算20
5.4地震弯矩计算22
5.5各种载荷引起的轴向应力22
5.6塔体和裙座强度和稳定校核23
5.7塔体水压试验的应力校核24
6加工工艺和装配程序及安全防腐25
6.1加工工艺25
6.2装配程序25
6.3安全防腐26
参考文献27
致谢28
附录29
温馨提示:
1、题目前面的备注【字母数字编号】为本站整理分类的编号,与课题内容无关,请选题时忽视;
2、若题目上备注三维,则表示文件里包含三维源文件,由于三维组成零件数量较多,为保证预览截图的简洁性,本站将三维文件夹进行了打包。三维及CAD预览截图,均为本站电脑打开软件进行截图的,保证能够打开,下载原件超高清,下载后解压即可;
3、本站所有资源如无特殊说明,都需要本地电脑安装Office2007。图纸软件为AutoCAD,PROE,UG,SolidWorks,CATIA等;
4、本站所有图文资料仅供用户学习参考,不作为任何商用或其他用途;
5、本站不保证下载资源的准确性、安全性和完整性, 不包修改,不支持退换,同时也不承担用户因使用这些下载资源对自己和他人造成任何形式的伤害或损失;
6、 下载文件中如有侵权或不适当内容,请与我们联系,我们立即纠正。