

作品包括:
Word版说明书1份,共35页,16000字
CAD版本图纸,共10张

摘要
龙门式起重机是一种重要的物料搬运设备,广泛应用于厂矿、车站、港口、电站等生产领域中。随着经济的发展,它不仅在国民经济中占有重要的位置,而且在社会生产和生活领域的应用也不断扩大。国内各生产企业都在各自所属的领域内扩展产品种类及优化产品性能,采用一些先进的技术来开发自己的产品或通过引进国外先进技术来提高产品质量。
本文首先简要介绍了课题的研究背景和意义,以及龙门起重机的发展趋势与结构分类;然后列出了5t-4m龙门起重机设计的基本参数,完成5t-4m龙门起重机总体的设计;计算了该龙门起重机受到的静载荷、动载荷、风载荷、偏斜运行时的水平侧向力、碰撞力等等;计算了龙门起重机的轮压,校核了起重机的稳定性、正常工作状态和非正常工作状态的防风抗滑安全性。以及对龙门式起重机的金属结构设计和计算,对龙门式起重机的小车起升机构和行走机构进行了设计与计算,对龙门式起重机的大车行走机构进行了设计与计算。
关键词:起重机;结构设计;起升机构;行走机构。
目录
摘要1
ABSTRACT 2
第一章文献综述1
1.1起重机运输机械的概述1
1.2起重运输机械的发展趋势3
第二章龙门起重机结构分类和工作原理9
2.1龙门起重机的分类9
2.2龙门起重机的结构10
2.3龙门起重机的主要形式10
2.4龙门起重机的基本参数11
2.5龙门起重机的工作类型12
2.6龙门起重机的使用材料13
2.6.1使用材料的种类13
2.6.2使用材料的要求13
第3章龙门起重机总体设计14
3.1总体设计参数14
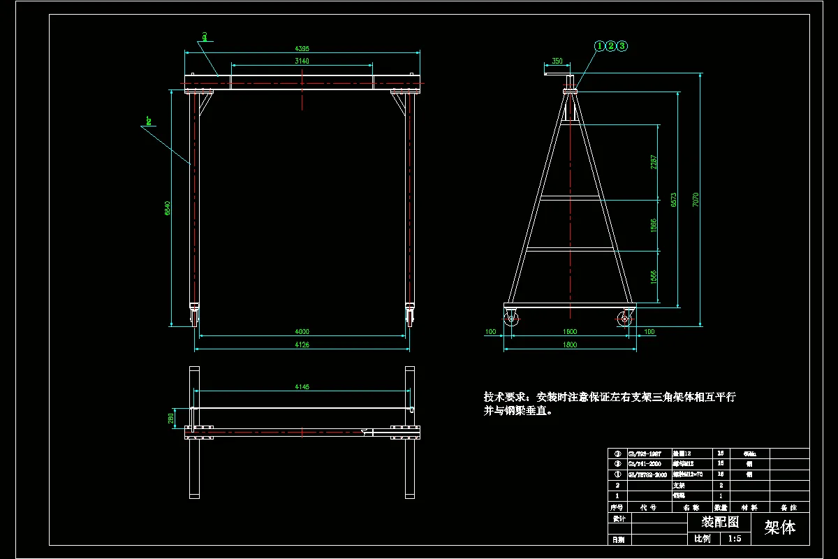
3.2金属结构设计计算14
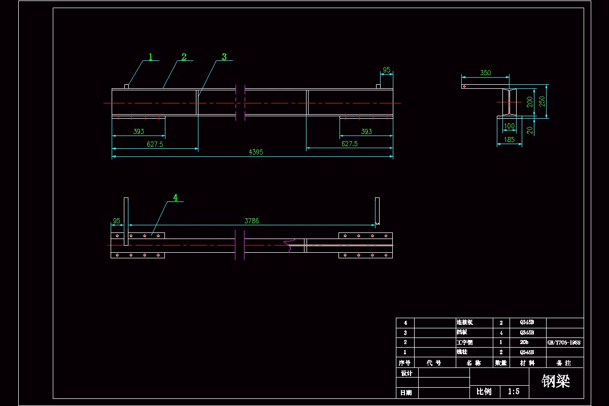
3.3主梁强度计算16
第四章电动葫芦的设计计算18
4.1电动葫芦起升机构的设计计算18
4.2电动葫芦运行机构设计计算24
4.2.1.电动小车运行静阻力计算24
4.2.2.电动机的初选预验算25
4.2.3传动比26
4.2.4制动器的选择与计算26
第五章起重机的稳定性28
参考文献30
后记31
温馨提示:
1、题目前面的备注【字母数字编号】为本站整理分类的编号,与课题内容无关,请选题时忽视;
2、若题目上备注三维,则表示文件里包含三维源文件,由于三维组成零件数量较多,为保证预览截图的简洁性,本站将三维文件夹进行了打包。三维及CAD预览截图,均为本站电脑打开软件进行截图的,保证能够打开,下载原件超高清,下载后解压即可;
3、本站所有资源如无特殊说明,都需要本地电脑安装Office2007。图纸软件为AutoCAD,PROE,UG,SolidWorks,CATIA等;
4、本站所有图文资料仅供用户学习参考,不作为任何商用或其他用途;
5、本站不保证下载资源的准确性、安全性和完整性, 不包修改,不支持退换,同时也不承担用户因使用这些下载资源对自己和他人造成任何形式的伤害或损失;
6、 下载文件中如有侵权或不适当内容,请与我们联系,我们立即纠正。