

作品包括:
Word版说明书1份,共37页,约12000字
任务书一份
CAD版本图纸,共8张
Proe三维图一套
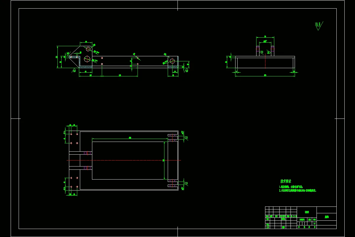
100KG手动液压升降平台的设计含proe三维及8张CAD图带设计计算说明。设计的液压升降平台是手动的,最开始将它的结构设计出来;之后对货品的具体大小进行调查,将货物的模型建立起来,这样升降平台的整体结构大小就都确定了;之后,将升降平台的力学模型建立起来,升降平台机构所处地点不一样,那么还要分析他们的受力,对杆件,销轴,螺栓的强度进行校核;之后设计升降平台液压系统,最后一步用CAD软件将升降平台的装配图,零件图都画出来,用Pro/e将三维模型建立起来。
温馨提示:
1、题目前面的备注【字母数字编号】为本站整理分类的编号,与课题内容无关,请选题时忽视;
2、若题目上备注三维,则表示文件里包含三维源文件,由于三维组成零件数量较多,为保证预览截图的简洁性,本站将三维文件夹进行了打包。三维及CAD预览截图,均为本站电脑打开软件进行截图的,保证能够打开,下载原件超高清,下载后解压即可;
3、本站所有资源如无特殊说明,都需要本地电脑安装Office2007。图纸软件为AutoCAD,PROE,UG,SolidWorks,CATIA等;
4、本站所有图文资料仅供用户学习参考,不作为任何商用或其他用途;
5、本站不保证下载资源的准确性、安全性和完整性, 不包修改,不支持退换,同时也不承担用户因使用这些下载资源对自己和他人造成任何形式的伤害或损失;
6、 下载文件中如有侵权或不适当内容,请与我们联系,我们立即纠正。