

作品包括:
Word版说明书1份,共28页,约12000字
任务书一份
开题报告一份
CAD版本图纸,共6张

[摘要]在现今制造行业大规模化的现象中,企业为提高生产效率,保障产品质量,普遍重视生产过程的自动化程度,工业机器人作为自动化生产线上的重要成员,逐渐被企业所认同并采用。一个国家工业自动化的水平如何在一定程度上体现在工业机器人的技术水平和应用程度上,目前,工业机器人主要承担着焊接、喷涂、搬运以及堆垛等具有极大劳动强度的、重复性的工作。
本次设计介绍机械手定义、分类及组成,对弧焊机械手的结构进行了设计,确定了底座、臂、手腕采用方案,并对其进行就简要的计算,对末端执行器做出了选择,最后画出了机械手的装配图。
[关键词]弧焊;结构设计;机械手;
目录
前言1
1绪论2
1.1题目来源2
1.2机械手的定义与分类2
1.3机械手的发展趋势3
1.4机械手的组成3
2弧焊机械手的总体设计5
2.1机械手总体结构的类型5
2.2设计参数的确定6
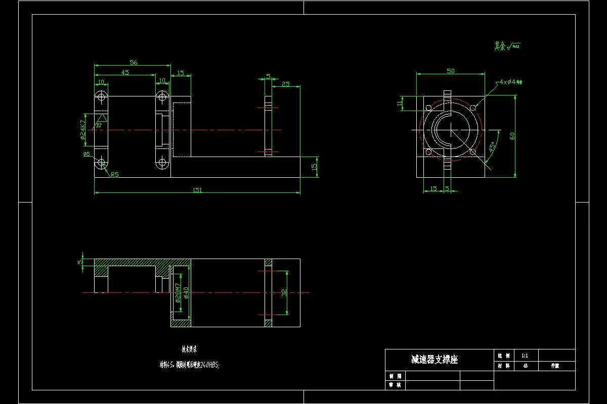
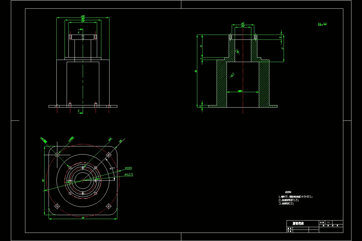
3弧焊机械手底座的设计6
3.1机械手底座结构的设计7
3.2机械手底座的具体采用方案7
3.3底座的电动机选择8
3.4底座减速器的选择9
3.5键的选择10
4弧焊机械手大、小臂的设计11
4.1设计具体采用方案12
4.2大臂的电动机选择12
4.3大臂减速器的相关计算13
4.4小臂电动机的选择14
4.5小臂减速器的相关计算15
5弧焊机械手手腕的设计17
5.1腕部电动机的选择17
5.2腕部减速器的相关计算18
6弧焊机械手末端执行器的设计18
6.1机械手末端执行器的设计要求18
结论22
参考文献23
致谢24
温馨提示:
1、题目前面的备注【字母数字编号】为本站整理分类的编号,与课题内容无关,请选题时忽视;
2、若题目上备注三维,则表示文件里包含三维源文件,由于三维组成零件数量较多,为保证预览截图的简洁性,本站将三维文件夹进行了打包。三维及CAD预览截图,均为本站电脑打开软件进行截图的,保证能够打开,下载原件超高清,下载后解压即可;
3、本站所有资源如无特殊说明,都需要本地电脑安装Office2007。图纸软件为AutoCAD,PROE,UG,SolidWorks,CATIA等;
4、本站所有图文资料仅供用户学习参考,不作为任何商用或其他用途;
5、本站不保证下载资源的准确性、安全性和完整性, 不包修改,不支持退换,同时也不承担用户因使用这些下载资源对自己和他人造成任何形式的伤害或损失;
6、 下载文件中如有侵权或不适当内容,请与我们联系,我们立即纠正。