

作品包括:
Word版说明书1份,共37页,约13000字
任务书一份
开题报告一份
CAD版本图纸,共10张


摘要
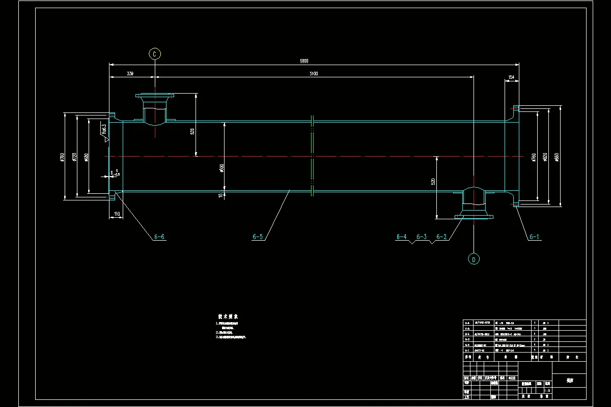
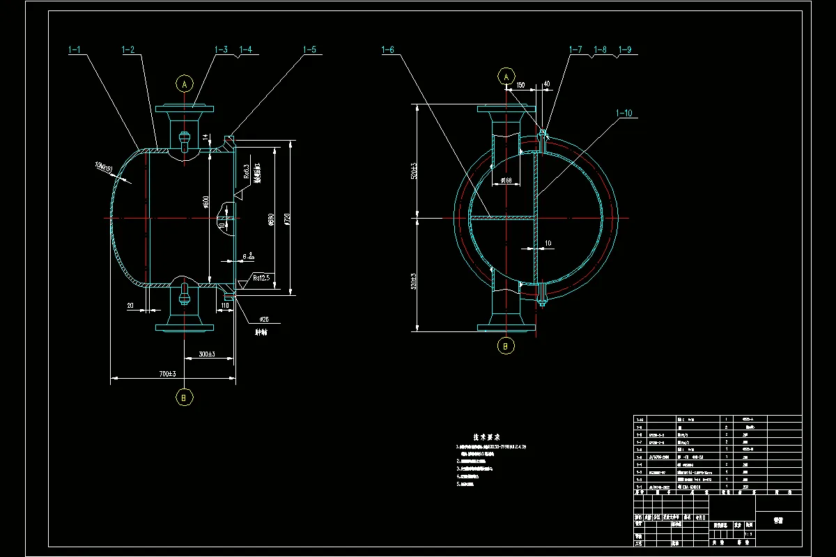
本次设计的课题为F320浮头式换热器,组成部分为:浮头、管体、壳体、管束等。此次设计的换热器设计为双壳程双管程浮头式换热器。其中,管程的介质为烟道气,设计压力为1.35MPa,设计温度为480℃。壳程的介质为水,设计压力为1.25MPa,设计温度为95℃。腐蚀余量定义为1.00mm。换热面积为320m2 。通过以上参数可制定此次设计的具体步骤及内容。
浮头式换热器是管壳式换热器系列中的一种,它的特点是两端管板只有一端与外壳固定死,另一端可相对壳体滑移,称为浮头。浮头式换热器由于管束的膨胀不受壳体的约束,因此不会因管束之间的差胀而产生温差热应力,另外浮头式换热器的优点还在于拆卸方便,易清洗。在化工工业中应用非常广泛。此次设计的主要内容如下所述。首先,进行材料的选择以及各个结构的设计。然后对有些部件结构通过计算进行强度校核,之后进行加工工艺的设计。再之后对换热器的防腐方面做出研究,最后把所有的图纸由AutoCAD绘出。
关键词:浮头式换热器;壳体;管程;浮头;管束
目录
1绪论1
1.1浮头式换热器介绍1
1.2浮头式换热器原理1
1.3浮头式换热器优缺点1
1.4换热器的应用1
2结构设计3
2.1材料选择3
2.2主体结构设计3
2.3零部件结构设计6
3强度计算与校核12
3.1管箱筒体计算12
3.2管箱封头计算13
3.3壳程圆筒计算14
3.4管箱法兰计算15
3.5管箱螺栓间距校核16
3.6筒体法兰计算17
3.7筒体螺栓间距校核18
3.8总体强度校核方法19
4加工工艺20
4.1总体制造工艺20
4.2封头的成型20
4.3筒节的弯卷成型20
4.4固定管板制造21
4.5浮动管板制造21
4.6法兰制造21
4.7钩圈制造22
4.8管箱制造23
4.9筒体制造24
4.10补强圈制造25
4.11壳体制造26
4.12安装与拆卸27
5换热器的安全防腐29
5.1换热器的腐蚀29
5.2换热管腐蚀29
5.3管子与管板、折流板连接处的腐蚀29
5.4壳体腐蚀29
5.5换热器的防腐29
总结31
参考文献32
致谢33
温馨提示:
1、题目前面的备注【字母数字编号】为本站整理分类的编号,与课题内容无关,请选题时忽视;
2、若题目上备注三维,则表示文件里包含三维源文件,由于三维组成零件数量较多,为保证预览截图的简洁性,本站将三维文件夹进行了打包。三维及CAD预览截图,均为本站电脑打开软件进行截图的,保证能够打开,下载原件超高清,下载后解压即可;
3、本站所有资源如无特殊说明,都需要本地电脑安装Office2007。图纸软件为AutoCAD,PROE,UG,SolidWorks,CATIA等;
4、本站所有图文资料仅供用户学习参考,不作为任何商用或其他用途;
5、本站不保证下载资源的准确性、安全性和完整性, 不包修改,不支持退换,同时也不承担用户因使用这些下载资源对自己和他人造成任何形式的伤害或损失;
6、 下载文件中如有侵权或不适当内容,请与我们联系,我们立即纠正。