

作品包括:
Word版说明书1份,共37页,约15000字
任务书一份
CAD版本图纸,共9张

摘要
窄V带属新型的传动带,它具有结构简单,传动平稳,价格低廉,不需润滑及可以缓冲吸振等特点,现已得到了越来越广泛的应用,尤其是近年来随着我国人民生活水平日益提高,汽车窄V带等产品的需求大幅度增加,带动我国橡胶行业中窄V带生产规模迅速扩大。窄V带已广泛应用于汽车、机械、纺织、家电、轻工、农机等各个领域,在国民经济和人民日常生活中发挥着愈来愈重要的作用。随着传动带品种多样性、使用性能标准的不断提高,在传动带生产中不断采用了新材料、新技术和新工艺,使用越来越先进的生产装备和检测手段。窄V带尺寸的精确十分重要,一是因为对传动性能有很大的影响,除要求窄V带的截面尺寸必须具有一定的准确性外,窄V带的长度也必须满足一定的要求。二是因为要符合国际标准和欧美标准。为使同时使用的一组窄V带长度一致,每条窄V带的长度必须控制在一个比较小的误差范围内,常需要专用的测长机测量后进行配组。
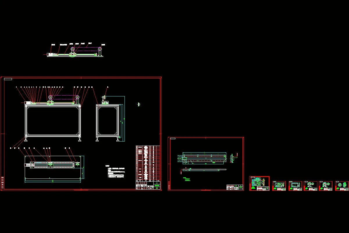
本次设计了以滚珠丝杠为核心元件的传动橡胶V带测长机构。传动橡胶V带测长机构传动系统主要由电动机、滚珠丝杠、工作台、联轴器、导轨、带轮和带轮支架组成。通过对传动橡胶V带测长机构的设计理论,首先进行了伺服进给传动系统的总体方案设计以及机器精度的选择;其次是传动橡胶V带测长测量机构设计的滚珠丝杠的计算与选择、滚珠丝杠支承轴承的选择、通过计算选择进给传动系统的其他相关元器件、对传动系统的刚度、惯量匹配等进行了校核验算;再次通过计算来选择进给传动系统的伺服电动机以及联轴器,最后进行导轨的选择。证明计算得出的结果较好得满足了提出的设计要求,利用AutoCAD软件绘制了相关的装配图。
关键词:传动橡胶V带测长机构,伺服系统,滚珠丝杠
目录
摘要1
Abstract 2
1绪论6
1.1课题的意义6
1.2传动V带概述7
1.3国内外测试机发展及其趋势8
1.3设计的内容和目的9
2传动橡胶V带测长结构的总体设计10
2.1测量原理和主要性能参数10
2.2进给传动系统的精度要求11
2.3进给传动伺服系统的选择11
2.4进给传动系统的要求及传动类型的选择12
2.4.1进给传动系统的要求12
2.4.2进给传动系统类型的选择12
2.5电机与丝杠联接方式的选择13
2.6支撑形式方案的选择13
2.7测量原理15
3移动进给系统系统设计16
3.1已知技术参数16
3.2滚珠丝杠的计算及选择16
3.3滚珠丝杠支承轴承的选择19
3.4滚珠丝杠的校核20
3.4.1临界压缩负荷20
3.4.2临界转速21
3.4.3滚珠丝杠拉压振动与扭转振动的固有频率21
3.4.4滚珠丝杠扭转刚度23
3.4.5滚珠丝杠传动精度计算24
3.5滚珠丝杠进给传动系统变形计算25
3.5.1滚珠丝杠精度计算25
3.6伺服电机的选择与计算27
3.6.1进给伺服电机的校核29
3.7联轴器的选择30
4传动橡胶V带测长机构机架的设计32
4.1机架结构类型32
4.1.1按机架外形分类32
4.1.2按机架的制造方法和材料分类32
4.2机架结构的选择32
4.3机架设计计算的准则和要求33
4.3.1机架设计的准则33
4.3.2机架设计的一般要求33
4.4传动橡胶V带测长机构机架的确认34
结论35
参考文献36
致谢37
温馨提示:
1、题目前面的备注【字母数字编号】为本站整理分类的编号,与课题内容无关,请选题时忽视;
2、若题目上备注三维,则表示文件里包含三维源文件,由于三维组成零件数量较多,为保证预览截图的简洁性,本站将三维文件夹进行了打包。三维及CAD预览截图,均为本站电脑打开软件进行截图的,保证能够打开,下载原件超高清,下载后解压即可;
3、本站所有资源如无特殊说明,都需要本地电脑安装Office2007。图纸软件为AutoCAD,PROE,UG,SolidWorks,CATIA等;
4、本站所有图文资料仅供用户学习参考,不作为任何商用或其他用途;
5、本站不保证下载资源的准确性、安全性和完整性, 不包修改,不支持退换,同时也不承担用户因使用这些下载资源对自己和他人造成任何形式的伤害或损失;
6、 下载文件中如有侵权或不适当内容,请与我们联系,我们立即纠正。