

作品包括:
Word版说明书1份,共41页,约18000字
开题报告一份
PPT答辩一份
CAD版本图纸,共6张

摘要
目前本国建筑机械的主要类型是小型履带式挖掘机,在现如今的建筑当中大多数都有使用。通过查阅相关资料以及文献可以得知现如今的挖掘机的工作核心部位是液压系统,那么液压系统在使用过程当中有非常重要的作用也是对其研究过程当中的重中之重。在实际的使用工作当中挖掘机的使用环境比较差,要做的工作相当复杂。这就导致了液压系统的高要求设计。最重要的是液压系统是整个工程系统中最复杂、最精密的部分,是一个十分复杂的项目。所以,对挖掘机的系统进行更深一步的研究和设计,这将对国的挖掘机行业产生巨大的影响。
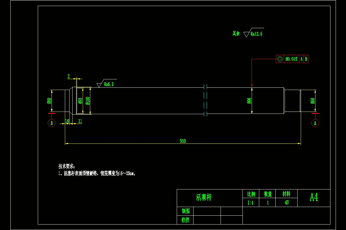
这次设计,将小型履带式挖掘机作为的研究对象。这个过程当中查阅了大量的文献以及资料对于挖掘机的液压系统和传动的系统以及控制系统等挖掘机所需要用到的各个零部件都进行了分析和了解。在的设计当中以小型履带式挖掘机的液压传动系统进行了着重的分析,了解其工作的性能以及实际的工作原理,这都是本次设计的重点内容。本文介绍了小型履带式挖掘机液压控制系统的总体规划、装配方法和描述及设计。所有这些都在CAD图纸中有所描述。
关键词挖掘机;液压控制系统;设计
目录
摘要I
Abstract II
第1章绪论1
1.1课题的研究背景1
1.2国内外研究现状2
1.2.1国内研究现状2
1.2.2国外研究现状3
1.3研究目的及意义5
1.4本设计的研究思路及方法5
第2章工作装置的总体方案6
2.1挖掘机使用过程当中对于液压系统的要求6
2.2设计指标6
2.3小型履带式挖掘机液压系统基本动作分析8
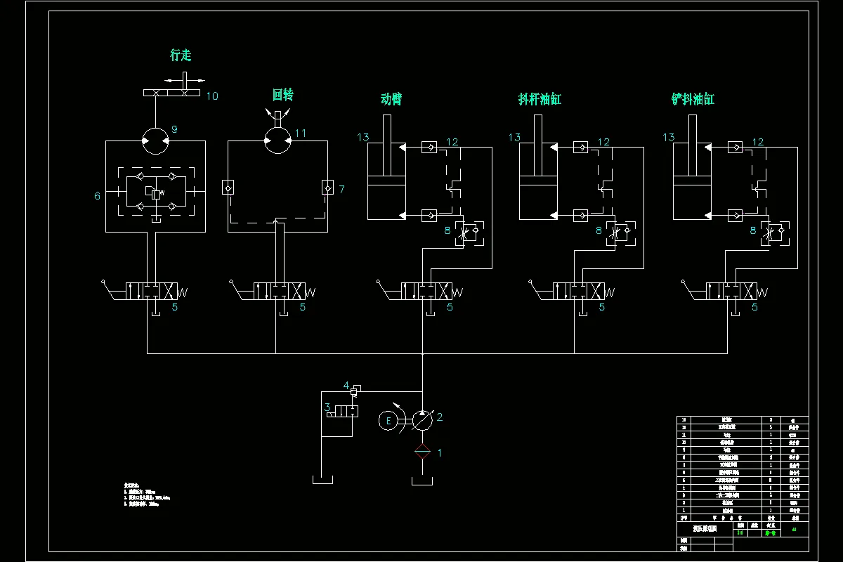
第3章挖掘机液压系统的改进9
3.1液压系统在挖掘机当中的作用9
3.2液压系统的结构11
5.液压油:在实际的使用过程当中主要是起到输送状态的介质。 12
3.3液压系统回路具体解析12
3.3.1限压回路13
3.3.2卸荷回路14
3.3.3缓冲回路15
3.3.4节流调速回路16
3.3.5节流限速回路17
3.3.6行走限速回路17
3.4本章小结18
第4章小型挖掘机液压控制系统设计19
4.1液压系统设计步骤19
4.2设计要求20
4.3压力控制20
4.4液压系统的工作原理20
4.5液压系统特殊部件作用21
4.6液压元件的选用22
4.6.1液压阀的选用22
4.6.2辅助元件的选用22
4.7本章小结23
第5章各个参数校验24
5.1计算所需要的泵的流量24
5.2液压泵的工作压力25
5.3发动机的选型25
5.4回转台启动力矩和制动力矩25
5.5油箱实际容积的校验28
5.6油箱制作的注意事项29
5.7油管尺寸大小校验29
5.8液压油的选取30
第6章液压系统性能校验32
6.1系统压力损失32
6.2系统的效率计算33
6.3液压冲击大小的校验33
6.4热平衡验算34
第7章总结36
参考文献37
展望38
致谢39
温馨提示:
1、题目前面的备注【字母数字编号】为本站整理分类的编号,与课题内容无关,请选题时忽视;
2、若题目上备注三维,则表示文件里包含三维源文件,由于三维组成零件数量较多,为保证预览截图的简洁性,本站将三维文件夹进行了打包。三维及CAD预览截图,均为本站电脑打开软件进行截图的,保证能够打开,下载原件超高清,下载后解压即可;
3、本站所有资源如无特殊说明,都需要本地电脑安装Office2007。图纸软件为AutoCAD,PROE,UG,SolidWorks,CATIA等;
4、本站所有图文资料仅供用户学习参考,不作为任何商用或其他用途;
5、本站不保证下载资源的准确性、安全性和完整性, 不包修改,不支持退换,同时也不承担用户因使用这些下载资源对自己和他人造成任何形式的伤害或损失;
6、 下载文件中如有侵权或不适当内容,请与我们联系,我们立即纠正。