

作品包括:
Word版说明书1份,共44页,约13000字
开题报告一份
CAD版本图纸,共10张
SW三维图一套

摘 要
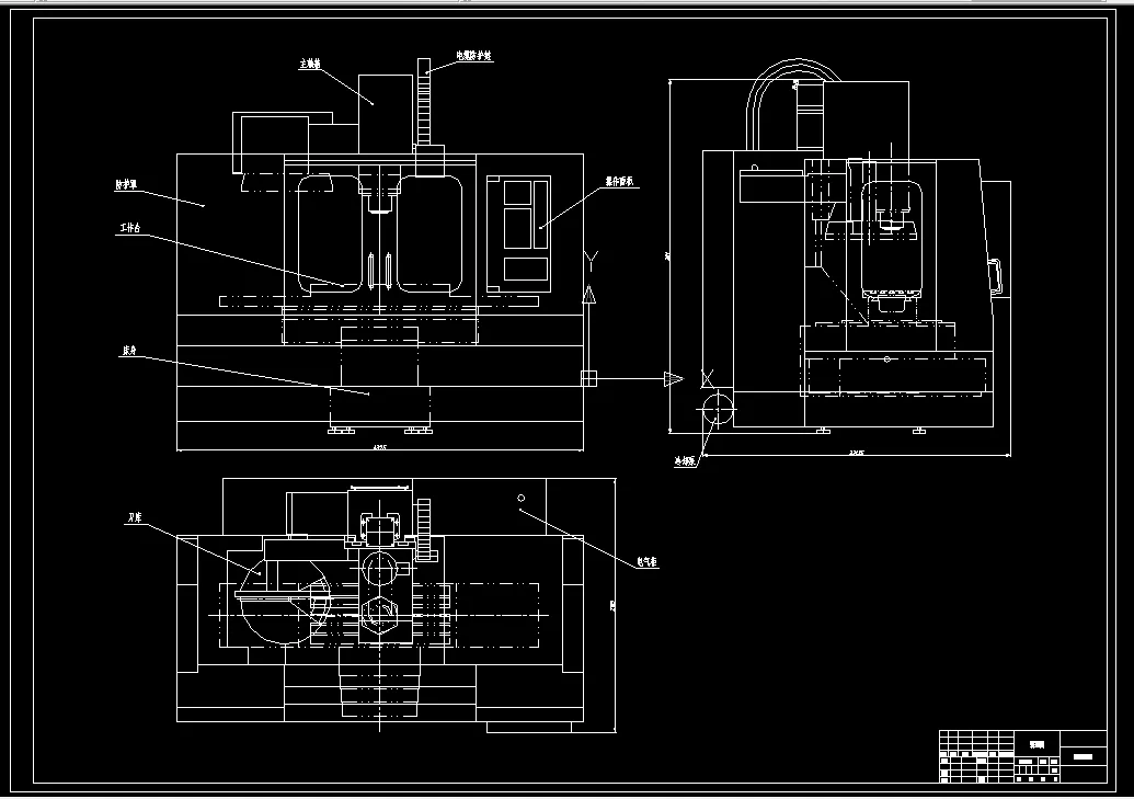
加工中心中将刀库放置在主轴四周的方式使得刀库本身就像自动换刀的机械手,在换刀的时候是通过将刀库中的刀具进行插拔的方式进行更换。这种将刀库放置在主轴周围的方式,其换刀的时间长短取决于刀具在刀库中的位置,更换刀具的时候离得近的刀具更换的时间就会短,离的远的刀具更换的时候花费的时间相对就要长一些。本次设计采用双臂回转式机械手,这种机械手的两臂各有一个卡爪,可同时抓取刀库及主轴上的刀具,在回转180°之后有同时将刀具归回刀库及装入主轴,是目前加工中心机床上最为常用的一种形式,换刀时间非常短。主要技术参数:刀柄型号为标准刀柄;刀具最大直径120㎜;刀具最大重量1.5kg ;换刀时间3.5s;选刀方式为任选。
该设备的动作顺序为:气缸收回带动整个机械手向左移动;伺服电机驱动齿轮B转动,齿轮B与齿轮A啮合,带动机械手整体顺时针旋转到90°停止;气缸伸出同时机械手上的卡爪A卡住加工中心主轴上的刀具,卡住B卡住刀具库下一工序准备要使用的刀具;气缸收回;伺服电机驱动齿轮使机械手整体逆时针转动180°;气缸伸出,卡爪A中的刀具送回刀库中,卡爪B中的刀具安装到主轴上;气缸收回;机构顺时针旋转90度;气缸伸出停止等待下一次运行。
加工中心是一种集成化的加工方式,可以对工件进行不同形式的加工,使得工件可以不用被转移或者搬运就可以达到需要的加工效果。加工中心是数控和机械加工的一个整合,是机械工业发展的一个成果。
关键词:加工中心;刀库;机械手;换刀
目 录
摘 要 I
Abstract II
1. 绪论 1
1.1 研究背景和意义 1
1.2 国内外研究现状 1
1.3 机床自动化的发展趋势 4
2.加工中心自动换刀机械手的总体设计 6
3.升降机构的设计 10
3.1升降花键机构的选择 10
3.2升降花键的校核 12
3.3电机的选择 15
3.4 气动升降气缸的设计 18
4旋转机构的设计 21
4.1结合实际进行强度计算 21
4.2关于齿面强度的详细计算校核 23
4.3校核齿根的强度 25
5.基于solidworks的三维建模 27
6.控制原理阐述 32
总结 36
参考文献 37
致谢 40
温馨提示:
1、题目前面的备注【字母数字编号】为本站整理分类的编号,与课题内容无关,请选题时忽视;
2、若题目上备注三维,则表示文件里包含三维源文件,由于三维组成零件数量较多,为保证预览截图的简洁性,本站将三维文件夹进行了打包。三维及CAD预览截图,均为本站电脑打开软件进行截图的,保证能够打开,下载原件超高清,下载后解压即可;
3、本站所有资源如无特殊说明,都需要本地电脑安装Office2007。图纸软件为AutoCAD,PROE,UG,SolidWorks,CATIA等;
4、本站所有图文资料仅供用户学习参考,不作为任何商用或其他用途;
5、本站不保证下载资源的准确性、安全性和完整性, 不包修改,不支持退换,同时也不承担用户因使用这些下载资源对自己和他人造成任何形式的伤害或损失;
6、 下载文件中如有侵权或不适当内容,请与我们联系,我们立即纠正。