

作品包括:
Word版说明书1份,共46页,约18000字
任务书一份
PPT答辩一份
CAD版本图纸,共8张

摘要
本次毕业设计是关于多功能带式输送机的设计,设计要求输送机可移动,可伸缩,输送倾角可调。对于可移动功能本设计采用在输送机添加四个滚动轮的方法;可伸缩功能是通过设计伸缩链轮实现的,然后利用液压臂来实现伸长和缩短和输送角度的变换。
大概的设计流程为:首先对带式输送机作了简单的概述;接着分析了带式输送机的选型原则及计算方法;然后根据这些设计准则与计算选型方法按照给定参数要求进行选型设计;接着对所选择的输送机各主要零部件进行了校核。
普通型带式输送机由六个主要部件组成:传动装置,机尾和导回装置,中部机架,拉紧装置以及胶带。最后简单的说明了输送机的安装与维护。目前,胶带输送机正朝着长距离,高速度,低摩擦的方向发展,近年来出现的气垫式胶带输送机就是其中的一个。在胶带输送机的设计、制造以及应用方面,目前我国与国外先进水平相比仍有较大差距,国内在设计制造带式输送机过程中存在着很多不足。
本次带式输送机设计代表了设计的一般过程, 对今后的选型设计工作有一定的参考价值。
关键词:多功能带式输送机;输送带;传动滚筒;伸缩机构;其他部件
目录
1绪论 1
2带式输送机概述 1
2.1 带式输送机的应用 1
2.2 带式输送机的分类 2
2.3 带式输送机的发展状况 2
2.4 带式输送机的工作原理 2
2.5 带式输送机的结构和布置形式 2
2.5.1 带式输送机的结构 2
3 带式输送机的设计计算 2
3.1 已知原始数据及工作条件 2
3.2 计算步骤 9
3.2.1 带宽的确定: 9
3.3 圆周驱动力 8
3.3.1 计算公式 8
3.3.2 主要阻力计算 9
3.3.3 主要特种阻力计算 11
3.3.4 附加特种阻力计算 11
3.3.5 倾斜阻力计算 13
3.4传动功率计算 13
3.4.1 传动轴功率( )计算 13
3.4.2 电动机功率计算 13
3.5 输送带张力计算 14
3.5.1 输送带不打滑条件校核 14
3.5.2 输送带下垂度校核 15
3.5.3 各特性点张力计算 16
3.6 传动滚筒、改向滚筒合张力计算 18
3.6.1 改向滚筒合张力计算 18
3.6.2 传动滚筒合张力计算 18
3.7 传动滚筒最大扭矩计算 19
3.8 拉紧力计算 19
3.9绳芯输送带强度校核计算 19
4 驱动装置的选用与设计 20
4.1 电机的选用 20
4.2.1 传动装置的总传动比 21
4.2.2 液力偶合器 22
4.2.3 联轴器 23
5 带式输送机部件的选用 25
5.1 输送带 25
5.1.1 输送带的分类: 25
5.1.2 输送带的连接 25
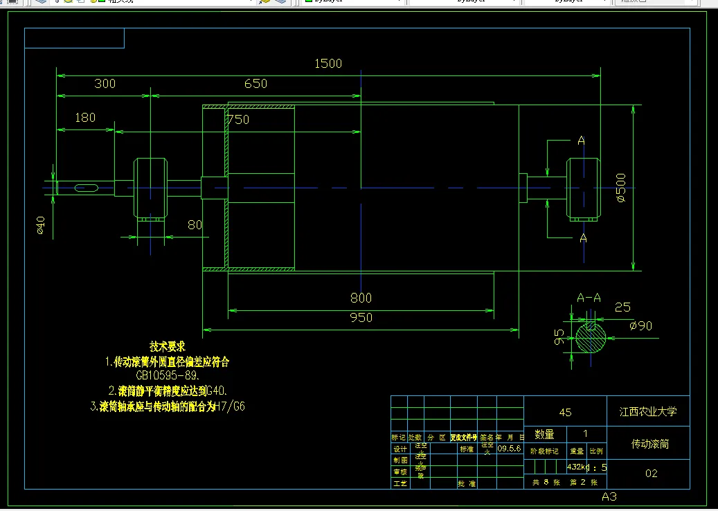
5.2 传动滚筒 26
5.2.1 传动滚筒的作用及类型 26
5.2.2 传动滚筒的选型及设计 26
5.2.3 传动滚筒结构 27
5.2.4 传动滚筒的直径验算 28
5.3 托辊 28
5.3.1 托辊的作用与类型 28
5.3.2 托辊的选型 30
5.3.3 托辊的校核 32
5.4 制动装置 33
5.4.1 制动装置的作用 33
5.4.2 制动装置的种类 33
5.4.3 制动装置的选型 34
5.5 改向装置 34
5.6拉紧装置 35
5.6.1 拉紧装置的作用 35
5.6.2 拉紧装置的选用 35
5.7 伸缩机构 36
5.7.1 伸缩机构的作用 36
5.7.2 伸缩机构的选型 36
5.8 升降装置 36
6其他部件的选用 38
6.1清扫装置 38
6.2电气及安全保护装置 38
结论 39
致 谢 40
参考文献 41
温馨提示:
1、题目前面的备注【字母数字编号】为本站整理分类的编号,与课题内容无关,请选题时忽视;
2、若题目上备注三维,则表示文件里包含三维源文件,由于三维组成零件数量较多,为保证预览截图的简洁性,本站将三维文件夹进行了打包。三维及CAD预览截图,均为本站电脑打开软件进行截图的,保证能够打开,下载原件超高清,下载后解压即可;
3、本站所有资源如无特殊说明,都需要本地电脑安装Office2007。图纸软件为AutoCAD,PROE,UG,SolidWorks,CATIA等;
4、本站所有图文资料仅供用户学习参考,不作为任何商用或其他用途;
5、本站不保证下载资源的准确性、安全性和完整性, 不包修改,不支持退换,同时也不承担用户因使用这些下载资源对自己和他人造成任何形式的伤害或损失;
6、 下载文件中如有侵权或不适当内容,请与我们联系,我们立即纠正。