

作品包括:
Word版说明书1份,共56页,约9700字
开题报告一份
PPT答辩一份
CAD版本图纸,共10张

设计总说明
本论文主要说明加工曲轴中心孔专用机床设计的基本过程和要求。主要设计了以下内容:
(1) 夹具体的设计;
(2) 多轴箱的设计;
(3) 整体机床的设计。
当然,在设计过程中,有大量的计算,主要包括以下几点:
(1) 切削用量;
(2) 机床生产率计算;
(3) 多轴箱的设计和计算
(4) 齿轮的强度校核;
(5) 主轴的强度校核;
(6) 轴承的强度校核。
最后根据设计要求,画出各装配图,零件图和三维图。
关键词:专用机床;夹具;曲轴;多轴箱
目 录
设计总说明 3
INTRODUCTION 4
1绪论 5
2设计任务 5
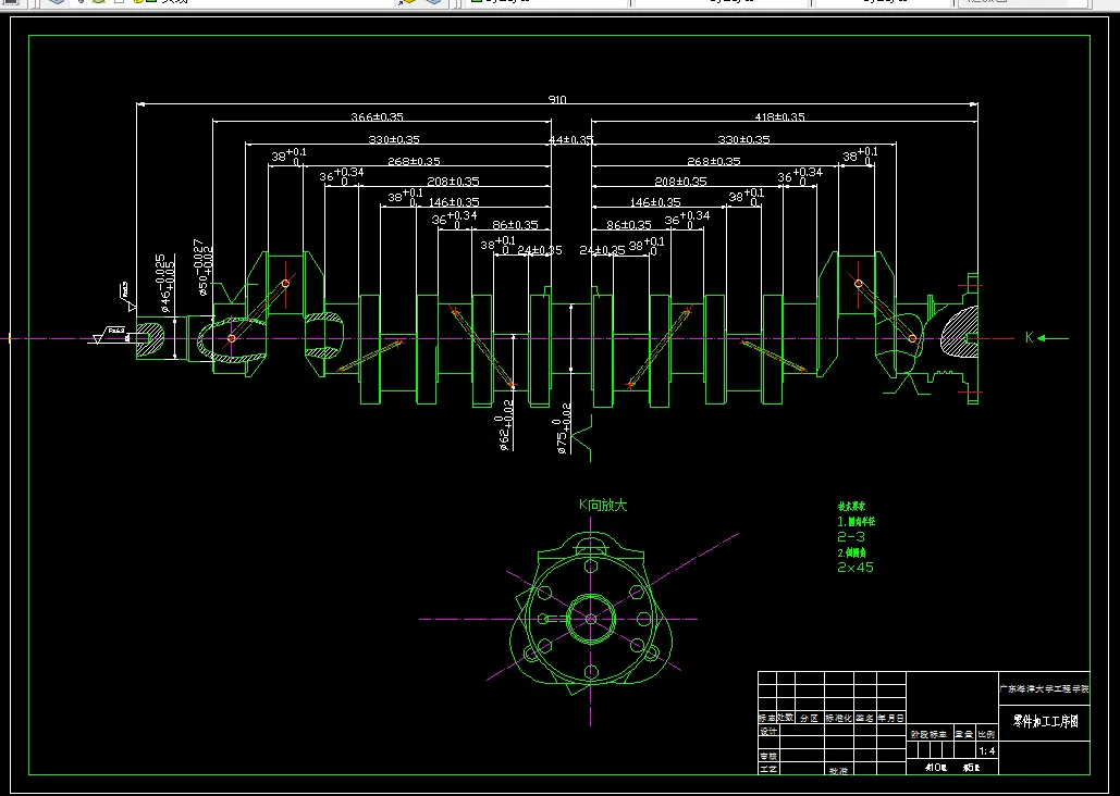
2.1曲轴工艺路线 5
3.夹具的初步设计 21
3.1夹紧装置应具备的基本要求 21
3.2确定定位元件 21
3.3确定导向装置 21
3.4确定夹紧机构 22
3.5画出夹具简图 22
3.6V型块的数控加工 22
4.专用机床总体设计 25
4.1确定切削用量和选择刀具 25
4.1.1确定工序间余量 25
4.1.2选择切削用量 25
4.1.3确定切削力、切削扭矩、切削功率及刀具耐用度 26
4.1.4选择刀具 27
5.机床总体设计――三图一卡 27
5.1被加工零件工序图 27
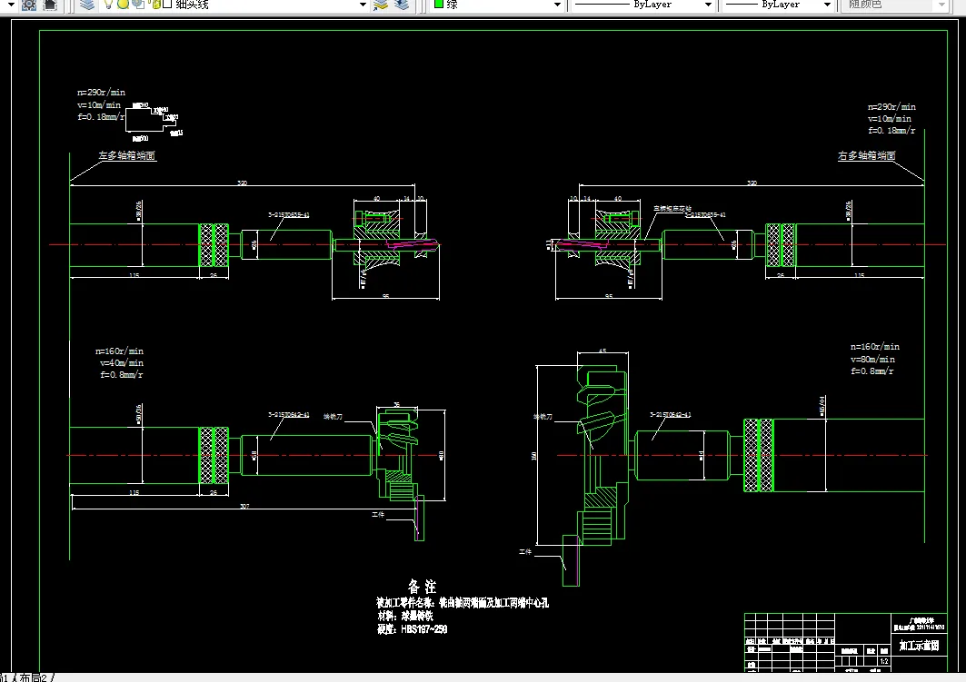
5.2加工示意图 28
5.2.1刀具选择 28
5.2.2导向选择 28
5.2.3初定主轴类型、尺寸、外伸长度 28
5.2.4确定动力部件的工作循环及工作行程 29
5.2.5绘制加工示意图 29
5.3机床联系尺寸图 29
5.3.1动力部件的选择 29
5.3.2夹具轮廓尺寸的确定 30
5.3.3机床装料高度的确定 30
5.3.4多轴箱轮廓尺寸 30
5.3.5绘制机床尺寸联系图 31
5.4机床生产率计算卡 32
6.多轴箱设计 34
6.1专用机床多轴箱的用途及分类 34
6.2通用多轴箱的组成和通用部件 34
6.3多轴箱的设计 35
6.3.1绘制多轴箱设计原始依据图 35
6.3.2主轴结构型式的选择及动力计算 36
6.3.3主轴分布类型及传动系统设计与计算 37
6.3.4主轴的强度校核 40
6.3.5齿轮的强度校核 44
6.3.6轴承的选择和校验 49
6.3.7多轴箱的坐标计算 51
7.专用机床多轴箱装配图设计 52
7.1 通用多轴箱总图设计 52
7.1.1主视图和侧视图 52
7.1.2展开图 52
7.2主轴和传动轴 52
8.三维实体造型设计 52
设计总结 54
鸣 谢 55
参考文献 56
温馨提示:
1、题目前面的备注【字母数字编号】为本站整理分类的编号,与课题内容无关,请选题时忽视;
2、若题目上备注三维,则表示文件里包含三维源文件,由于三维组成零件数量较多,为保证预览截图的简洁性,本站将三维文件夹进行了打包。三维及CAD预览截图,均为本站电脑打开软件进行截图的,保证能够打开,下载原件超高清,下载后解压即可;
3、本站所有资源如无特殊说明,都需要本地电脑安装Office2007。图纸软件为AutoCAD,PROE,UG,SolidWorks,CATIA等;
4、本站所有图文资料仅供用户学习参考,不作为任何商用或其他用途;
5、本站不保证下载资源的准确性、安全性和完整性, 不包修改,不支持退换,同时也不承担用户因使用这些下载资源对自己和他人造成任何形式的伤害或损失;
6、 下载文件中如有侵权或不适当内容,请与我们联系,我们立即纠正。