

作品包括:
Word版说明书1份,共18页,约9600字
CAD版本图纸,共2张
目录
1、概述•••••••••••••••••••••••••••••••••••••••••••••••••••4
1.1 本设计项目选题背景和意义•••••••••••••••••••••••••••••4
1.2 国内外关于本设计项目的技术研究现状和发展动态•••••••••5
2、Z3040型摇臂钻床电气控制电路分析•••••••••••••••••••••••6
2.1 Z3040型摇臂钻床••••••••••••••••••••••••••••••••••••••6
2.2摇臂钻床的主要结构••••••••••••••••••••••••••••••••••••6
2.3摇臂钻床的电力拖动控制要求与特点••••••••••••••••••••••7
2.4 电气控制路线详解••••••••••••••••••••••••••••••••••••••7
2.5控制电路、信号及照明电路••••••••••••••••••••••••••••••8
3、基于PLC的Z3040摇臂钻床电气控制系统硬件部分的设计••••10
3.1 PLC型号的选择••••••••••••••••••••••••••••••••••••••10
3.2 PLC的I/O端口分配表•••••••••••••••••••••••••••••••••12
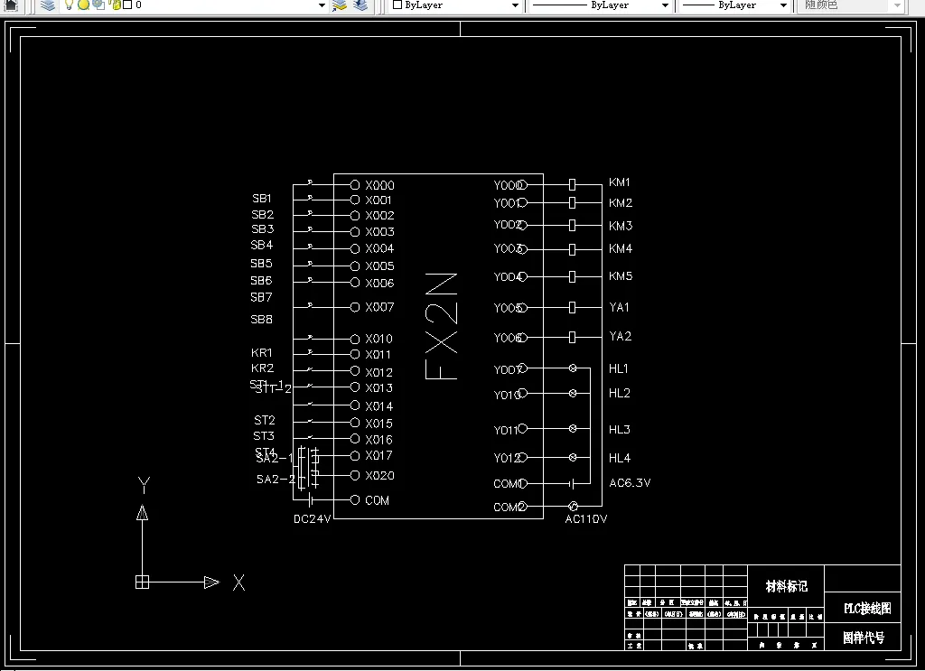
3.3 PLC的I/O电气接线图的设计•••••••••••••••••••••••••••13
4、Z3040摇臂钻床电气控制系统软件部分的设计••••••••••••••14
4.1 PLC 梯形图程序的优化设计及程序调试•••••••••••••••••14
4.2 PLC程序设计•••••••••••••••••••••••••••••••••••••••••14
5、结论••••••••••••••••••••••••••••••••••••••••••••••••••18
参考文献•••••••••••••••••••••••••••••••••••••••••••••••••18
温馨提示:
1、题目前面的备注【字母数字编号】为本站整理分类的编号,与课题内容无关,请选题时忽视;
2、若题目上备注三维,则表示文件里包含三维源文件,由于三维组成零件数量较多,为保证预览截图的简洁性,本站将三维文件夹进行了打包。三维及CAD预览截图,均为本站电脑打开软件进行截图的,保证能够打开,下载原件超高清,下载后解压即可;
3、本站所有资源如无特殊说明,都需要本地电脑安装Office2007。图纸软件为AutoCAD,PROE,UG,SolidWorks,CATIA等;
4、本站所有图文资料仅供用户学习参考,不作为任何商用或其他用途;
5、本站不保证下载资源的准确性、安全性和完整性, 不包修改,不支持退换,同时也不承担用户因使用这些下载资源对自己和他人造成任何形式的伤害或损失;
6、 下载文件中如有侵权或不适当内容,请与我们联系,我们立即纠正。