

作品包括:
Word版说明书1份,共32页,约13000字
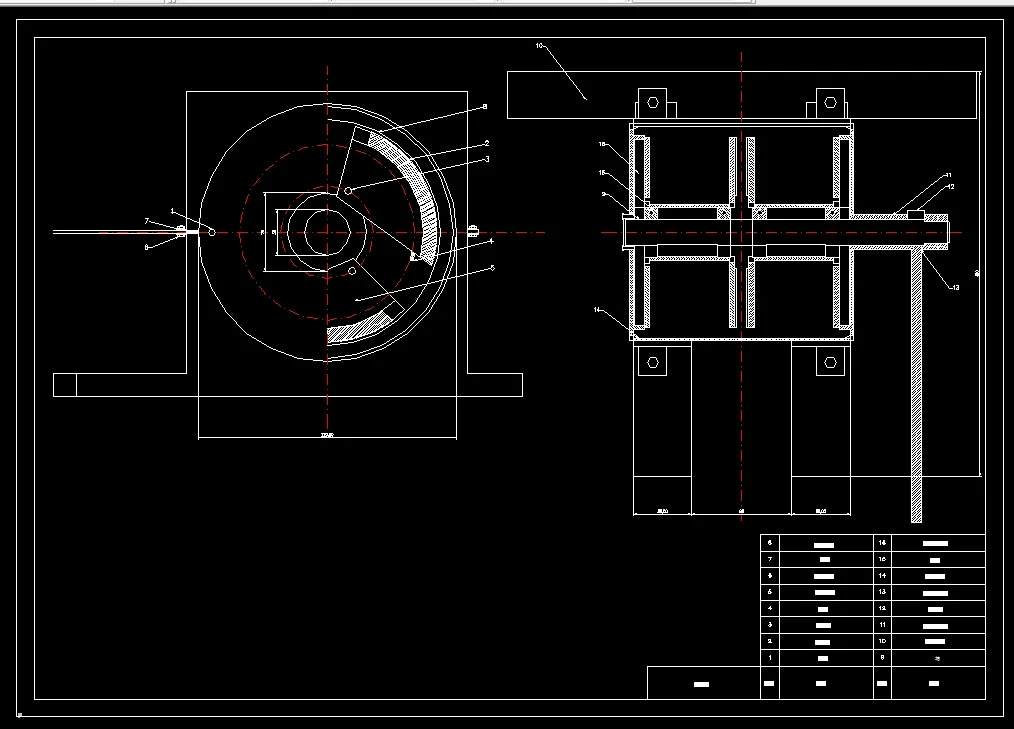
CAD版本图纸,共5张

摘要
本文设计一液压试验台,可依据《液压与气压传动》课程要求分别进行液压泵性能实验、溢流阀的特性实验、节流阀调速回路的性能实验以及模拟组合机床的动作过程要求等实验项目,在同一台实验台上可以进行验证实验。
本次设计首先,通过对液压实验台研究现况及功能要求进行分析,在此分析基础上提出了设计方案;接着,根据需要模拟的动作循环及试验内容设计了液压原理图,然后,对液压缸等液压元件行了计算与选择;最后,通过AutoCAD制图软件绘制了液压原理图、集成块、液压缸等主要零部件图,并进行了三维设计及运动仿真。
通过本次设计,巩固了大学所学专业知识,如:液压传动、自动控制理论、机械原理、机械设计、公差与互换性理论、机械制图等;掌握了普通液压产品的设计方法并能够熟练使用AutoCAD制图软件,对今后的工作于生活具有极大意义。
关键词:试验台,液压,泵站,油缸
目 录
1绪论 1
1.1 选题背景及意义 1
1.2国内外研究状况 1
1.2.1国内状况 1
1.2.2国外状况 2
2试验台工况分析 4
2.1设计要求及参数选定 4
2.1.1设计要求 4
2.1.2动作要求 4
2.1.3参数要求 4
2.2系统工况分析 4
2.2.1 运动分析 4
2.2.2 负载分析 5
3液压系统总体设计 7
3.1确定主要参数 7
3.1.1液压缸的工作压力的确定 7
3.1.2 液压缸内径D和活塞杆直径d的确定 8
3.2液压系统方案选型与分析 9
3.3液压回路选择 9
3.3.1工作台部分 9
3.3.2夹紧部分 10
3.3.3组成液压系统原理图 11
4液压缸的设计 12
4.1液压缸主要尺寸的确定 12
4.1.1 液压缸壁厚和外径的计算 12
4.1.2 液压缸工作行程的确定 13
4.1.3 缸盖厚度的确定 14
4.1.4 最小导向长度的确定 14
4.1.5 缸体长度的确定 15
4.1.6 固定螺栓得直径 15
4.1.7 液压缸强度校核 15
4.2 液压缸的结构设计 16
4.2.1 缸体与缸盖的连接形式 17
4.2.2 活塞杆与活塞的连接结构 17
4.2.3 活塞杆导向部分的结构 18
4.2.4 密封装置 18
4.2.5 缓冲装置 18
4.2.6 排气装置 18
4.2.7 液压缸的安装结构 19
5液压元件的计算和选择 20
5.1确定液压泵和电机的规格 20
5.2 油箱的设计 20
5.2.1液压油箱有效容积的确定 20
5.2.2液压油箱的外形尺寸 21
5.2.3液压油箱的结构设计 21
5.3液压泵站 21
5.3.1 液压泵站的组成及分类 21
5.3.2 液压泵站的选择 22
5.4液压集成块 22
5.4.1 块体的结构 22
5.4.2 集成块结构尺寸的确定 23
5.4.3集成块的加工 23
5.5阀类元件和辅助元件的选择 23
总 结 25
参考文献 26
致 谢 27
温馨提示:
1、题目前面的备注【字母数字编号】为本站整理分类的编号,与课题内容无关,请选题时忽视;
2、若题目上备注三维,则表示文件里包含三维源文件,由于三维组成零件数量较多,为保证预览截图的简洁性,本站将三维文件夹进行了打包。三维及CAD预览截图,均为本站电脑打开软件进行截图的,保证能够打开,下载原件超高清,下载后解压即可;
3、本站所有资源如无特殊说明,都需要本地电脑安装Office2007。图纸软件为AutoCAD,PROE,UG,SolidWorks,CATIA等;
4、本站所有图文资料仅供用户学习参考,不作为任何商用或其他用途;
5、本站不保证下载资源的准确性、安全性和完整性, 不包修改,不支持退换,同时也不承担用户因使用这些下载资源对自己和他人造成任何形式的伤害或损失;
6、 下载文件中如有侵权或不适当内容,请与我们联系,我们立即纠正。