

作品包括:
Word版说明书1份,共40页,约12000字
CAD版本图纸,共16张


摘要
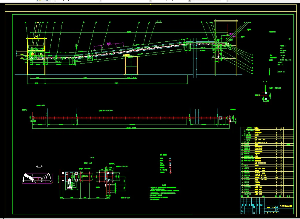
塔式起重机是一种塔身竖立、起重臂回转的起重机械,是现代化工与民用建筑的主要施工机械之一,其幅度利用率很大。塔式起重机主要结构为塔身、臂架、转台、承座、平衡臂、底架、塔顶,他们构成塔式起重机的金属结构。它具有使用范围广,回转半径大,起升高度高,效率高,操作简便,安装和拆卸方便等特点,目前在我国建筑安装工程中使用非常普遍,尤其在高层建筑和普通民用建筑中,已经成为不可替代的建设机械
塔式起重机臂架的设计是一种钢结构的设计,臂架主要是由上弦杆、下弦杆、腹杆和拉杆构成,设计时需要考虑到以上各部分的组成结构和具体尺寸、材料等。通过多次计算,最终确保臂架可以顺利完成工作,又节省材料,成本低廉。
温馨提示:
1、题目前面的备注【字母数字编号】为本站整理分类的编号,与课题内容无关,请选题时忽视;
2、若题目上备注三维,则表示文件里包含三维源文件,由于三维组成零件数量较多,为保证预览截图的简洁性,本站将三维文件夹进行了打包。三维及CAD预览截图,均为本站电脑打开软件进行截图的,保证能够打开,下载原件超高清,下载后解压即可;
3、本站所有资源如无特殊说明,都需要本地电脑安装Office2007。图纸软件为AutoCAD,PROE,UG,SolidWorks,CATIA等;
4、本站所有图文资料仅供用户学习参考,不作为任何商用或其他用途;
5、本站不保证下载资源的准确性、安全性和完整性, 不包修改,不支持退换,同时也不承担用户因使用这些下载资源对自己和他人造成任何形式的伤害或损失;
6、 下载文件中如有侵权或不适当内容,请与我们联系,我们立即纠正。