

作品包括:
Word版说明书1份,共30页,约13000字
任务书一份
CAD版本图纸,共8张
UG三维图一套
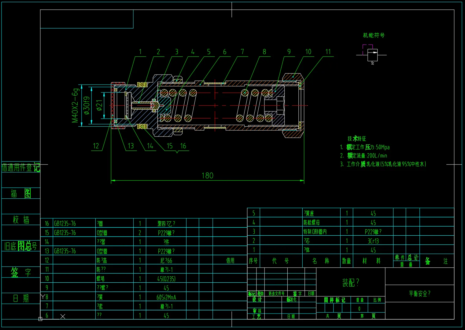
![1750853079821638.webp N7]DX8TDFF8%Y89YNIXWG81.webp](/static/upload/image/20250625/1750853079821638.webp)
摘要
汽车行业的飞速发展使得更多家庭的生活提供了方便,同时小轿车也逐步成为人们代步的工具。而越来越多的汽车在道路上行驶必将导致交通的拥堵,同时对于汽车紧急停车减速慢行的要求也越来越高,因此对于汽车行业来说整车的安全性能是一个车型成功与否的关键。而整车的安全性能中,制动系统又是真个安全性能中最重要的一部分,因此对于制动器的设计尤为重要。
本设计中主要是对高性能轿车的制动系统进行设计,设计中主要对盘式制动器的结构/制动主缸等进行设计。在设计阶段首先通过查阅图书资料及现场生产实习,明白盘式制动器的结构原理及工作原理。同时通过基础车型的基本数据对制动器的制动力、摩擦力,制动主缸等主要参数进行设计计算。利用CAD制图软件对制动器进行绘制,最终完成设计说明书。
关键字:制动;盘式制动器;制图; 安全性能;
目 录
摘 要 2
ABSTRACT 3
第1章 绪 论 6
1.1制动系统的简介 6
1.1.1制动系的组成部分 6
1.1.2 制动系的分类 7
1.2制动系统的现状和发展趋势 7
1.2.1制动的发展趋势 7
1.2.2制动系统的现状 8
1.2.3制动系统的研究方向 8
1.3课题研究的目的与意义 9
1.4 研究的方法及技术路线 10
1.4.1研究方法 10
1.4.2研究技术路线 10
1.5 研究主要内容和设计要求 10
第2章 制动器设计方案的分析 11
2.1 制动系统的功用 11
2.2 设计参数的分析 12
2.2.1 分配基础制动力 12
2.2.2 同步附着系数的选择 13
2.2.3 制动力矩的计算 13
2.2.4 制动因数的确定 14
第3章 盘式制动器的结构设计 14
3.1 操纵形式的设计 14
3.2 液压系统的设计计算 15
3.2.1 制动轮缸的计算 15
3.2.2 制动主缸的计算 16
3.2.3 制动力的计算 17
第4章 制动器的结构分析 19
4.1 盘式制动器结构分析 19
4.2 主要结构参数设计 20
4.2.1制动盘直径设计 20
4.2.2.制动盘厚度设计 20
4.2.3.摩擦衬块设计 20
4.3 制动器压力的计算 20
4.3.1磨损特性分析 20
4.3.2热容量的核算 21
4.3.3 制动力矩的计算 22
4.4驻车制动的计算 24
4.5制动钳的结构分析 25
4.6 制动盘的结构分析 25
4.6.1 制动盘 25
4.6.2 摩擦材料 26
4.7制动轮缸的设计 26
第5章 三维模型的建立 26
5.1 主要零部件的建模 26
5.2 装配图的建立 27
结 论 28
参考文献 30
致 谢 31
温馨提示:
1、题目前面的备注【字母数字编号】为本站整理分类的编号,与课题内容无关,请选题时忽视;
2、若题目上备注三维,则表示文件里包含三维源文件,由于三维组成零件数量较多,为保证预览截图的简洁性,本站将三维文件夹进行了打包。三维及CAD预览截图,均为本站电脑打开软件进行截图的,保证能够打开,下载原件超高清,下载后解压即可;
3、本站所有资源如无特殊说明,都需要本地电脑安装Office2007。图纸软件为AutoCAD,PROE,UG,SolidWorks,CATIA等;
4、本站所有图文资料仅供用户学习参考,不作为任何商用或其他用途;
5、本站不保证下载资源的准确性、安全性和完整性, 不包修改,不支持退换,同时也不承担用户因使用这些下载资源对自己和他人造成任何形式的伤害或损失;
6、 下载文件中如有侵权或不适当内容,请与我们联系,我们立即纠正。