

作品包括:
说明书1份,共26页,约10000字左右
CAD版本本图纸,共9张
SW三维图一份
摘要
自动下料机作为加工管材、棒材的加工设备的一种,随着机械公司的逐步增多,自动下料机的应用越来越普遍。在经济全球化背景下,现代机械产品向着高精度、高自动化和高可靠性发展、具有机电结合和多学科技术结合的特点,纯机械的产品越来越少,而且更新换代速度越来越快。机械工业是一个国家的重要产业,机械工业的发展无时不刻都在影响着国家经济的发展,人类的进步离不开机械工业的发展。生产自动下料机的企业,必须充分考虑到在自动下料机运行中可能出现的问题,尽量使自动下料机的自动化程度越高越好,从而减少人工搬运工具的时间,国内自动下料机的研发及制造要与全球号召的高效经济、安全稳定主题保持一致。自动下料机的发展与人类社会的进步和科学技术的水平密切相关。
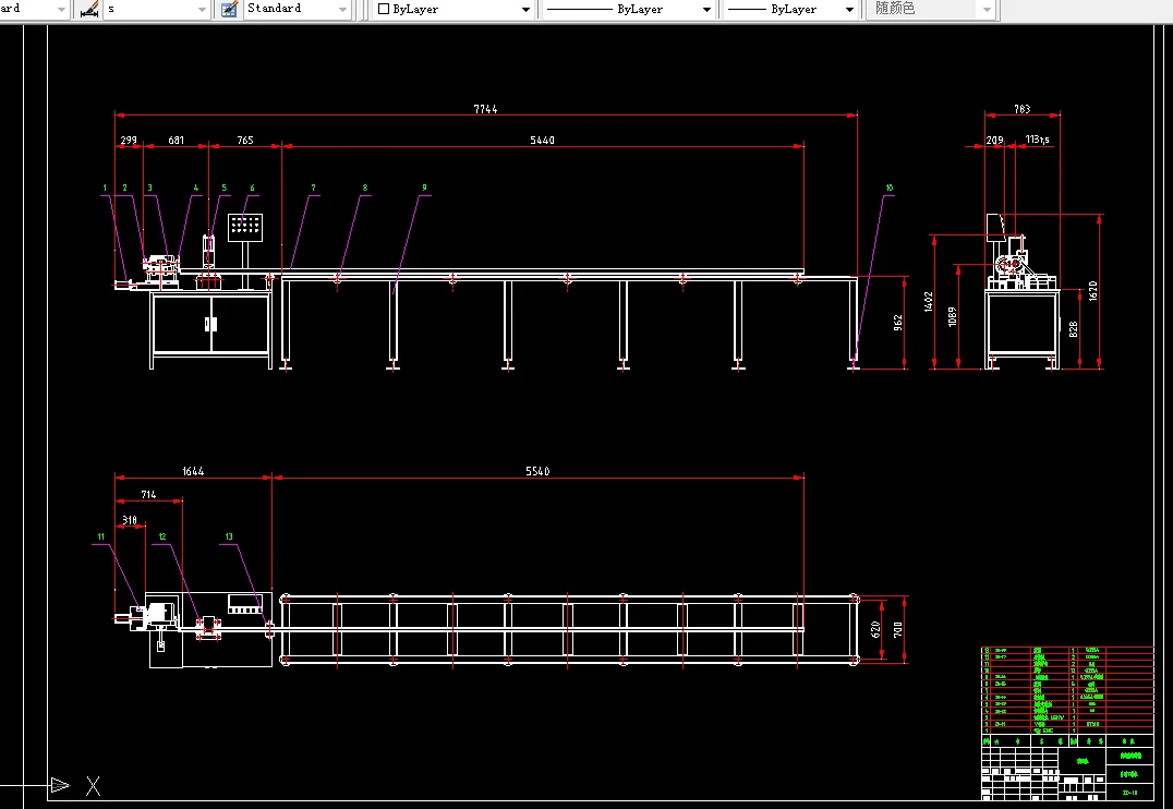
本次设计的题目是自动下料机的设计,主要由上料组件、切割组件、机架组件组成,目前,国内自动下料机的研发也在朝着运行高速化、功能复合化、控制智能化的方向发展,廉价,简单,方便成为了国内外自动下料机的发展的主题。
关键词:自动下料机;机械;制造;价值
目 录
摘要 I
Abstract II
1引言 1
1.1 课题的来源与研究的目的和意义 1
1.2 本课题研究的内容 2
1.3 三维软件设计 5
1.4 自动下料机的分类 7
2自动下料机总体结构的设计 10
2.1 机械传动部分的设计计算 13
2.1.1皮带传动的设计计算 14
2.1.2直线导轨的设计计算 16
2.1.3轴承的选型计算 18
2.1.4 键的选型计算 19
3自动下料机中主要零件的强度校核 20
3.1 机架强度的校核计算 21
3.2 轴承强度的校核计算 22
4 三维软件设计总结 23
结论 24
致谢 25
参考文献 26
温馨提示:
1、题目前面的备注【字母数字编号】为本站整理分类的编号,与课题内容无关,请选题时忽视;
2、若题目上备注三维,则表示文件里包含三维源文件,由于三维组成零件数量较多,为保证预览截图的简洁性,本站将三维文件夹进行了打包。三维及CAD预览截图,均为本站电脑打开软件进行截图的,保证能够打开,下载原件超高清,下载后解压即可;
3、本站所有资源如无特殊说明,都需要本地电脑安装Office2007。图纸软件为AutoCAD,PROE,UG,SolidWorks,CATIA等;
4、本站所有图文资料仅供用户学习参考,不作为任何商用或其他用途;
5、本站不保证下载资源的准确性、安全性和完整性, 不包修改,不支持退换,同时也不承担用户因使用这些下载资源对自己和他人造成任何形式的伤害或损失;
6、 下载文件中如有侵权或不适当内容,请与我们联系,我们立即纠正。