

作品包括:
Word版说明书1份,共36页,约9300字
外文翻译一份
开题报告一份
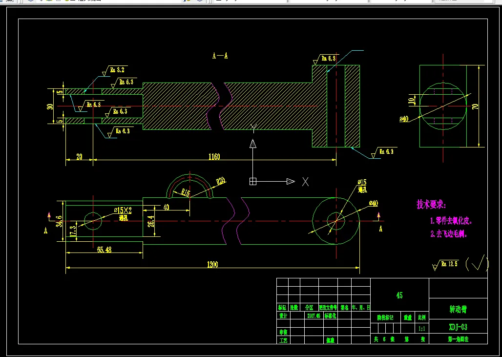
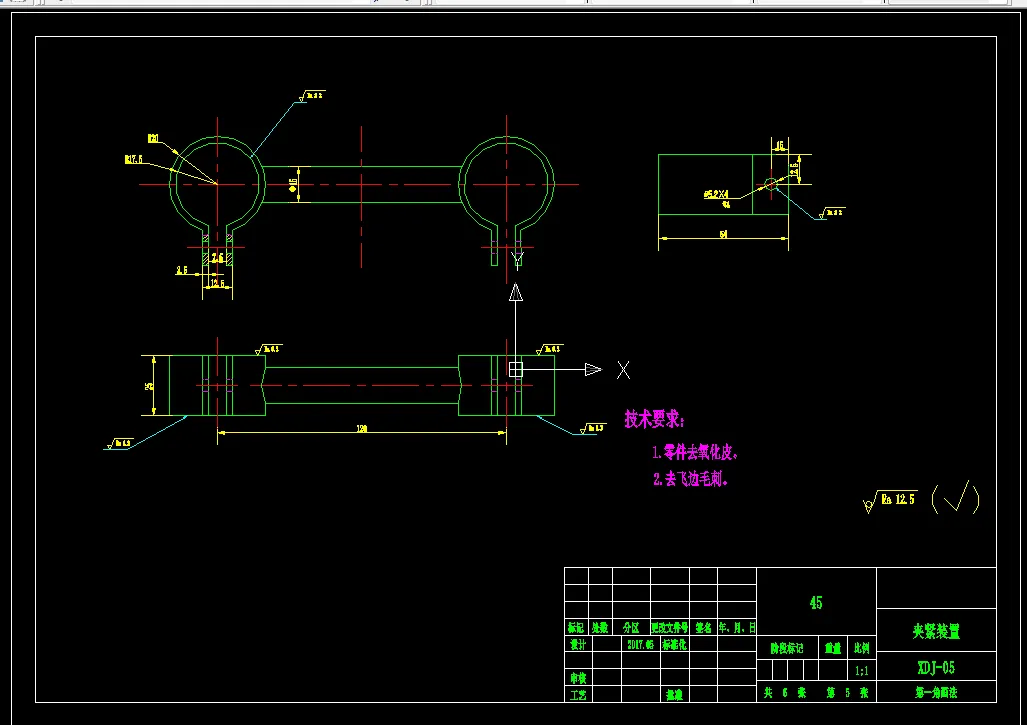
CAD版本图纸,共6张
![1708057634856229.webp %BZ6ZWB)@U6)D]~[(ZKTVNP.webp](/static/upload/image/20240216/1708057634856229.webp)
摘 要
吊运机的发明产生是当今机械搬运上的一大突破,从此结束了上千年来高层建筑材料靠人力搬运的历史。
本文主要表达的是双立柱便携式小型吊运机的电动机选型,以及减速器和支架的设计,夹具的选择等,并利用所学的proe绘制三维模型。
该小型吊运机适用于吊运钢直径120mm,吊运高度2m,速度0.5m/s的吊运本文对小型吊运机的特点原理进行描述,为以后的改进提供案例和材料。
关键词:双立柱 吊运机 圆钢
目 录
摘 要 i
Abstract ii
绪 论 1
1.1 小型吊运机介绍 1
1.2 小型吊运机市场情况 1
1.3 面临的问题 2
第二章 设计工作与任务 4
2.1.基本要求 4
2.2 编写设计说明书 4
2.3. 图纸绘制 4
第三章 总体方案确定 5
3.1方案设计一 5
3.2方案设计二 6
3.3 方案设计三 7
3.4 方案确定 7
第四章 结构设计参数计算 9
4.1 电动机的选用: 9
4.2 传动比的选择: 9
4.3蜗轮蜗杆减速机构设计 9
4.4 联轴器的选用 15
4.5 钢丝绳直径的选用 16
4.6 支架设计 16
4.7夹具的选择 19
第五章 三维模型的建立 20
第六章维修及安装的问题 25
6.1 安装注意的问题 25
6.2 安装和运行中应注意事项 26
6.3 常见故障及排除方法 26
6.4 维修保养方法 27
结 论 28
参考文献 29
温馨提示:
1、题目前面的备注【字母数字编号】为本站整理分类的编号,与课题内容无关,请选题时忽视;
2、若题目上备注三维,则表示文件里包含三维源文件,由于三维组成零件数量较多,为保证预览截图的简洁性,本站将三维文件夹进行了打包。三维及CAD预览截图,均为本站电脑打开软件进行截图的,保证能够打开,下载原件超高清,下载后解压即可;
3、本站所有资源如无特殊说明,都需要本地电脑安装Office2007。图纸软件为AutoCAD,PROE,UG,SolidWorks,CATIA等;
4、本站所有图文资料仅供用户学习参考,不作为任何商用或其他用途;
5、本站不保证下载资源的准确性、安全性和完整性, 不包修改,不支持退换,同时也不承担用户因使用这些下载资源对自己和他人造成任何形式的伤害或损失;
6、 下载文件中如有侵权或不适当内容,请与我们联系,我们立即纠正。