

作品包括:
说明书1份,共40页,约17000字左右
CAD版本本图纸,共9张
SW三维图一份
摘 要
机械工业是一个国家的重要产业,机械工业的发展无时不刻都在影响着国家经济的发展,人类的进步离不开机械工业的发展。在全球经济发展的大环境下,中国各个行业被其他国家的先进技术影响的同时,越来越多的外国企业和品牌传播到中国已经成为现实。在新的市场需求的推动下,对大型四边形滚动机器人进行改良和优化是当务之急。有大型机器人生产制造企业对设备的安全指标的有着一定生产的严格要求。在生产设备的企业,充分考虑到在设备运行中可能出现的问题,从而减少噪声污染引起的振动或不当操作设备的现象等。国内大型四边形滚动机器人设备的研发及制造要与全球号召的高效经济、安全稳定主题保持一致。大型四边形滚动机器人的发展与人类社会的进步和科学技术的水平密切相关。
本毕业设计的目标是设计一种大型四边形滚动机构,该机构尺寸为大型,利用人体操作实现机构运动的控制。采用四杆机构作为设计基础,通过机构设计与仿真设计实现滚动功能。
关键词:大型四边形滚动机器人;结构;四杆机构;曲柄摇杆
目 录
摘 要 i
ABSTRACT ii
目 录 iii
1绪论 1
1.1课题来历与研究的目的以及意义 1
1.2大型四边形滚动机器人的发展现状 2
1.3本课题研究的内容 5
1.4 该机器人的Solidworks设计 7
1.4.1 草图绘制 9
1.4.2 基准特征,参考几何体的创建 10
1.4.3 拉伸、旋转、扫描和放样特征建 11
1.4.4 工程图的设计 12
1.4.5 装配设计 12
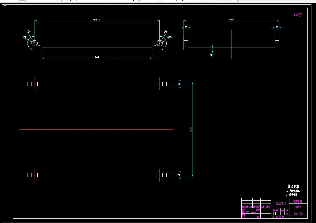
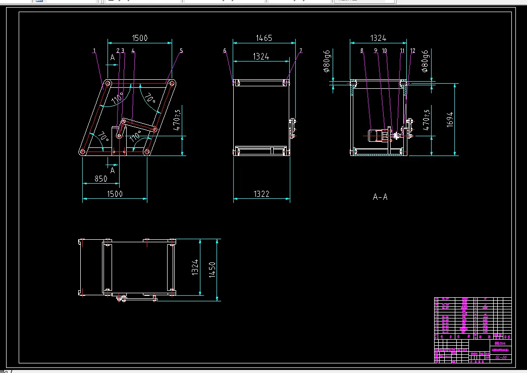
2 大型四边形滚动机器人总体方案结构的设计 12
2.1 大型四边形滚动机器人的总体方案图 12
2.2 大型四边形滚动机器人的工作原理 12
3 机械传动的设计计算 16
3.1 伺服电机的选型计算 16
3.2 传动轴的设计计算 17
3.3 轴承的设计计算 17
4 主要零部件的强度校核 18
4.1 传动轴强度的校核 19
4.2 轴承强度的校核计算 19
结论 19
致 谢 20
参考文献 21
附录 一 32
附录 二 40
温馨提示:
1、题目前面的备注【字母数字编号】为本站整理分类的编号,与课题内容无关,请选题时忽视;
2、若题目上备注三维,则表示文件里包含三维源文件,由于三维组成零件数量较多,为保证预览截图的简洁性,本站将三维文件夹进行了打包。三维及CAD预览截图,均为本站电脑打开软件进行截图的,保证能够打开,下载原件超高清,下载后解压即可;
3、本站所有资源如无特殊说明,都需要本地电脑安装Office2007。图纸软件为AutoCAD,PROE,UG,SolidWorks,CATIA等;
4、本站所有图文资料仅供用户学习参考,不作为任何商用或其他用途;
5、本站不保证下载资源的准确性、安全性和完整性, 不包修改,不支持退换,同时也不承担用户因使用这些下载资源对自己和他人造成任何形式的伤害或损失;
6、 下载文件中如有侵权或不适当内容,请与我们联系,我们立即纠正。