

作品包括:
Word版说明书1份,共41页,约16000字
CAD版本图纸,共15张

摘 要
在我国纺织工艺中,可分为纺纱、织造、染整等工序。涂布机是在织造工序中重要的一环。当前人工涂布机有诸多缺陷:如速度慢,产量有限,漏检率高,连续监测性差等。因此需要发展快速、新颖、准确的自动涂布机。
随着中国加入WTO,纺织品国内生产厂家与知名国际品牌服装销售公司的业务量关系越来越密切。自动涂布机,它可以取代人工,自动涂布后并分等、开剪。胶辊采用进口橡胶,光辊辊面经精密加工,细腻光滑。胶辊配有进用快口刮刀并由蜗轮减速器调整角度,涂漆均匀,漆面更光滑。胶辊两端采用带座轴承,可快速更换,减少维护时间。输送带转动动力在胶辊中心线平衡的辊筒处,提高输送的稳定性。胶辊组的升降采用手动微调,两组胶辊的升降由滑块的导引下无间隙,涂布时不会出现摇晃摆动,可进行高速而稳定的涂布。厚度不同的板材调节方便。升降配置气缸锁紧装置,消除整机的间隙误差,同时对误放的厚板有瞬间升高功能,有效保护了胶辊的损坏,使涂布更加均匀细腻。输送台采用砂光机工作台结构,更稳固,换带更方便快捷;该结构决定油槽设计、安装合理科学,油槽的更换、清洗非常方便,辊涂、清洗时油漆和清洗溶剂不会掉在皮带上。输送带为进口高强度PU带,采用进口变频调速装置,运行平稳,耐各种溶剂,防止化学腐蚀而导致起层现象。胶辊、光辊和输送带均由独立进口电机驱动,由独立的进口变频器变频控制实现无级调速,有利于提高涂漆质量和方便设备的操作,通过不同速度的调节,可精密控制涂漆量而使工件获得最佳的表面光滑度和饱和度。采用涂料桶加温系统,提高了涂料循环的稳定性,并且很容易调整无溶剂的UV涂料的黏度。不锈钢制造的二层桶内装入了活性油,再通过有温度调整机能的电热加温,可间接对涂料起到加温作用。可选配搅拌器,将涂料搅拌均匀。
关键词:自动涂布机 织物瑕疵点 贴标签 自动化
目 录
第一章 绪论 1
1.1 自动涂布机简介 1
1.2 研究背景 1
1.3 国内研究现状 2
1.4 国外研究现状 2
1.5 主要研究内容 3
第二章 设计任务及设计部件 3
2.1自动涂布机工作平台 4
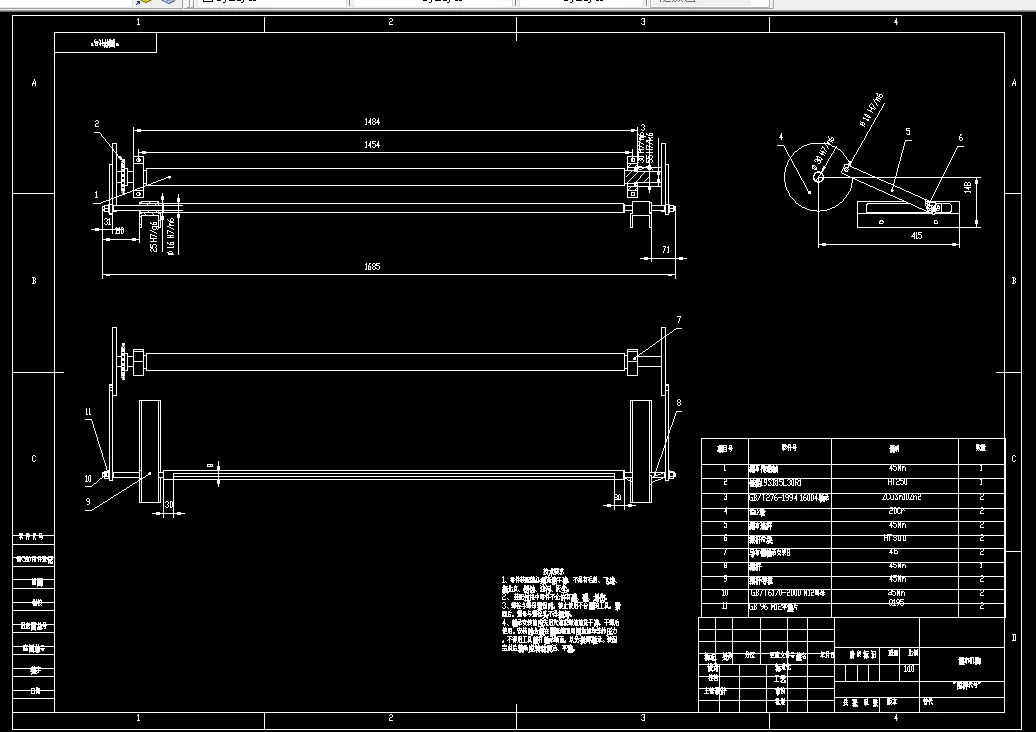
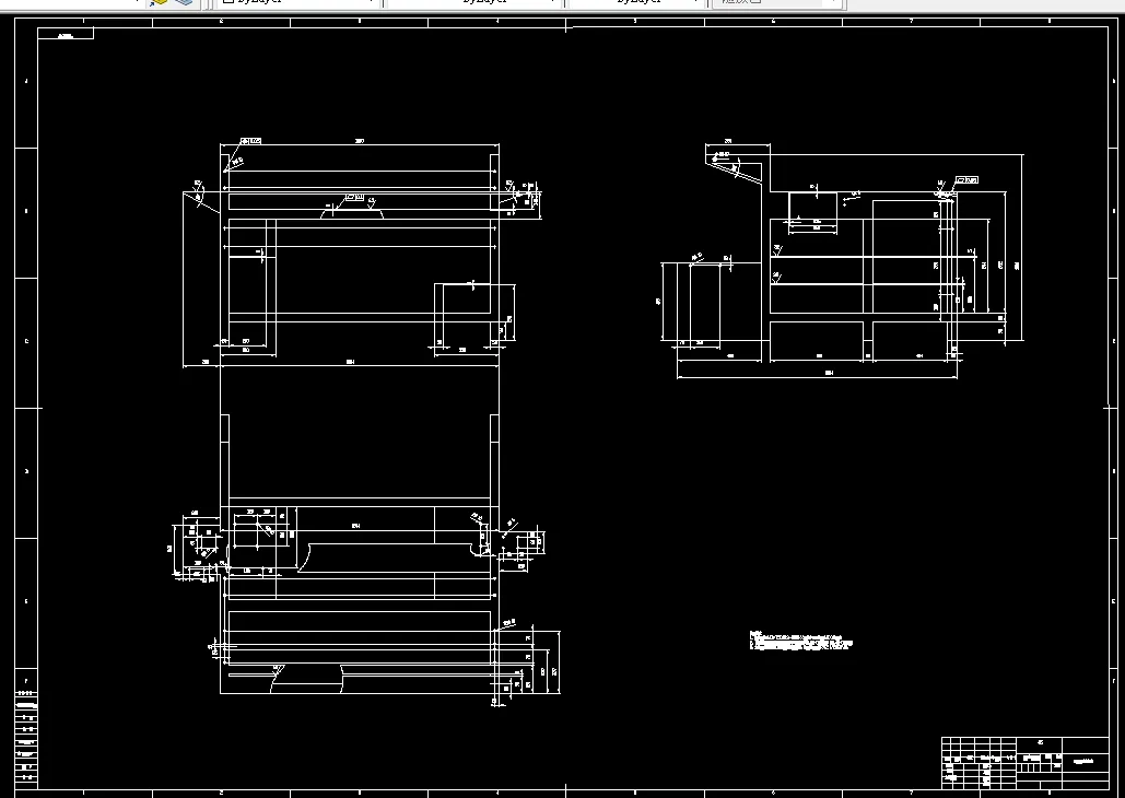
2.2涂辊机架设计 5
2.3打标机机构设计 10
2.4 摆布机构的设计 12
第三章 自动涂布机系统中的驱动装置 13
3.1 三相异步电机选择 14
3.2链轮的选择 14
3.2.1链轮的性能特点 15
3.2.2链轮的安装要求 16
3.2.3链轮的计算与校核 16
3.3传动轴的设计 17
3.4深沟球轴承的选择和寿命验算 22
3.5摆布机构设计计算 24
总结 27
致谢 29
参考文献 30
温馨提示:
1、题目前面的备注【字母数字编号】为本站整理分类的编号,与课题内容无关,请选题时忽视;
2、若题目上备注三维,则表示文件里包含三维源文件,由于三维组成零件数量较多,为保证预览截图的简洁性,本站将三维文件夹进行了打包。三维及CAD预览截图,均为本站电脑打开软件进行截图的,保证能够打开,下载原件超高清,下载后解压即可;
3、本站所有资源如无特殊说明,都需要本地电脑安装Office2007。图纸软件为AutoCAD,PROE,UG,SolidWorks,CATIA等;
4、本站所有图文资料仅供用户学习参考,不作为任何商用或其他用途;
5、本站不保证下载资源的准确性、安全性和完整性, 不包修改,不支持退换,同时也不承担用户因使用这些下载资源对自己和他人造成任何形式的伤害或损失;
6、 下载文件中如有侵权或不适当内容,请与我们联系,我们立即纠正。