

作品包括:
Word版说明书1份,共40页,约12000字
开题报告一份
CAD版本图纸,共6张
SW三维图一套

[摘要] 近年来,随着经济的快速发展和人们生活水平的提高,机械产品在交通运输、医疗器械产品行业的应用非常普及,人们不仅要求有高效、高性能、使用可靠、操作舒适及自动化程度高的优质机具,而且对环境保护意识增强,要求低污染,少污染甚至不污染环境,清洗设备作为重要的工艺装备,越来越引起人们的关注,其设计、制造技术水平直接影响到相关产业的发展,已成为国民经济发展的重要基础工业之一,作用十分重要。
本课题所涉及的是芋头清洗机的设计,主要包含辊刷机构设计,属于机械产品设计。机械产品设计就是根据使用要求对机械的工作原理、结构、运动方式、力和能量的传递方式、各个零件的材料和形状尺寸、润滑方法等进行构思、分析和计算并将其转化为具体的描述以作为制造依据的工作过程。
[关键词] 清洗机 辊刷 机械设计 机构
目 录
1. 绪论 1
1.1 选题的目的和意义 1
1.2 国内外清洗技术的比较与芋头清洗机的发展现状 2
1.3 本课题要研究的内容 3
2. 芋头清洗机辊刷机构分析 3
2.1 辊刷机构的需求性分析 3
2.1.1 机构功能分析 3
2.1.2 结构需求性解决方案 4
2.2 辊刷机构的结构分析 4
3. 标准件的选用 6
3.1 电动机的选择 6
3.1.1 电动机容量的选择 6
3.1.2 电动机型号的确定 6
3.2 联轴器的选择 6
3.3 键的选择 7
3.4 轴承的选择 8
3.4.1 深沟球轴承的选择 8
3.4.2 调心球轴承的选择 9
3.5 同步带轮及同步带的选择 9
4. 机构零件的设计与校核 11
4.1 毛辊连接轴A的设计与校核 11
4.1.1 毛辊连接轴A的设计 11
4.1.2 毛辊连接轴A的强度和刚度校核 12
4.2 毛辊连接轴B的设计与校核 13
4.2.1 毛辊连接轴B的设计 13
4.2.2 毛辊连接轴B的强度和刚度校核 14
4.3 从动压辊A的设计与校核 15
4.4 从动压辊B的设计与校核 16
4.4.1 从动压辊B的设计 16
4.4.2 从动压辊B强度和刚度校核 17
4.5 从动压辊C的设计与校核 18
4.5.1 从动压辊C的设计 18
4.5.2 从动压辊C的强度和刚度校核 19
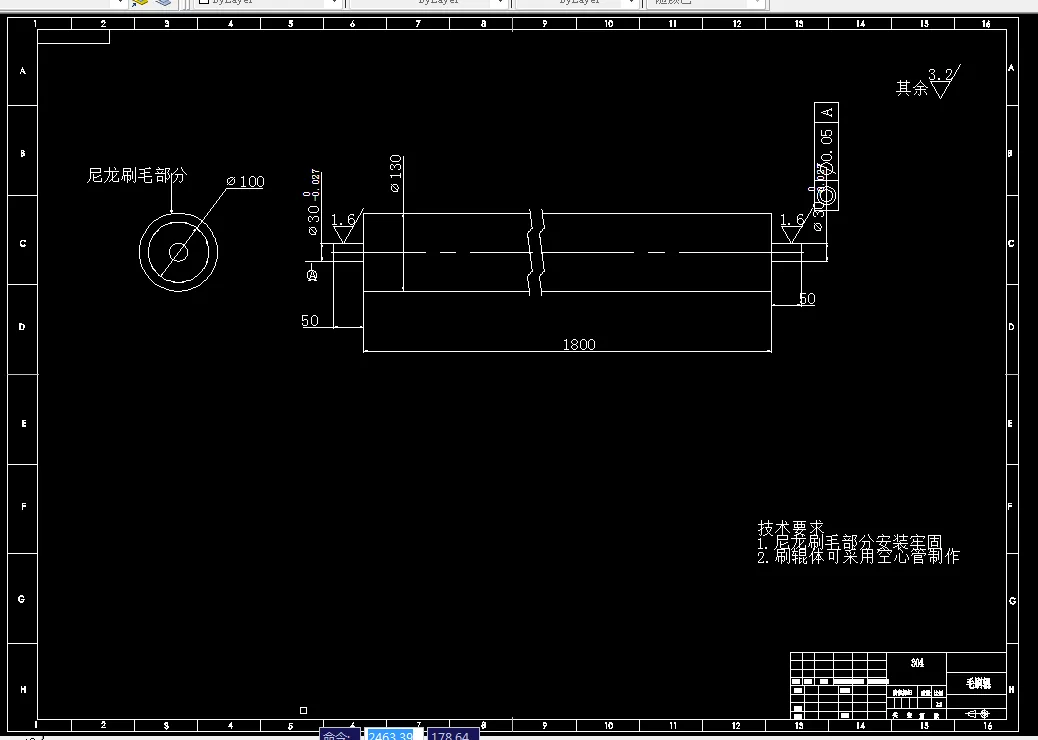
4.6 毛辊的设计 20
4.6.1 毛丝的选择 20
4.6.2 毛辊辊轴的设计 21
4.7 压辊的设计与校核 21
4.7.1 压辊的设计 21
4.7.2 压辊的校核 22
4.8 毛辊轴承座的设计 22
4.9 压辊轴承座的设计 23
4.10 轴承立支架A的设计 24
4.11 轴承立支架B的设计 25
4.12 传动支架的设计 26
4.13 导轴的设计 27
4.14 垫块的设计 28
4.15 轴承滑道的设计 29
4.16 轴承横支板的设计 29
4.17 毛辊轴承盖的设计 30
5. 结论及尚存在的问题 32
致谢 33
参考文献 34
温馨提示:
1、题目前面的备注【字母数字编号】为本站整理分类的编号,与课题内容无关,请选题时忽视;
2、若题目上备注三维,则表示文件里包含三维源文件,由于三维组成零件数量较多,为保证预览截图的简洁性,本站将三维文件夹进行了打包。三维及CAD预览截图,均为本站电脑打开软件进行截图的,保证能够打开,下载原件超高清,下载后解压即可;
3、本站所有资源如无特殊说明,都需要本地电脑安装Office2007。图纸软件为AutoCAD,PROE,UG,SolidWorks,CATIA等;
4、本站所有图文资料仅供用户学习参考,不作为任何商用或其他用途;
5、本站不保证下载资源的准确性、安全性和完整性, 不包修改,不支持退换,同时也不承担用户因使用这些下载资源对自己和他人造成任何形式的伤害或损失;
6、 下载文件中如有侵权或不适当内容,请与我们联系,我们立即纠正。