

作品包括:
Word版说明书1份,共57页
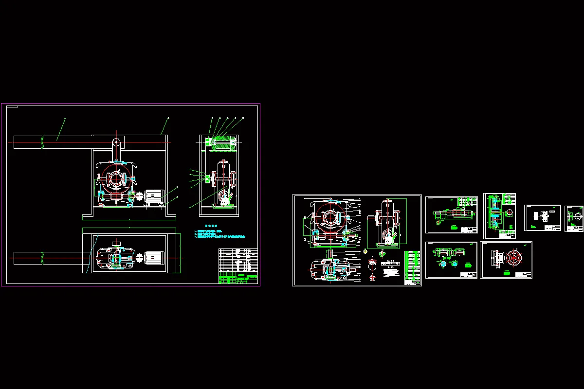
CAD版本图纸,共8张
摘要
本次设计是对一种公路用电动栏杆的设计。为了提高了机器的自动化,以电动高速公路栏杆1,从实际需要出发,工人的旧动态强度,以减少主体,包含在这里实现:工厂设计-设计。解决分析和技术的问题,以创造一个一定条件下,基本功训练一般设计工作,以改善,以提供一个机械设计的能力。
本研究内容:
1.高速公路电动栏杆整体结构设计。
2.公路电动栏杆工作性能分析。
3.驱动机构的选择。
4.公路电动栏杆的传动系统、执行单元设计。
5.对设计零件进行设计计算分析和校核。
6.绘制总装配图及重要部件装配图和设计主要零件图。
温馨提示:
1、题目前面的备注【字母数字编号】为本站整理分类的编号,与课题内容无关,请选题时忽视;
2、若题目上备注三维,则表示文件里包含三维源文件,由于三维组成零件数量较多,为保证预览截图的简洁性,本站将三维文件夹进行了打包。三维及CAD预览截图,均为本站电脑打开软件进行截图的,保证能够打开,下载原件超高清,下载后解压即可;
3、本站所有资源如无特殊说明,都需要本地电脑安装Office2007。图纸软件为AutoCAD,PROE,UG,SolidWorks,CATIA等;
4、本站所有图文资料仅供用户学习参考,不作为任何商用或其他用途;
5、本站不保证下载资源的准确性、安全性和完整性, 不包修改,不支持退换,同时也不承担用户因使用这些下载资源对自己和他人造成任何形式的伤害或损失;
6、 下载文件中如有侵权或不适当内容,请与我们联系,我们立即纠正。