

作品包括
Word版说明书1份,共37页,约14000字
外文翻译一份
CAD版本图纸,共7张

摘 要
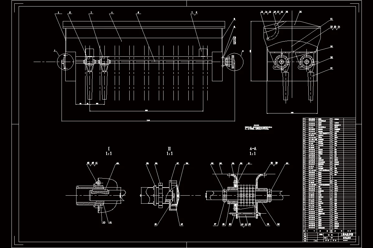
本文主要研究的是新型的多功能农用播种机。新型的农业播种机对于农业发展和播种的效率有着相当大的作用,本设计是基于原有的播种机的结构,在原有的结构上进行改造。并在原有的播种功能上加上施肥功能,同时结合作物播种特点在后面安装上镇压轮。总而言之,本设计的设计宗旨是为农民设计一个既操作简单,又经济实惠的农用机械。
关键词:新型,播种机 , 农用机械
目 录
1 绪论----------------------------------------------------1
1.1 现今农用播种机的使用现状 -------------------------------------2
1.2 目前农用播种机存在的问题 -------------------------------------5
1.3 农用播种机的发展趋势------------------------------------------5
1.4 本章小结------------------------------------------------------8
2 旋耕部分的传动设计--------------------------------------------9
2.1 中间齿轮箱的设计----------------------------------------------10
2.2 旋耕刀片的设计------------------------------------------------18
3 施肥播种部分的传动设计----------------------------------------20
3.1 链传动的设计--------------------------------------------------20
3.2 链轮设计------------------------------------------------------23
3.3 轴的设计------------------------------------------------------28
3 4 播种轮的设计--------------------------------------------------31
4 总结-------------------------------------------------------------32
参考文献-----------------------------------------------------------33
致谢----------------------------------------------------------------34
温馨提示:
1、题目前面的备注【字母数字编号】为本站整理分类的编号,与课题内容无关,请选题时忽视;
2、若题目上备注三维,则表示文件里包含三维源文件,由于三维组成零件数量较多,为保证预览截图的简洁性,本站将三维文件夹进行了打包。三维及CAD预览截图,均为本站电脑打开软件进行截图的,保证能够打开,下载原件超高清,下载后解压即可;
3、本站所有资源如无特殊说明,都需要本地电脑安装Office2007。图纸软件为AutoCAD,PROE,UG,SolidWorks,CATIA等;
4、本站所有图文资料仅供用户学习参考,不作为任何商用或其他用途;
5、本站不保证下载资源的准确性、安全性和完整性, 不包修改,不支持退换,同时也不承担用户因使用这些下载资源对自己和他人造成任何形式的伤害或损失;
6、 下载文件中如有侵权或不适当内容,请与我们联系,我们立即纠正。