

作品包括:
Word版设计说明书1份,共54页,约17000字
PPT答辩一份
CAD版本图纸,共11张

摘要
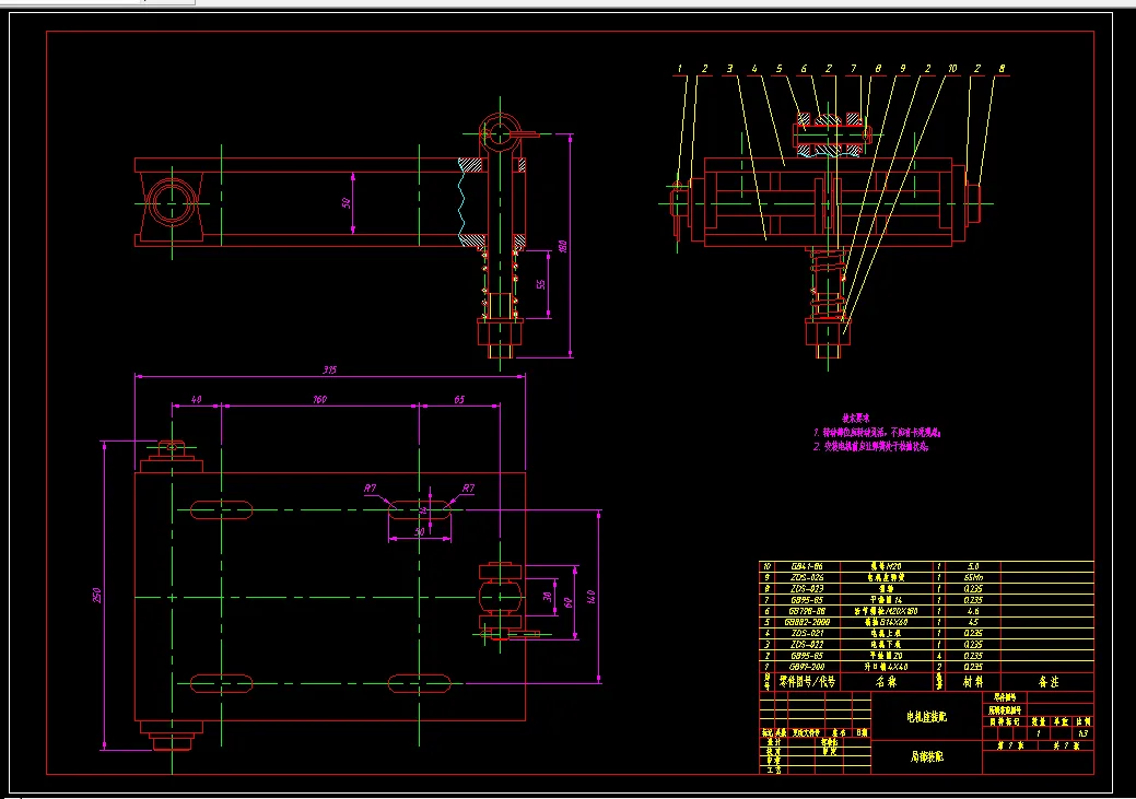
对油茶果脱壳清选机构进行分析,从整体布局到个别零件的选用都进行了设计,包括筛箱,筛面的设计和固定,激振器的形状,支撑方案等等,还包括轴、偏心块等零件的设计。电机带动使得轴上的偏心块同步,另一方面采用了座式结构,淘汰了以往悬挂式的方式,使得结构更加安全,占地面积更小。
本产品为生产能力为85.5t/h的中型油茶果清选筛,对于筛框的材料有比较高的要求,现采用高强度和高冲击韧性的钢材,不仅仅提高了筛框的耐用度,还减轻了整个结构的重量,对弹簧的选则等许多方面也带来了很多的方便。
设计中还包括对连接和固定件的选用,采用十字轴联轴器和轮胎联轴器。并用螺栓连接代替焊接,减小了焊接时应力对它的影响。
关键词:油茶果清选筛; 激振器; 偏心块; 横梁
目 录
摘 要 I
Abstract II
第1章 绪论 1
1.1 课题研究背景及意义 1
1.3 油茶果清选筛在国内外的发展现状 3
1.4 油茶果清选筛的工作原理、分类及特点 5
1.4.1 油茶果清选筛的工作原理 5
1.4.2 直线油茶果清选筛的工作原理 6
第2章 总体方案的设计 8
2.1 油茶果清选筛方案的列举 8
2.2 方案分析 8
2.3 方案确定 8
2.4 油茶果清选筛各部分实现形式 8
2.4.1 筛箱 8
2.4.2 筛面 11
2.4.5 激振器 14
2.4.6 支撑形式与隔振装置 15
第3章 油茶果清选筛的参数计算 18
3.1 油茶果清选筛上物料的运动分析和工艺参数的选择 18
3.1.1 直线振动面上的物料运动分析 18
3.1.2 工艺参数的选择 23
3.2 总体设计计算步骤 24
3.2.1 计算油茶果清选筛筛面面积 24
3.2.2 振动次数的计算 25
3.2.3 物料运动速度的计算 25
3.2.4 验算生产率 26
3.2.5 估算油茶果清选筛的重量 26
3.2.6 激振器偏心块的质量及其偏心距的确定 26
3.2.7 隔振弹簧刚度的确定 27
3.2.8 电动机的选择 27
3.3 橡胶弹簧的设计 29
第4章 激振器的设计 32
4.1 轴的计算与设计 32
4.1.1 初步估算轴的最小直径 32
4.1.2 轴的各段长度的直径设计 32
4.1.3 对轴的强度校核 33
4.2 轴承的计算与选择 36
4.3 密封件的设计计算 36
4.4 偏心块的设计与计算 36
4.5 联轴器的设计 37
4.5.1 联轴器的类型选择 37
4.5.2 规格的选择与计算 38
4.6 键的选择 38
4.6.1 轴与偏心块连接处键的选择与校核 38
4.6.2 轴与联轴器的连接处键的选择与校核 38
第5章 筛箱的结构设计 39
5.1 筛箱的结构 39
5.2 螺栓的强度校核 40
5.3 筛框横梁校核 41
5.3.1 横梁受力分析 41
5.3.2 横梁强度计算 42
5.3.3 横梁固有频率的验算 42
结 论 43
致 谢 44
参考文献 45
温馨提示:
1、题目前面的备注【字母数字编号】为本站整理分类的编号,与课题内容无关,请选题时忽视;
2、若题目上备注三维,则表示文件里包含三维源文件,由于三维组成零件数量较多,为保证预览截图的简洁性,本站将三维文件夹进行了打包。三维及CAD预览截图,均为本站电脑打开软件进行截图的,保证能够打开,下载原件超高清,下载后解压即可;
3、本站所有资源如无特殊说明,都需要本地电脑安装Office2007。图纸软件为AutoCAD,PROE,UG,SolidWorks,CATIA等;
4、本站所有图文资料仅供用户学习参考,不作为任何商用或其他用途;
5、本站不保证下载资源的准确性、安全性和完整性, 不包修改,不支持退换,同时也不承担用户因使用这些下载资源对自己和他人造成任何形式的伤害或损失;
6、 下载文件中如有侵权或不适当内容,请与我们联系,我们立即纠正。