

作品包括:
说明书1份,共31页,约9800字左右
CAD版本本图纸,共7张
三维图一份
摘要
随着科技和社会的发展和进步,各种各样的剪叉式升降机将会陆续出现在建筑工地的施工应用中,与此同时,随着时间的推移,随着剪叉式升降机的越来越普及,由于结构或者材料的原因暴露出来的问题越来越频繁,如果不对剪叉式升降机进行结构创新和改进,最基本的就是严重影响了建筑施工的效率,严重的导致剪叉式升降机不能正常使用,影响施工的进度和质量,在以前,我国对这种现状的重视程度还是不够,即在剪叉式升降机上有自带的维修工具,但这对于难度大点的维修工作就带来困难,如果发生故障,根本就不能够维修,而且这种现状存在着许多不和谐因素,更使群体分化加剧,社会人文关怀程度的下降。而如果能够通过合理规划设计出剪叉式升降机,这样不仅能够提高施工质量而且也能够保障人身安全,节约剪叉式升降机的成本。
本次设计是关于剪叉式升降机的设计,通过对传统的剪叉式升降机的结构进行了改进和优化,对它的机械结构和液压系统进行设计,使得此种类型的剪叉式升降机的使用范围更广泛,更加灵活,并且对今后的选型设计工作有一定的参考价值。
关键词:机械;液压;剪叉式升降机;参考
目 录
摘要 I
Abstract II
1引言 1
1.1课题的来源与研究的目的和意义 1
1.2本课题研究的内容 3
1.3剪叉式升降机的发展现状 5
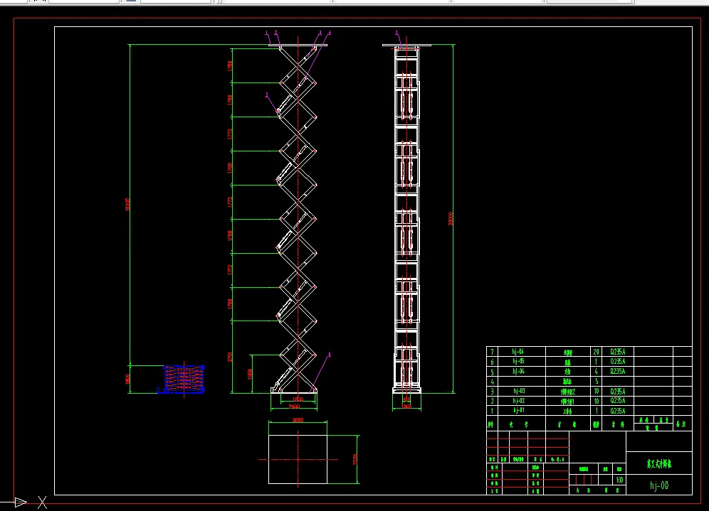
2剪叉式升降机总体结构的设计 7
2.1剪叉式升降机的总体方案图 9
2.2剪叉式升降机的总体设计 11
2.2.1确定剪叉式升降机参数的原则 12
2.2.2确定剪叉式升降机结构参数的内容 14
2.2.3剪叉式升降机主要参数的确定 15
2.2.4剪叉式升降机间距 16
2.3 举升机的力学分析与计算 17
2.3.1 举升机最低状态时,各臂受力情况 17
2.3.2 举升机举升到最高位置时,各臂受力情况 18
2.3.3 剪刀式举升机构主要受力杆件强度校核计算 18
2.3.4 连接螺栓的校核 19
2.4液压缸的选型计算 20
2.4.1缸体壁厚的计算 21
2.4.2缸底厚度的计算 22
2.4.3缸筒发生完全塑性变形的压力计算3.2.4缸筒径向变形计算 23
2.4.4活塞杆强度的计算 23
2.4.5管路的设计 24
3负载图和速度图 25
4各主要零部件强度的校核 26
4.1工作台的强度校核 27
5剪叉式升降机的控制原理 28
结论 29
致谢 30
参考文献 31
温馨提示:
1、题目前面的备注【字母数字编号】为本站整理分类的编号,与课题内容无关,请选题时忽视;
2、若题目上备注三维,则表示文件里包含三维源文件,由于三维组成零件数量较多,为保证预览截图的简洁性,本站将三维文件夹进行了打包。三维及CAD预览截图,均为本站电脑打开软件进行截图的,保证能够打开,下载原件超高清,下载后解压即可;
3、本站所有资源如无特殊说明,都需要本地电脑安装Office2007。图纸软件为AutoCAD,PROE,UG,SolidWorks,CATIA等;
4、本站所有图文资料仅供用户学习参考,不作为任何商用或其他用途;
5、本站不保证下载资源的准确性、安全性和完整性, 不包修改,不支持退换,同时也不承担用户因使用这些下载资源对自己和他人造成任何形式的伤害或损失;
6、 下载文件中如有侵权或不适当内容,请与我们联系,我们立即纠正。