

作品包括:
说明书1份,共36页,约18000字左右
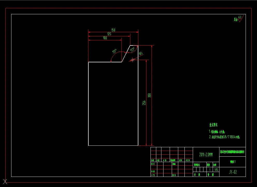
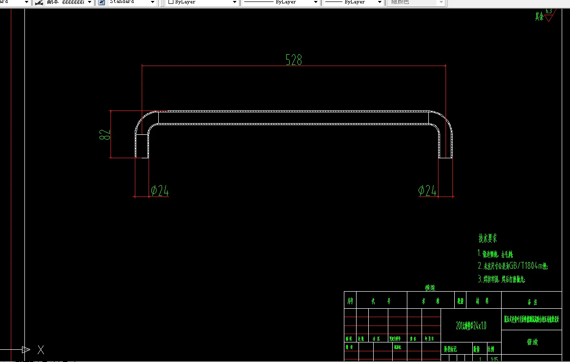
CAD版本本图纸,共7张
SW三维图一份
目录
摘要 1
Abstract 2
第一章、绪论 3
1.1液压传动在机械行业中的应用.........................................................................5
1.2液压系统的基本组成............................................................................................6
1.3 液压传动的优缺点...............................................................................................6
1.4液压传动技术的发展及应用............................................................................7
第二章、限压式变量叶片泵性能测试工作台液压系统的设计................................8
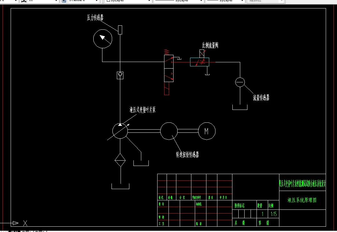
2.1 限压式变量叶片泵的原理图的分析和确定 9
2.2 液压液的选择 10
2.3 电机、液压元件及附件的选择及设计 11
2.4液压集成块的结构设计......................................12
2.4.1通用集成块组的结构.................................................................13
2.4.2集成块的特点............................................................................14
2.4.3液压集成块及其设计..................................................................16
2.4.4集成块设计步骤.........................................................................17
2.4.5集成块上零件的绘制..................................................................19
2.4.5.1设计液压集成回路...............................................................20
2.4.5.2制作液压元件样板...............................................................22
2.4.5.3油路通道的孔径设计...........................................................25
2.4.5.4底板的外形及尺寸的设计.....................................................27
2.4.5.5集成块上液压元件的设计.....................................................28
2.4.5.6集成块上密封装置的设计.....................................................30
2.4.5.7集成块上油路的压力损失.....................................................32
2.4.5.8绘制集成块加工图...............................................................34
第三章、测量系统的设计...........................................36
3.1正确测量的测量条件和测量方法....................................38
3.2 转速转矩传感器的选择...........................................40
3.3测量仪表的选择..................................................41
3.3.1流量计的选择................................................41
3.3.2真空表的选择................................................41
3.3.3压力表的选择................................................41
结论 41
致谢 41
参考文献 42
摘 要
限压式变量叶片泵作为液压元件之一,在实际生产中得到广泛的应用。限压式变量叶片泵能按负载大小自动调节流量,功率利用合理,可减少油液发热,故常用于执行元件有快慢速要求或有保压要求的场合。快速时负载小,压力低。
慢速进给时,负载大,压力高,流量小,泵自动转换到特性曲线段。保压时,在近点工作,提供小流量以补偿系统泄漏这种限压式变量叶片泵的额定压力为6.3pa,从另外一方面来说,叶片泵作为液压系统的动力源,对液压系统的好坏起绝对的作用,有着巨大的影响。因此,限压式变量泵性能测试的工作台的建设很重要;本文重点讲述了限压式变量叶片泵的分类,工作原理以及在实际当中的应用,对限压式变量叶片泵的进行静态特性实验分析以及对试验台的结构进行了设计。
温馨提示:
1、题目前面的备注【字母数字编号】为本站整理分类的编号,与课题内容无关,请选题时忽视;
2、若题目上备注三维,则表示文件里包含三维源文件,由于三维组成零件数量较多,为保证预览截图的简洁性,本站将三维文件夹进行了打包。三维及CAD预览截图,均为本站电脑打开软件进行截图的,保证能够打开,下载原件超高清,下载后解压即可;
3、本站所有资源如无特殊说明,都需要本地电脑安装Office2007。图纸软件为AutoCAD,PROE,UG,SolidWorks,CATIA等;
4、本站所有图文资料仅供用户学习参考,不作为任何商用或其他用途;
5、本站不保证下载资源的准确性、安全性和完整性, 不包修改,不支持退换,同时也不承担用户因使用这些下载资源对自己和他人造成任何形式的伤害或损失;
6、 下载文件中如有侵权或不适当内容,请与我们联系,我们立即纠正。