

作品包括:
Word版设计说明书1份,共24页,约9000字
CAD版本图纸,共7张
SW三维图一套
![Z2312-自动智能贴标机结构设计[含SW三维图] Z2312-自动智能贴标机结构设计[含SW三维图]](/static/upload/image/20260211/1770819102916726.webp)
摘要
贴标机是一种广泛应用于制造业、包装行业和食品行业等领域的自动化设备,其主要功能是将标签自动贴在各种产品上。该设备采用先进的技术和控制系统,能够实现高效、精确和可靠的标签贴附,提高生产效率和产品质量。
贴标机通常由传送带、标签供给装置、控制系统等部分组成。传送带负责将产品输送到贴标位置,标签供给装置则负责将标签输送到贴标头上。控制系统则负责控制整个贴标过程,确保标签与产品精确对位,实现高质量的标签贴附。
贴标机具有多种优点,如操作简便、效率高、适用范围广等。它可以大大提高生产效率,减少人工贴标的时间和成本,同时保证标签贴附的准确性和一致性。此外,贴标机还可以适应不同规格和形状的产品,实现自动化、智能化的生产。
总之,贴标机作为一种重要的自动化设备,对于提高生产效率和产品质量具有重要意义。随着技术的不断发展和进步,贴标机将会在更多领域得到应用和推广。
本次设计是对药盒、食品包装盒的纸盒展开状态下的自动贴标签过程进行优化,运用了机械原理、机械传动等相关知识,设计出一款能够准确、高效地对一堆磊放在一起的纸盒进行单个单个的贴标签的机械设备。在结构设计上,考虑到纸盒的厚度和输送带的传送速度,配合分料装置实现了逐个输送。在贴标签过程中,标签和已贴标签的纸同步运行,贴标板上的刀片摆动,将标签贴入纸盒的相应位置,然后已贴完标签的纸会再次回收。这款贴标机功能完善,速度适中,适合目前大多数纸张和纸盒的贴标签需求。
本次机械设备的设计是依据机械原理、机械传动等相关知识进行的一次综合运用。
关键词:标签;贴标机;输送带;同步带传动;送标器
目录
摘要 1
Abstract 2
目录 4
第1章 绪论 4
1.1本次课题的目的和意义 5
1.2国内外贴标机的研究现状 5
第2章方案结构设计分析 6
2.1贴标机的原理和方案构想 6
2.2贴标机的方案结构分析 6
第3章分料、主、收料部分输送带设计 7
3.1基本参数的确定 7
3.2驱动电机选型 7
3.2.1分料输送带电机选型 7
3.2.2主输送带电机选型 9
3.2.3收料输送带电机选型 10
3.3输送带电机齿轮箱选型 11
3.5同步带传动设计 12
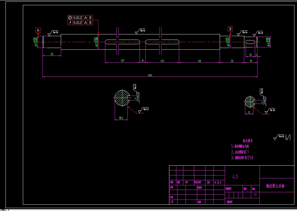
3.6输送带传动轴的设计 13
3.6.1主动轴的设计 13
3.6.2从动轴的设计 13
第4章送标松卷、分料、高度横度调整装置设计 14
4.1分料装置设计 14
4.2送标松卷装置设计 15
4.2.1驱动电机选型 15
4.2.2传动比分配和减速器选型 16
4.2.4送标、松卷纸卷排布 17
4.3高度横度的调整装置设计 18
4.3.1结构设计 18
4.3.2调整丝杆的设计选型 19
第5章主要部件强度校核计算 20
5.1主输送带机架的校核计算 20
5.2丝杆的校核计算 21
5.2.1选择材料和许用应力 21
5.2.2耐磨性验算 21
5.2.3螺纹的强度校核 22
5.2.4螺杆自锁性的验算 22
总结 22
参考文献 23
致谢 24
温馨提示:
1、题目前面的备注【字母数字编号】为本站整理分类的编号,与课题内容无关,请选题时忽视;
2、若题目上备注三维,则表示文件里包含三维源文件,由于三维组成零件数量较多,为保证预览截图的简洁性,本站将三维文件夹进行了打包。三维及CAD预览截图,均为本站电脑打开软件进行截图的,保证能够打开,下载原件超高清,下载后解压即可;
3、本站所有资源如无特殊说明,都需要本地电脑安装Office2007。图纸软件为AutoCAD,PROE,UG,SolidWorks,CATIA等;
4、本站所有图文资料仅供用户学习参考,不作为任何商用或其他用途;
5、本站不保证下载资源的准确性、安全性和完整性, 不包修改,不支持退换,同时也不承担用户因使用这些下载资源对自己和他人造成任何形式的伤害或损失;
6、 下载文件中如有侵权或不适当内容,请与我们联系,我们立即纠正。