

作品包括
Word版说明书1份,共21页,约5300字
CAD版本图纸,共2张
SW三维图一套
![Z2912-直角坐标系机械手设计[含SW三维图] Z2912-直角坐标系机械手设计[含SW三维图]](/static/upload/image/20260408/1775621409425432.webp)
摘要
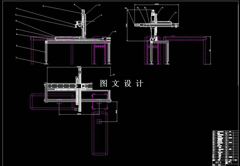
机械结构设计,首先要考虑的就是要设计一个什么样子的结构,确定好结构后,就可以根据要求选择所需的零件。经过设计,设计出了一个能前后直线运动,左右直线运动,上下直线运动的机械手结构。Y轴运动模块固定在Z轴上,Z轴运动模块固定在X轴上。三个运动模块全部都是电机带动滚珠丝杠转动,经过滚动导轨导向,加上联轴器等,完成直线运动。设计两轴的连接件滑块来连接两个运动模块。最终设计出了一个长1498mm,宽1040mm,高640mm的机械手机械结构。其能工作的最大有效负载为2.5kg,只要保养得当,其工作寿命最少能工作10年。如果三个电机的配合控制得当,机械手还可以在空间做相应的曲线运动。ZXY三个轴的直线运动模块执行元件的选型,即电机的选择计算。2)XYZ三个轴传动机构的设计,包括滚珠丝杠副设计选择,导向机构的设计选择,滚动轴承的选择,轴承的安装座座的设计,丝杠支承的选择设计,联轴器的选择,两轴连接处零件结构的设计,电机安装座的设计,机架与三个运动模块的链接设计。3)零件的各项参数的校核。
目 录
1.绪论 ……………………………………………………………………………………… 1
1.1课题意义………………………………………………………………………… 1
1.2本次课程设计具体任务…………………………………………………… 2
2.方案确定………………………………………………………………………………… 2
2.1总体方案确定………………………………………………………………………… 2
2.2方案确定………………………………………………………………………………… 3
3.关键部件选型计算………………………………………………………………… 3
3.1电机选型及计算…………………………………………………………………… 4
3.2模组选型及计算 …………………………………………………………………10
3.2 联轴器选择…………………………………………………………………14
4.关键结构详细设计……………………………………………………………… 15
4.1真空吸盘详细设计………………………………………………………………15
4.2整机总体结构二维图 …………………………………………………………16
5.总结………………………………………………………………………………………20
5.参考资料………………………………………………………………………………19
温馨提示:
1、题目前面的备注【字母数字编号】为本站整理分类的编号,与课题内容无关,请选题时忽视;
2、若题目上备注三维,则表示文件里包含三维源文件,由于三维组成零件数量较多,为保证预览截图的简洁性,本站将三维文件夹进行了打包。三维及CAD预览截图,均为本站电脑打开软件进行截图的,保证能够打开,下载原件超高清,下载后解压即可;
3、本站所有资源如无特殊说明,都需要本地电脑安装Office2007。图纸软件为AutoCAD,PROE,UG,SolidWorks,CATIA等;
4、本站所有图文资料仅供用户学习参考,不作为任何商用或其他用途;
5、本站不保证下载资源的准确性、安全性和完整性, 不包修改,不支持退换,同时也不承担用户因使用这些下载资源对自己和他人造成任何形式的伤害或损失;
6、 下载文件中如有侵权或不适当内容,请与我们联系,我们立即纠正。