

作品包括:
Word版说明书1份,共27页,约9700字
CAD版本图纸,共6张

摘要
本课题介绍了两驱动蜗轮丝杠升降机构的设计,升降机由一台电动机驱动,通过换向伞转换传动方向,从而驱动左右两个蜗杆传动系统,然后蜗杆传动带动丝杠,带动升降机工作平台。换向伞的设计确定了该结构的组成,由一对直齿圆锥齿轮实现传动的转换,并确定了齿轮的材料和尺寸。螺纹牙型的选取有至关重要的作用,该章主要是关于螺杆以及螺纹牙的强度计算,并通过丝杠自锁的验算和丝杠副的验算确保了传动的安全、稳定性。蜗轮蜗杆的设计是传动的关键点,通过强度的校验确保蜗轮蜗杆的选材和尺寸是正确的。最后完成了驱动电机的选取以及润滑与密封,选取正确的电机,升降机正常的维护与保养都是必不可少的。蜗轮丝杠升降机构是将蜗轮减速器和丝杠副组成的传动单元进行组合以实现物体的升降,它在自动化和人性化设计方面都具有重要意义。
关键词:减速器 螺旋传动 升降机
目录
第一章 绪论 2
1.1. 升降机的发展史及种类 2
1.2 本课题的研究任务 3
第二章 换向伞的设计 4
2.1换向伞的结构 4
2.2直齿圆锥齿轮材料的选取 4
2.3直齿圆锥齿轮尺寸的确定 4
2.4校核轮齿弯曲疲劳强度 6
2.5本章小结 7
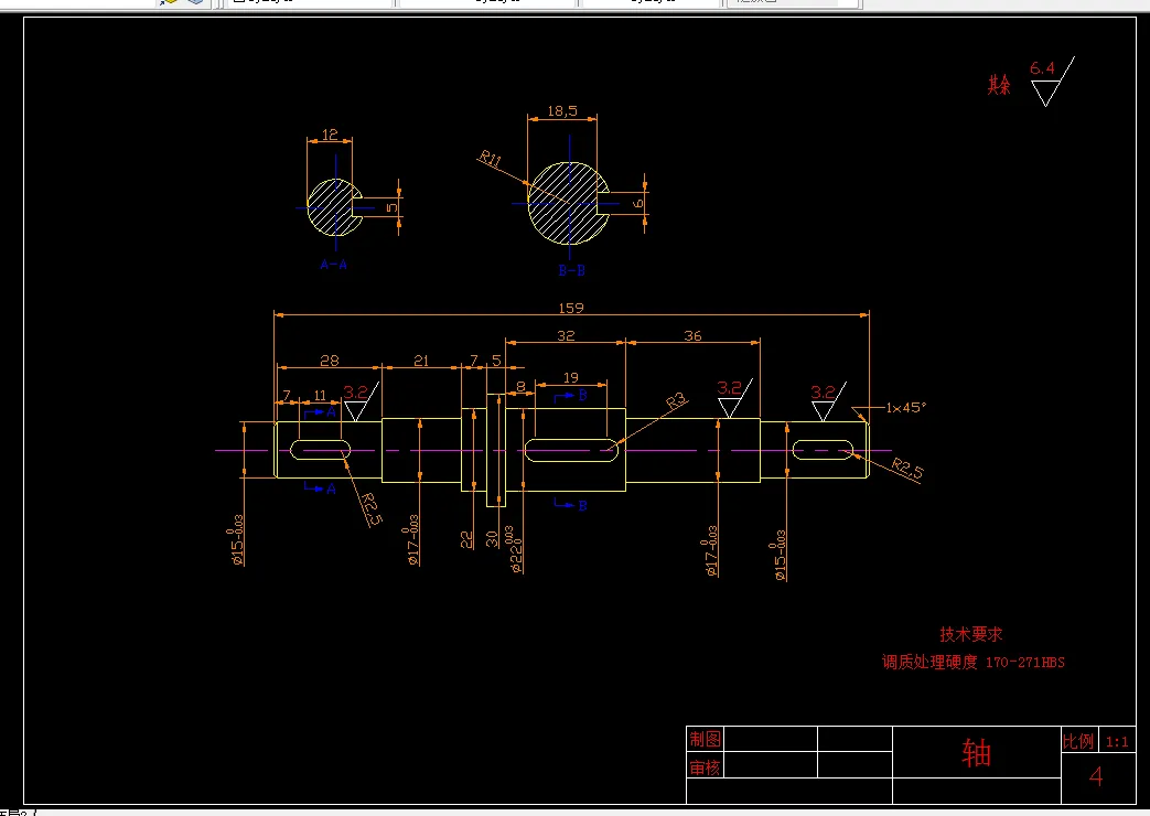
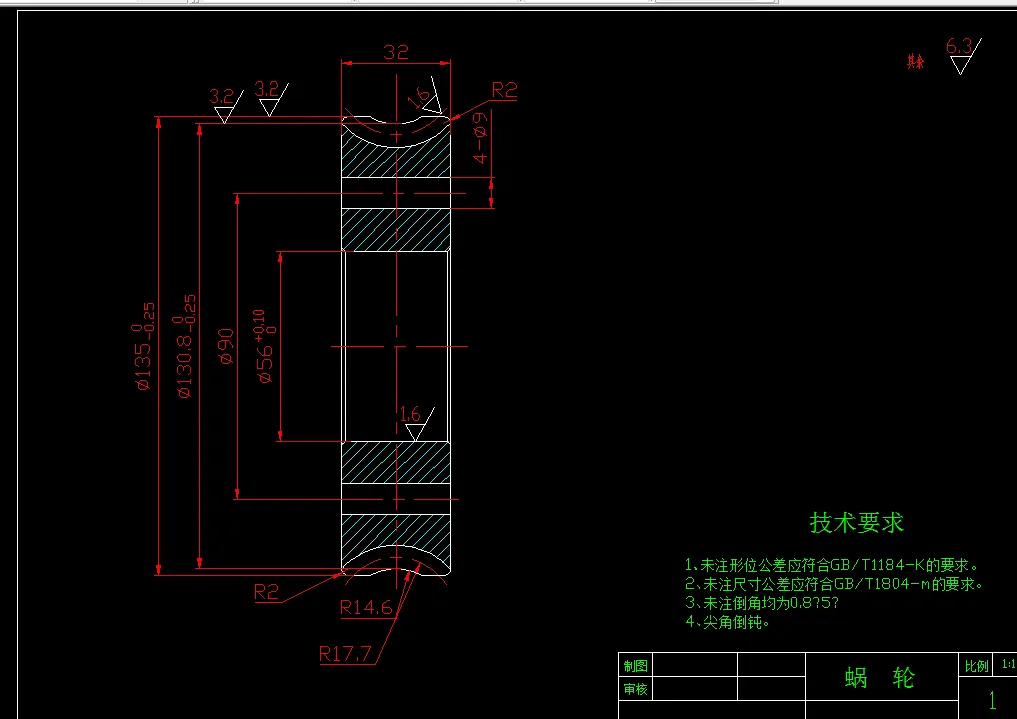
第三章 蜗轮蜗杆的设计 8
4.1蜗轮蜗杆材料的选取 8
4.2蜗轮蜗杆尺寸的确定 8
4.3校核蜗轮齿根弯曲强度 10
4.4本章小结 10
第四章 螺纹传动设计 11
3.1材料的选取 11
3.2螺纹牙型的选取 11
3.3验算丝杠自锁情况 12
3.4丝杠副的校验 13
3.4.1 允许弯曲力校验 13
3.4.2 最大允许转速校验 14
3.5计算螺杆驱动转矩 14
3.6计算螺杆的强度 14
3.7螺纹牙的强度计算 15
3.7.1螺杆螺纹牙强度校核 15
3.7.2螺母螺纹牙校核 16
3.8传递效率的计算 16
3.9本章小结 16
第五章 驱动电机的选取 17
5.1驱动电机的选型 17
5.1.1 驱动转矩的确定 17
5.2.2 驱动转速的确定 17
5.3.3 驱动功率的确定 17
5.2驱动电机参数 17
5.3本章小结 18
第六章 润滑与密封 19
6.1润滑 19
6.2密封 19
6.3本章小结 19
第七章 课题结论 20
总结 21
参考文献 22
致谢 23
温馨提示:
1、题目前面的备注【字母数字编号】为本站整理分类的编号,与课题内容无关,请选题时忽视;
2、若题目上备注三维,则表示文件里包含三维源文件,由于三维组成零件数量较多,为保证预览截图的简洁性,本站将三维文件夹进行了打包。三维及CAD预览截图,均为本站电脑打开软件进行截图的,保证能够打开,下载原件超高清,下载后解压即可;
3、本站所有资源如无特殊说明,都需要本地电脑安装Office2007。图纸软件为AutoCAD,PROE,UG,SolidWorks,CATIA等;
4、本站所有图文资料仅供用户学习参考,不作为任何商用或其他用途;
5、本站不保证下载资源的准确性、安全性和完整性, 不包修改,不支持退换,同时也不承担用户因使用这些下载资源对自己和他人造成任何形式的伤害或损失;
6、 下载文件中如有侵权或不适当内容,请与我们联系,我们立即纠正。