

作品包括:
说明书1份,共34页,约19000字左右
CAD版本本图纸,共1张
SW三维图一份
摘 要
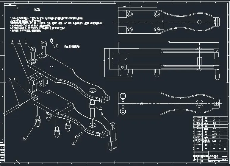
一直以来,在批量生产零件的过程中,为了提高生产效率,减轻人体劳动强度,发明了钻模。钻模主要包括以下几个部分:搭扣、导柱、钻脚、支柱、支架、钻套等组成,以上几个部分组成了整个模架,模架已经标准化,本课题主要针对的是手柄翻开式模架,手柄反开式模架主要分为两种:手柄翻开式支柱式钻模模架和手柄翻开式支架式钻模,现主要是针对手柄翻开式支架式钻模。模架也慢慢跟着标准化,主要是为了使用的方便性,并且在一定程度上可以降低成本,使企业获益。模架标准化,这样使得在加工不同零件时,只换钻套就可以加工部同的孔,实现了一模多用,降低了成本,并且在一定程度上降低了劳动强度。针对其标准化的特点,在国标规定完成钻模模架零件参数化的基础上,运用solidworks进行三维建模,并对其进行装配,观察其工作效果,在研究过程中,可以从模架快速设计定型角度为促进机械产品快速研发提供有力支持。
本论文主要论述了基于SOLIDWORKS开发平台,进行手柄翻开式钻模模架参数化设计的过程,应用其工具包开发,实际应用表明该系统可以大幅度提高工作效率。该系统的建立方法亦可应用于其他零件的参数化设计
关键词:SOLIDWORKS;手柄翻开式钻模模架;参数化设计;建模
目 录
1 绪 论 1
1.1 本课题的研究目的与意义 1
1.2 机械CAD技术的发展与应用 2
1.3本课题研究内容与开发思想 4
2 基于SOLIDWORKS的手柄翻开式支柱式钻模模架三维参数化建模 6
2.1开发平台与工具简介 6
2.2 钻模模的特征描述 7
2.3 参数化设计技术概述 8
3 钻模模架过程 11
3.1各个零部件基本参数设计 11
3.2零件尺寸关系 11
3.1参数化设计基本思路 11
3.4建模过程 11
4 总结与展望 22
致谢 23
参考文献 24
温馨提示:
1、题目前面的备注【字母数字编号】为本站整理分类的编号,与课题内容无关,请选题时忽视;
2、若题目上备注三维,则表示文件里包含三维源文件,由于三维组成零件数量较多,为保证预览截图的简洁性,本站将三维文件夹进行了打包。三维及CAD预览截图,均为本站电脑打开软件进行截图的,保证能够打开,下载原件超高清,下载后解压即可;
3、本站所有资源如无特殊说明,都需要本地电脑安装Office2007。图纸软件为AutoCAD,PROE,UG,SolidWorks,CATIA等;
4、本站所有图文资料仅供用户学习参考,不作为任何商用或其他用途;
5、本站不保证下载资源的准确性、安全性和完整性, 不包修改,不支持退换,同时也不承担用户因使用这些下载资源对自己和他人造成任何形式的伤害或损失;
6、 下载文件中如有侵权或不适当内容,请与我们联系,我们立即纠正。