

作品包括:
Word版设计说明书1份,共59页,约31000字
CAD版本图纸,共7张
![1739961312771938.webp 1]ZS$$9X4`%]FK(FAHHX6FB.webp](/static/upload/image/20250219/1739961312771938.webp)
摘要
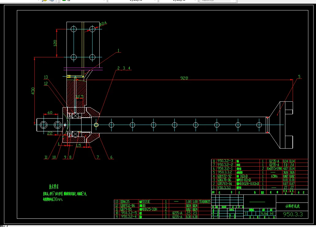
沥青混凝土摊铺机性能设计的好坏将直接影响到沥青混凝土路面质量的优劣,特别是分料系统设计的不合理会带来离析、厚度不均匀等路面质量问题。本设计重点做的是沥青混凝土摊铺机分料系统的设计,用一些设计和计算,让沥青混凝土摊铺机在摊铺的工作中拥有更好的性能。针对上述情况,本设计从解决实际问题的情况出发,根据摊铺机摊铺的工作原理和特点,对沥青混凝土摊铺机的分料系统进行相关的设计和计算。以解决工作过程中呈现的问题。对分料系统的传动部件以及工作部件等做出相应的分析和计算,对螺旋分料装置进行建模。本设计先描写了沥青混凝土摊铺机的用途及分类和特点,接着写了沥青混凝土在国内外的发展与研究现状,描写了摊铺机的发展历史和发展趋势,还有摊铺机存在的问题。然后描写了沥青混凝土摊铺机的基本结构和工作原理。接着又描写了沥青混凝土摊铺机的总体设计,还写了沥青混凝土摊铺机的作业程序,并且描写了沥青混凝土摊铺机的设计要点。下面对螺旋分料装置进行了设计与计算。还写了沥青混凝土摊铺机螺旋分料装置的分料原理,并且对螺旋分料器进行了受力分析和相关的计算。并且对螺旋分料装置进行了装配。还对一些零件进行了相关的校核。并且还设计了螺旋分料装置的液压回路,还对螺旋分料装置的物料控制进行了相关的分析。
关键词 沥青混凝土摊铺机;链条;液压;螺旋叶片;螺旋分料器
目 录
摘要 I
Abstract II
1 绪论 1
1.1沥青混凝土摊铺机的用途及分类和特点 1
1.2 国内摊铺机的发展与研究现状 2
1.3国外摊铺机的发展与研究现状 3
1.4沥青混凝土摊铺机的发展历史 4
1.5摊铺机的发展趋势 4
1.6现在沥青混凝土摊铺机存在的问题 5
1.7本文的主要研究内容 6
2沥青混凝土摊铺机的总体设计 7
2.1沥青混凝土摊铺机的总体设计 7
2.1.1摊铺机的设计要点 7
2.1.2摊铺机的设计原理 9
2.2沥青混凝土摊铺机的作业程序 9
3沥青混凝土摊铺机的基本机构和工作原理 11
3.1沥青混凝土摊铺机的工作原理 11
3.2摊铺机的基本结构 12
3.2.1传动系统 12
3.2.2刮板输送装置 13
3.2.3自动找平装置 14
3.2.4料斗 14
3.2.5振捣-熨平装置 14
3.2.6机架 16
3.2.7行走装置 16
3.2.8动力装置 17
3.2.9螺旋分料装置 17
4螺旋分料装置的设计计算 18
4.1论证螺旋分料系统的设计方案 18
4.1.1螺旋分料系统设计的要求 18
4.1.2选择分料系统的方案 18
4.2螺旋叶片的基本构造 19
4.3螺旋分料装置的工作原理 20
4.4螺旋分料装置 20
4.5螺旋分料器生产率的计算 22
4.6螺旋驱动功率的确定 22
4.7螺旋分料器的受力分析与计算 22
4.7.1螺旋分料器横向力的确定 23
4.7.2螺旋分料器的轴向力的确定 24
4.7.3螺旋分料器轴径的计算 24
4.7.4螺旋分料器扭矩的确定 24
4.8选择和校核轴承 25
4.8.1轴承的选择 25
4.8.2轴承的校核 25
4.9螺旋分料器强度的校核 25
4.9.1选择材料 25
4.9.2螺旋分料器强度的校核和计算 26
4.10确定螺旋分料器的链传动 27
4.10.1已有的数据 27
4.10.2确定链条的主要参数 27
4.10.3选择链轮 29
4.11叶片轴套和螺旋轴连接螺栓的选取和校核 30
4.11.1螺栓的选择 30
4.11.2分析叶片轴套和螺旋轴连接螺栓的受力 30
4.11.3螺栓的校核 31
4.12螺旋分料器的液压系统设计 31
4.12.1选择螺旋分料器的液压回路 32
4.12.2选择液压元件 32
4.12.3螺旋分料器的液压回路的设计 34
4.13螺旋分料器的物料控制 35
5三维实体的建模和装配 37
5.1三维软件Pro/E的介绍 37
5.1.1Pre/E基本的功能和作用 37
5.1.2三维建模的优点 38
5.2板的三维建模过程 38
5.3轴的三维建模过程 39
5.4叶片的三维建模过程 40
5.5回转体的三维建模过程 41
5.6轴套的三维建模过程 42
5.7箱体上板的建模过程 43
5.8马达的装配过程 44
5.9螺旋分料装置的装配过程 45
5.10箱体的装配过程 46
5.11摊铺机分料系统的总体装配 47
6关键零部件的有限元分析 48
6.1有限元分析方法的介绍 48
6.2螺旋轴的有限元分析 48
6.3支撑板的有限元分析 50
结论 52
致谢 53
参考文献 54
温馨提示:
1、题目前面的备注【字母数字编号】为本站整理分类的编号,与课题内容无关,请选题时忽视;
2、若题目上备注三维,则表示文件里包含三维源文件,由于三维组成零件数量较多,为保证预览截图的简洁性,本站将三维文件夹进行了打包。三维及CAD预览截图,均为本站电脑打开软件进行截图的,保证能够打开,下载原件超高清,下载后解压即可;
3、本站所有资源如无特殊说明,都需要本地电脑安装Office2007。图纸软件为AutoCAD,PROE,UG,SolidWorks,CATIA等;
4、本站所有图文资料仅供用户学习参考,不作为任何商用或其他用途;
5、本站不保证下载资源的准确性、安全性和完整性, 不包修改,不支持退换,同时也不承担用户因使用这些下载资源对自己和他人造成任何形式的伤害或损失;
6、 下载文件中如有侵权或不适当内容,请与我们联系,我们立即纠正。