

作品包括:
Word版设计说明书1份
PPT答辩一份
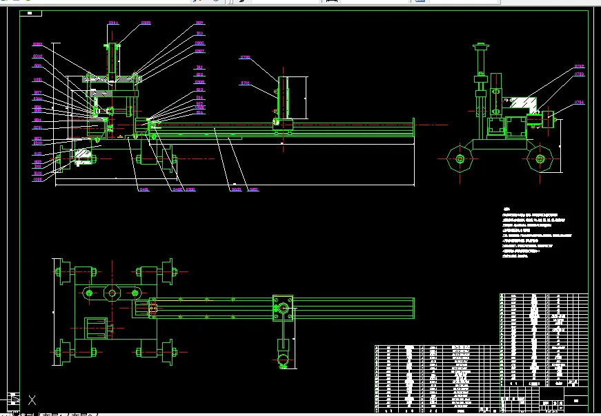
CAD版本图纸,共14张

摘要
油田井下作业是维护油田生产的重要措施。随着技术的进步,提出了修井作业机械化自动化的要求。为了减少钻井作业时间、费用和提高作业的安全性,自动管具处理系统正在逐步取代传统的人工管具操作。自动管具处理系统减少了操作者的人员数量并提高了钻井的效率,在钻井的同时进行离线接单根、自动输送和排放钻杆等操作将会大幅降低钻井时间。修井作业管子处理模拟系统设计内容包括总体方案设计、机械结构设计、动力与传动部分的分析计算与设计、控制系统设计等。
温馨提示:
1、题目前面的备注【字母数字编号】为本站整理分类的编号,与课题内容无关,请选题时忽视;
2、若题目上备注三维,则表示文件里包含三维源文件,由于三维组成零件数量较多,为保证预览截图的简洁性,本站将三维文件夹进行了打包。三维及CAD预览截图,均为本站电脑打开软件进行截图的,保证能够打开,下载原件超高清,下载后解压即可;
3、本站所有资源如无特殊说明,都需要本地电脑安装Office2007。图纸软件为AutoCAD,PROE,UG,SolidWorks,CATIA等;
4、本站所有图文资料仅供用户学习参考,不作为任何商用或其他用途;
5、本站不保证下载资源的准确性、安全性和完整性, 不包修改,不支持退换,同时也不承担用户因使用这些下载资源对自己和他人造成任何形式的伤害或损失;
6、 下载文件中如有侵权或不适当内容,请与我们联系,我们立即纠正。