

作品包括:
Word版设计说明书1份,共38页,约12000字
任务书一份
外文翻译一份
CAD版本图纸,共7张
’
摘要
ZSG型系列高效直线振动筛是一种新型高效的通用筛分设备,其筛箱运动轨迹近似为直线。该系列筛机结构简单,筛分能力大且能耗少,维修方便,广泛应用于矿山、煤炭、电力、冶金、建材、耐火等各行各业对较大块状物料及中、小颗粒状物料的分级作业。该系列高效直线振动筛的动力装置有振动电机直接驱动和普通电机通过联轴器带动激振器间接驱动两种形式,可满足不同环境需要;筛面有金属编织网、棒条、铸造、焊接、冲孔等多种形式,筛面既有单层结构也可多层布置,可满足不同筛分作业工作。本设计是以 2ZSGB15-40J矿用闭式高效直线振动筛为研究对象,简要描述了直线振动筛在国内外研究概况及发展趋势。并且根据直线振动筛的工作原理,设计和选取了所研究振动筛的参数。并进行了静力学和动力学分析。设计内容包括:激振器轴系的设计,箱体结构的设计,激振器在箱体上的布置,传动装置的选取,电动机的选择,轴承的选择与校核,弹簧的设计,横梁的设计计算及校核等诸多方面。
关 键 词:直线;振动筛;建模;力学分析
目 录
摘 要 I
Abstract II
引 言 1
1 绪论 2
1.1国内振动筛发展概况 2
1.2国内振动筛与国外振动筛区别 2
1.国外技术发展趋势 3
2.国内技术发展趋势 3
1.3 影响直线振动筛分效率的主要因素 4
1.物料特性对筛分效率的影响 4
2直线振动筛参数对筛分效率的影响 4
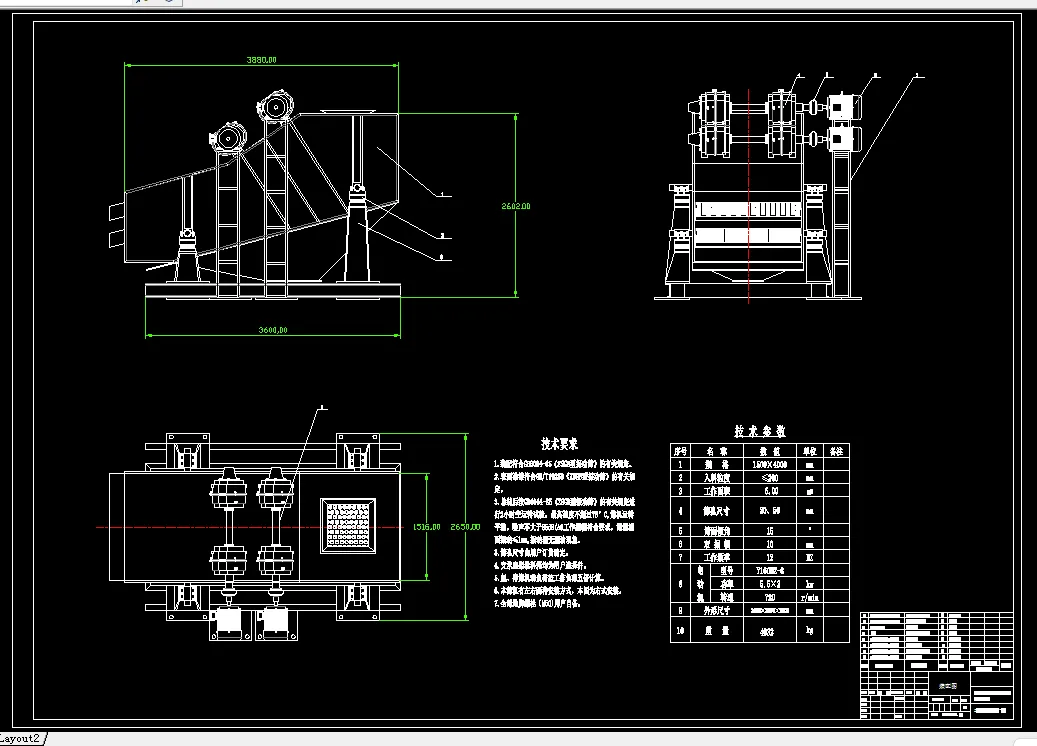
2 设计总体方案 6
2.1 设计任务说明 6
2.2 关于ZSGB系列产品工作原理 6
2.3传动方案的设计 6
2.4筛面规格的确定和处理量的计算 7
2.4.1 筛面规格的确定 7
2.4.2 处理量的分析 7
3 运动学参数的设计与计算 10
3.1 运动学参数的确定 10
3 .1.1 筛箱振幅 10
3.1.2 振动频率 10
3.1.3 振动强度 10
3.1.4抛射强度 11
3.1.5 筛面倾角 11
3.1.6 振动方向角 11
4 动力学参数 12
4.1估算振动筛的重量 12
4.2弹簧刚度的计算 12
4.3块偏心振动器的偏心块质量和回转半径关系 13
5 电动机的计算选择 14
5.1 电机的选择 14
5.2 电动机功率N的计算 14
5.3 启动转矩的校核 15
6 主要零件的设计与计算 16
6.1轴承 16
6.1.1轴的受力分析 16
6.1.2 轴承的计算与选择 16
6.1.3轴承寿命的校核 18
6.2轴的结构设计与强度验算 18
6.2.1轴的结构设计 18
6.2.2轴的强度计算与校核 19
6.3 弹簧的尺寸设计与强度校核 20
6.3.1 圆柱型橡胶弹簧的计算 20
6.3.2弹簧强度校核 22
6.4联轴器型号的计算选择 23
6.5键的选择与校核 24
6.5.1 键的选择 24
6.5.2键的校核 24
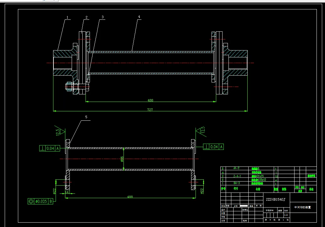
7 筛箱的结构设计 26
7.1筛箱 26
7.1.1侧板、后挡板的设计 26
7.1.2筛框横梁 26
7.1.3 筛箱横撑的设计 27
7.2 筛面规格的确定及固定方式 27
8 ZSG高效振动筛的使用与维修 29
8.1 ZSG高效重型筛安装、调试与操作 29
8.2 振动筛的常见故障 29
8.3 振动筛日常维护 30
8.4 维修振动筛注意事项 30
结 论 31
致 谢 32
参 考 文 献 33
温馨提示:
1、题目前面的备注【字母数字编号】为本站整理分类的编号,与课题内容无关,请选题时忽视;
2、若题目上备注三维,则表示文件里包含三维源文件,由于三维组成零件数量较多,为保证预览截图的简洁性,本站将三维文件夹进行了打包。三维及CAD预览截图,均为本站电脑打开软件进行截图的,保证能够打开,下载原件超高清,下载后解压即可;
3、本站所有资源如无特殊说明,都需要本地电脑安装Office2007。图纸软件为AutoCAD,PROE,UG,SolidWorks,CATIA等;
4、本站所有图文资料仅供用户学习参考,不作为任何商用或其他用途;
5、本站不保证下载资源的准确性、安全性和完整性, 不包修改,不支持退换,同时也不承担用户因使用这些下载资源对自己和他人造成任何形式的伤害或损失;
6、 下载文件中如有侵权或不适当内容,请与我们联系,我们立即纠正。