

作品包括:
Word版设计说明书1份,共38页,约15000字
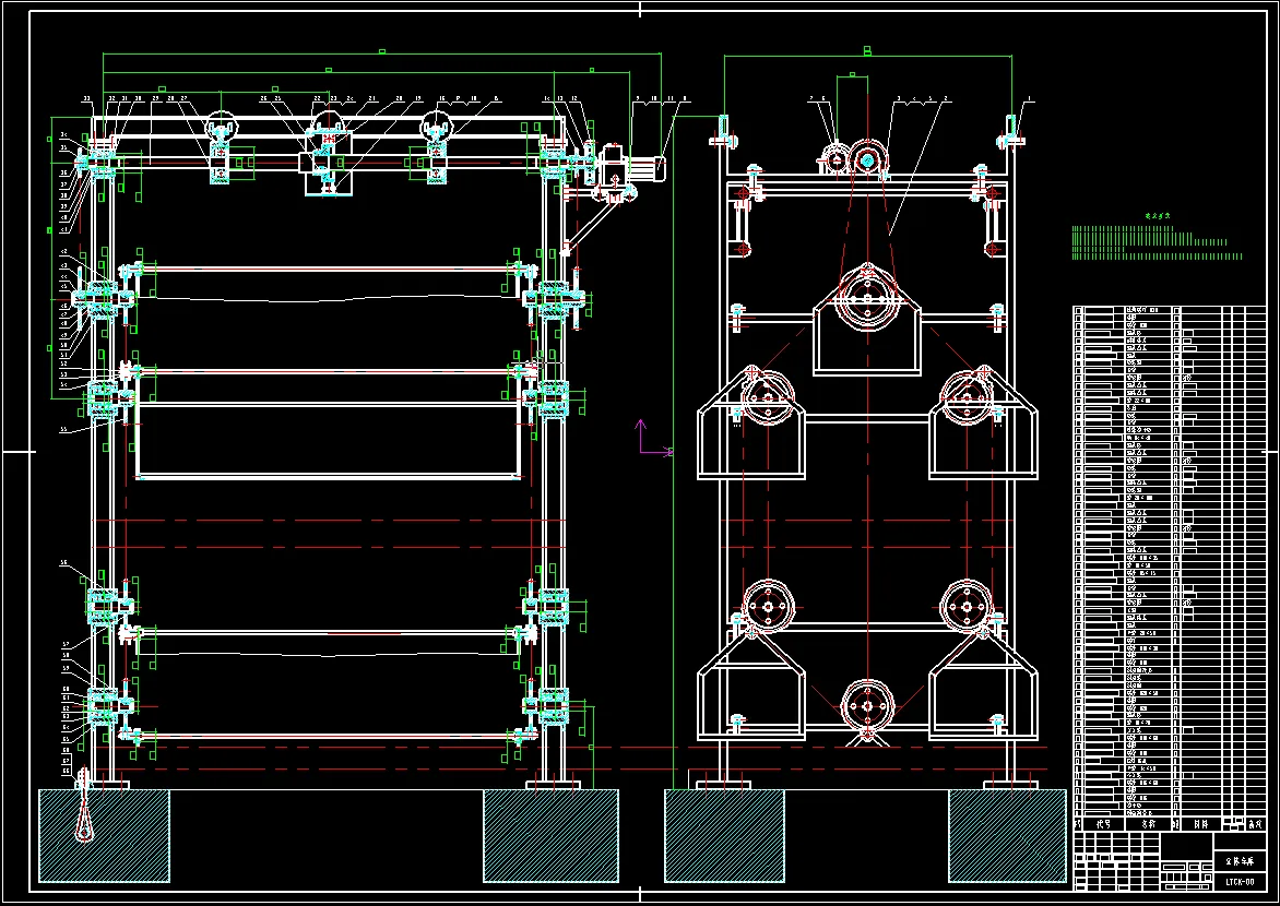
CAD版本图纸,共4张

摘要
本课题主要是20KW制冷量直燃式氨吸收式制冷机组发生器设计,该装置的工作介质包括制取冷量的制冷剂和吸收、解析制冷剂的吸收剂,二者组成工质对。浓氨水溶液在发生器中被加热,分离出一定流量的冷剂蒸汽进入冷凝器中,冷剂蒸气在冷凝器中被冷却,并凝结成液态;液态冷剂经过节流降压,进入蒸发器,在蒸发器内吸热蒸发,产生冷效应,冷剂由液态变为气态,再进入吸收器中;另外,从发生器流出的稀溶液经换热器和节流降压后进入吸收器,吸收来自蒸发器的冷剂蒸气,吸收过程产生的浓溶液由循环泵加压,经换热器吸热升温后,重新进入发生器,如此循环制冷。发生器是用来使氨水浓溶液沸腾的设备,在氨吸收制冷装置中,发生器是高压、热设备热媒主要是蒸汽或是废热蒸汽,有些情况下也可以采用高温气体或燃烧气体加热。
温馨提示:
1、题目前面的备注【字母数字编号】为本站整理分类的编号,与课题内容无关,请选题时忽视;
2、若题目上备注三维,则表示文件里包含三维源文件,由于三维组成零件数量较多,为保证预览截图的简洁性,本站将三维文件夹进行了打包。三维及CAD预览截图,均为本站电脑打开软件进行截图的,保证能够打开,下载原件超高清,下载后解压即可;
3、本站所有资源如无特殊说明,都需要本地电脑安装Office2007。图纸软件为AutoCAD,PROE,UG,SolidWorks,CATIA等;
4、本站所有图文资料仅供用户学习参考,不作为任何商用或其他用途;
5、本站不保证下载资源的准确性、安全性和完整性, 不包修改,不支持退换,同时也不承担用户因使用这些下载资源对自己和他人造成任何形式的伤害或损失;
6、 下载文件中如有侵权或不适当内容,请与我们联系,我们立即纠正。